RIJSWIJK
€ 550.000
Van der Venstraat 3
3 Kamers
1 Badkamers
2 Slaapkamers
91 m²
A
Achtertuin
Bezichtiging aanvragen
Beschrijving
Energiezuinige veranda-woning met extra brede woonkamer en zonnige tuin!
Ben je op zoek naar een duurzame, instapklare woning met een zonnige tuin op het zuidwesten? Dan is dit jouw kans. Deze charmante veranda-woning is ideaal voor starters of doorstromers die comfortabel en toekomstgericht willen wonen. De woning is gebouwd in 2016, slim ingedeeld en volledig van nu. Denk aan volledige vloerverwarming (die ook kan koelen), een warmtepomp, 14 zonnepanelen en triple glas. Tel daar de fijne indeling, het aparte washok en de zonnige tuin bij op – en je weet: dit is een plek waar je zó wilt wonen.
Rijswijk Buiten combineert het beste van twee werelden: rustig wonen in het groen, met alle voorzieningen en steden dichtbij. Delft, Rijswijk en Den Haag liggen op korte afstand en via de A4 of A13 ben je snel onderweg. Ook met het openbaar vervoer is de bereikbaarheid uitstekend.
HIGHLIGHTS:
+ Energiezuinig en gasloos wonen
+ Zonnige tuin op het zuidwesten
+ Volledige vloerverwarming én koeling
+ Triple glas en uitstekende isolatie
+ Energiekosten < € 0,-
INDELING
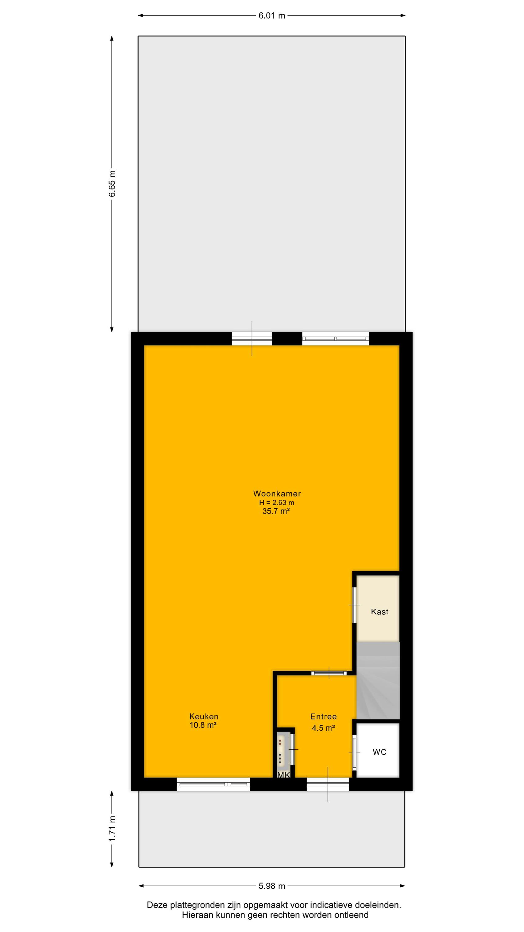
Begane grond
Je komt binnen in de hal met ruimte voor jassen, de meterkast en een modern toilet. De woonkamer is opvallend breed, wat deze woning onderscheidt van de drielaagswoningen in de omgeving. Hierdoor voelt de leefruimte extra ruim en comfortabel aan. De houtlook vloer met vloerverwarming draagt bij aan de warme uitstraling. Aan de voorzijde bevindt zich de moderne open keuken, voorzien van diverse inbouwapparatuur, waaronder een Neff oven, inductiekookplaat, vaatwasser, koelkast en vriezer. De afzuigkap is recent vervangen. Dankzij het grote raam valt er prettig veel daglicht binnen.
Via de woonkamer stap je de zonnige tuin op het zuidwesten in. Achterin de tuin staat een houten berging en er is een praktische achterom aanwezig.
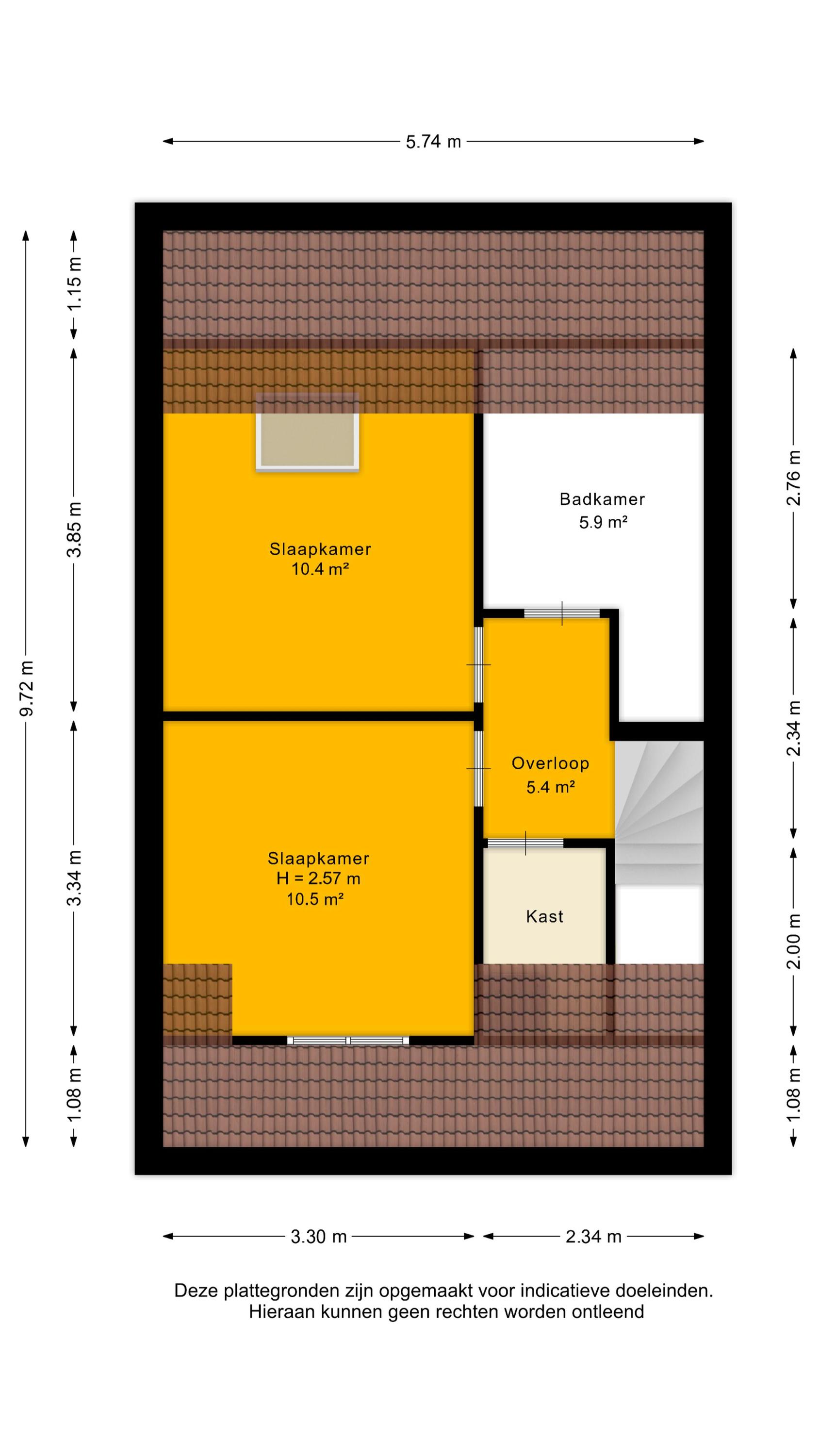
Eerste verdieping
Op deze verdieping bevinden zich twee slaapkamers. De slaapkamer aan de achterzijde is extra ruim dankzij de dakkapel over de maximale breedte, waardoor dit een volwaardige en bijzonder prettige slaapkamer is geworden. De tweede slaapkamer ligt aan de voorzijde.
De badkamer is verzorgd uitgevoerd met een inloopdouche en wastafelmeubel. Daarnaast is er een apart washok, waar ook de WTW-installatie is opgesteld. Ook hier geldt: vloerverwarming door de hele verdieping, met de mogelijkheid om in de zomer te koelen.
DUURZAAM EN COMFORTABEL
Deze woning is gasloos en zeer energiezuinig. De warmtepomp, WTW-installatie, elektrische boiler (150 liter) en zonnepanelen zorgen samen voor een comfortabel binnenklimaat en zeer lage energielasten – zelfs richting nul. Dankzij de goede isolatie en het triple glas woon je hier het hele jaar door aangenaam. De combinatie van houten en deels kunststof kozijnen maakt de woning bovendien onderhoudsvriendelijk.
PLUSPUNTEN:
+ Moderne keuken met o.a. Neff oven
+ Apart washok
+ Twee volwaardige slaapkamers
+ Extra brede woonkamer
+ 14 zonnepanelen en warmtepomp
+ WTW-installatie en elektrische boiler (150 liter)
+ Gelegen op 120 m² eigen grond
+ Rustige, groene en goed bereikbare locatie
+ Combinatie van houten en kunststof kozijnen
BIJZONDERHEDEN
> Bouwjaar 2016
> Woonoppervlakte ca. 91m² (NVM Meetinstructie)
> Inhoud ca. 330m³
> Woning volledig voorzien van vloerverwarming en koeling
> De warmtepomp, het boilervat, de bron en PV-panelen zijn in eigendom
> Het systeem is afgekocht voor ca. € 14.000,- waarbij een all-in onderhoudscontract is afgesloten tot oktober 2029
> Gebouwd onder Woningborg garantie
> Oplevering in overleg
OMGEVING
Benieuwd naar de omgeving? Bekijk alle voorzieningen onder het kopje ‘In de buurt’!
INTERESSE?
Dan nodigen we je uit om contact met ons op te nemen. We vertellen je graag meer over deze woning en zorgen ervoor dat je overige stukken en algemene voorwaarden verkopend makelaar digitaal via jouw persoonlijke Move account kunt bekijken.
ONZE TIP
Aankopen? Schakel jouw eigen NVM-aankoopmakelaar in! De NVM-aankoopmakelaar komt op voor jouw belang en bespaart je veel tijd, geld en zorgen. Adressen van collega NVM-aankoopmakelaars vind je op Funda.
De gegeven informatie is met zorgvuldigheid opgesteld, aan de juistheid kunnen echter geen rechten worden ontleend. Alle verstrekte informatie moet beschouwd worden als een uitnodiging tot het doen van een aanbod of om in onderhandeling te treden.
Ben je op zoek naar een duurzame, instapklare woning met een zonnige tuin op het zuidwesten? Dan is dit jouw kans. Deze charmante veranda-woning is ideaal voor starters of doorstromers die comfortabel en toekomstgericht willen wonen. De woning is gebouwd in 2016, slim ingedeeld en volledig van nu. Denk aan volledige vloerverwarming (die ook kan koelen), een warmtepomp, 14 zonnepanelen en triple glas. Tel daar de fijne indeling, het aparte washok en de zonnige tuin bij op – en je weet: dit is een plek waar je zó wilt wonen.
Rijswijk Buiten combineert het beste van twee werelden: rustig wonen in het groen, met alle voorzieningen en steden dichtbij. Delft, Rijswijk en Den Haag liggen op korte afstand en via de A4 of A13 ben je snel onderweg. Ook met het openbaar vervoer is de bereikbaarheid uitstekend.
HIGHLIGHTS:
+ Energiezuinig en gasloos wonen
+ Zonnige tuin op het zuidwesten
+ Volledige vloerverwarming én koeling
+ Triple glas en uitstekende isolatie
+ Energiekosten < € 0,-
INDELING
Begane grond
Je komt binnen in de hal met ruimte voor jassen, de meterkast en een modern toilet. De woonkamer is opvallend breed, wat deze woning onderscheidt van de drielaagswoningen in de omgeving. Hierdoor voelt de leefruimte extra ruim en comfortabel aan. De houtlook vloer met vloerverwarming draagt bij aan de warme uitstraling. Aan de voorzijde bevindt zich de moderne open keuken, voorzien van diverse inbouwapparatuur, waaronder een Neff oven, inductiekookplaat, vaatwasser, koelkast en vriezer. De afzuigkap is recent vervangen. Dankzij het grote raam valt er prettig veel daglicht binnen.
Via de woonkamer stap je de zonnige tuin op het zuidwesten in. Achterin de tuin staat een houten berging en er is een praktische achterom aanwezig.
Eerste verdieping
Op deze verdieping bevinden zich twee slaapkamers. De slaapkamer aan de achterzijde is extra ruim dankzij de dakkapel over de maximale breedte, waardoor dit een volwaardige en bijzonder prettige slaapkamer is geworden. De tweede slaapkamer ligt aan de voorzijde.
De badkamer is verzorgd uitgevoerd met een inloopdouche en wastafelmeubel. Daarnaast is er een apart washok, waar ook de WTW-installatie is opgesteld. Ook hier geldt: vloerverwarming door de hele verdieping, met de mogelijkheid om in de zomer te koelen.
DUURZAAM EN COMFORTABEL
Deze woning is gasloos en zeer energiezuinig. De warmtepomp, WTW-installatie, elektrische boiler (150 liter) en zonnepanelen zorgen samen voor een comfortabel binnenklimaat en zeer lage energielasten – zelfs richting nul. Dankzij de goede isolatie en het triple glas woon je hier het hele jaar door aangenaam. De combinatie van houten en deels kunststof kozijnen maakt de woning bovendien onderhoudsvriendelijk.
PLUSPUNTEN:
+ Moderne keuken met o.a. Neff oven
+ Apart washok
+ Twee volwaardige slaapkamers
+ Extra brede woonkamer
+ 14 zonnepanelen en warmtepomp
+ WTW-installatie en elektrische boiler (150 liter)
+ Gelegen op 120 m² eigen grond
+ Rustige, groene en goed bereikbare locatie
+ Combinatie van houten en kunststof kozijnen
BIJZONDERHEDEN
> Bouwjaar 2016
> Woonoppervlakte ca. 91m² (NVM Meetinstructie)
> Inhoud ca. 330m³
> Woning volledig voorzien van vloerverwarming en koeling
> De warmtepomp, het boilervat, de bron en PV-panelen zijn in eigendom
> Het systeem is afgekocht voor ca. € 14.000,- waarbij een all-in onderhoudscontract is afgesloten tot oktober 2029
> Gebouwd onder Woningborg garantie
> Oplevering in overleg
OMGEVING
Benieuwd naar de omgeving? Bekijk alle voorzieningen onder het kopje ‘In de buurt’!
INTERESSE?
Dan nodigen we je uit om contact met ons op te nemen. We vertellen je graag meer over deze woning en zorgen ervoor dat je overige stukken en algemene voorwaarden verkopend makelaar digitaal via jouw persoonlijke Move account kunt bekijken.
ONZE TIP
Aankopen? Schakel jouw eigen NVM-aankoopmakelaar in! De NVM-aankoopmakelaar komt op voor jouw belang en bespaart je veel tijd, geld en zorgen. Adressen van collega NVM-aankoopmakelaars vind je op Funda.
De gegeven informatie is met zorgvuldigheid opgesteld, aan de juistheid kunnen echter geen rechten worden ontleend. Alle verstrekte informatie moet beschouwd worden als een uitnodiging tot het doen van een aanbod of om in onderhandeling te treden.
Beschrijving
Energiezuinige veranda-woning met extra brede woonkamer en zonnige tuin!
Ben je op zoek naar een duurzame, instapklare woning met een zonnige tuin op het zuidwesten? Dan is dit jouw kans. Deze charmante veranda-woning is ideaal voor starters of doorstromers die comfortabel en toekomstgericht willen wonen. De woning is gebouwd in 2016, slim ingedeeld en volledig van nu. Denk aan volledige vloerverwarming (die ook kan koelen), een warmtepomp, 14 zonnepanelen en triple glas. Tel daar de fijne indeling, het aparte washok en de zonnige tuin bij op – en je weet: dit is een plek waar je zó wilt wonen.
Rijswijk Buiten combineert het beste van twee werelden: rustig wonen in het groen, met alle voorzieningen en steden dichtbij. Delft, Rijswijk en Den Haag liggen op korte afstand en via de A4 of A13 ben je snel onderweg. Ook met het openbaar vervoer is de bereikbaarheid uitstekend.
HIGHLIGHTS:
+ Energiezuinig en gasloos wonen
+ Zonnige tuin op het zuidwesten
+ Volledige vloerverwarming én koeling
+ Triple glas en uitstekende isolatie
+ Energiekosten < € 0,-
INDELING
Begane grond
Je komt binnen in de hal met ruimte voor jassen, de meterkast en een modern toilet. De woonkamer is opvallend breed, wat deze woning onderscheidt van de drielaagswoningen in de omgeving. Hierdoor voelt de leefruimte extra ruim en comfortabel aan. De houtlook vloer met vloerverwarming draagt bij aan de warme uitstraling. Aan de voorzijde bevindt zich de moderne open keuken, voorzien van diverse inbouwapparatuur, waaronder een Neff oven, inductiekookplaat, vaatwasser, koelkast en vriezer. De afzuigkap is recent vervangen. Dankzij het grote raam valt er prettig veel daglicht binnen.
Via de woonkamer stap je de zonnige tuin op het zuidwesten in. Achterin de tuin staat een houten berging en er is een praktische achterom aanwezig.
Eerste verdieping
Op deze verdieping bevinden zich twee slaapkamers. De slaapkamer aan de achterzijde is extra ruim dankzij de dakkapel over de maximale breedte, waardoor dit een volwaardige en bijzonder prettige slaapkamer is geworden. De tweede slaapkamer ligt aan de voorzijde.
De badkamer is verzorgd uitgevoerd met een inloopdouche en wastafelmeubel. Daarnaast is er een apart washok, waar ook de WTW-installatie is opgesteld. Ook hier geldt: vloerverwarming door de hele verdieping, met de mogelijkheid om in de zomer te koelen.
DUURZAAM EN COMFORTABEL
Deze woning is gasloos en zeer energiezuinig. De warmtepomp, WTW-installatie, elektrische boiler (150 liter) en zonnepanelen zorgen samen voor een comfortabel binnenklimaat en zeer lage energielasten – zelfs richting nul. Dankzij de goede isolatie en het triple glas woon je hier het hele jaar door aangenaam. De combinatie van houten en deels kunststof kozijnen maakt de woning bovendien onderhoudsvriendelijk.
PLUSPUNTEN:
+ Moderne keuken met o.a. Neff oven
+ Apart washok
+ Twee volwaardige slaapkamers
+ Extra brede woonkamer
+ 14 zonnepanelen en warmtepomp
+ WTW-installatie en elektrische boiler (150 liter)
+ Gelegen op 120 m² eigen grond
+ Rustige, groene en goed bereikbare locatie
+ Combinatie van houten en kunststof kozijnen
BIJZONDERHEDEN
> Bouwjaar 2016
> Woonoppervlakte ca. 91m² (NVM Meetinstructie)
> Inhoud ca. 330m³
> Woning volledig voorzien van vloerverwarming en koeling
> De warmtepomp, het boilervat, de bron en PV-panelen zijn in eigendom
> Het systeem is afgekocht voor ca. € 14.000,- waarbij een all-in onderhoudscontract is afgesloten tot oktober 2029
> Gebouwd onder Woningborg garantie
> Oplevering in overleg
OMGEVING
Benieuwd naar de omgeving? Bekijk alle voorzieningen onder het kopje ‘In de buurt’!
INTERESSE?
Dan nodigen we je uit om contact met ons op te nemen. We vertellen je graag meer over deze woning en zorgen ervoor dat je overige stukken en algemene voorwaarden verkopend makelaar digitaal via jouw persoonlijke Move account kunt bekijken.
ONZE TIP
Aankopen? Schakel jouw eigen NVM-aankoopmakelaar in! De NVM-aankoopmakelaar komt op voor jouw belang en bespaart je veel tijd, geld en zorgen. Adressen van collega NVM-aankoopmakelaars vind je op Funda.
De gegeven informatie is met zorgvuldigheid opgesteld, aan de juistheid kunnen echter geen rechten worden ontleend. Alle verstrekte informatie moet beschouwd worden als een uitnodiging tot het doen van een aanbod of om in onderhandeling te treden.
Ben je op zoek naar een duurzame, instapklare woning met een zonnige tuin op het zuidwesten? Dan is dit jouw kans. Deze charmante veranda-woning is ideaal voor starters of doorstromers die comfortabel en toekomstgericht willen wonen. De woning is gebouwd in 2016, slim ingedeeld en volledig van nu. Denk aan volledige vloerverwarming (die ook kan koelen), een warmtepomp, 14 zonnepanelen en triple glas. Tel daar de fijne indeling, het aparte washok en de zonnige tuin bij op – en je weet: dit is een plek waar je zó wilt wonen.
Rijswijk Buiten combineert het beste van twee werelden: rustig wonen in het groen, met alle voorzieningen en steden dichtbij. Delft, Rijswijk en Den Haag liggen op korte afstand en via de A4 of A13 ben je snel onderweg. Ook met het openbaar vervoer is de bereikbaarheid uitstekend.
HIGHLIGHTS:
+ Energiezuinig en gasloos wonen
+ Zonnige tuin op het zuidwesten
+ Volledige vloerverwarming én koeling
+ Triple glas en uitstekende isolatie
+ Energiekosten < € 0,-
INDELING
Begane grond
Je komt binnen in de hal met ruimte voor jassen, de meterkast en een modern toilet. De woonkamer is opvallend breed, wat deze woning onderscheidt van de drielaagswoningen in de omgeving. Hierdoor voelt de leefruimte extra ruim en comfortabel aan. De houtlook vloer met vloerverwarming draagt bij aan de warme uitstraling. Aan de voorzijde bevindt zich de moderne open keuken, voorzien van diverse inbouwapparatuur, waaronder een Neff oven, inductiekookplaat, vaatwasser, koelkast en vriezer. De afzuigkap is recent vervangen. Dankzij het grote raam valt er prettig veel daglicht binnen.
Via de woonkamer stap je de zonnige tuin op het zuidwesten in. Achterin de tuin staat een houten berging en er is een praktische achterom aanwezig.
Eerste verdieping
Op deze verdieping bevinden zich twee slaapkamers. De slaapkamer aan de achterzijde is extra ruim dankzij de dakkapel over de maximale breedte, waardoor dit een volwaardige en bijzonder prettige slaapkamer is geworden. De tweede slaapkamer ligt aan de voorzijde.
De badkamer is verzorgd uitgevoerd met een inloopdouche en wastafelmeubel. Daarnaast is er een apart washok, waar ook de WTW-installatie is opgesteld. Ook hier geldt: vloerverwarming door de hele verdieping, met de mogelijkheid om in de zomer te koelen.
DUURZAAM EN COMFORTABEL
Deze woning is gasloos en zeer energiezuinig. De warmtepomp, WTW-installatie, elektrische boiler (150 liter) en zonnepanelen zorgen samen voor een comfortabel binnenklimaat en zeer lage energielasten – zelfs richting nul. Dankzij de goede isolatie en het triple glas woon je hier het hele jaar door aangenaam. De combinatie van houten en deels kunststof kozijnen maakt de woning bovendien onderhoudsvriendelijk.
PLUSPUNTEN:
+ Moderne keuken met o.a. Neff oven
+ Apart washok
+ Twee volwaardige slaapkamers
+ Extra brede woonkamer
+ 14 zonnepanelen en warmtepomp
+ WTW-installatie en elektrische boiler (150 liter)
+ Gelegen op 120 m² eigen grond
+ Rustige, groene en goed bereikbare locatie
+ Combinatie van houten en kunststof kozijnen
BIJZONDERHEDEN
> Bouwjaar 2016
> Woonoppervlakte ca. 91m² (NVM Meetinstructie)
> Inhoud ca. 330m³
> Woning volledig voorzien van vloerverwarming en koeling
> De warmtepomp, het boilervat, de bron en PV-panelen zijn in eigendom
> Het systeem is afgekocht voor ca. € 14.000,- waarbij een all-in onderhoudscontract is afgesloten tot oktober 2029
> Gebouwd onder Woningborg garantie
> Oplevering in overleg
OMGEVING
Benieuwd naar de omgeving? Bekijk alle voorzieningen onder het kopje ‘In de buurt’!
INTERESSE?
Dan nodigen we je uit om contact met ons op te nemen. We vertellen je graag meer over deze woning en zorgen ervoor dat je overige stukken en algemene voorwaarden verkopend makelaar digitaal via jouw persoonlijke Move account kunt bekijken.
ONZE TIP
Aankopen? Schakel jouw eigen NVM-aankoopmakelaar in! De NVM-aankoopmakelaar komt op voor jouw belang en bespaart je veel tijd, geld en zorgen. Adressen van collega NVM-aankoopmakelaars vind je op Funda.
De gegeven informatie is met zorgvuldigheid opgesteld, aan de juistheid kunnen echter geen rechten worden ontleend. Alle verstrekte informatie moet beschouwd worden als een uitnodiging tot het doen van een aanbod of om in onderhandeling te treden.
powered by Friva | Lees ons Privacybeleid


















































