
ZOETERMEER - Oosterheem
€ 595.000
Hoornsemeer 37
6 Kamers
1 Badkamers
5 Slaapkamers
137 m²
A
Achtertuin
Bezichtiging aanvragen
Beschrijving
Luxe 6-kamer woning met uitbouw & serre
Ben je op zoek naar een plek waar je je direct thuis voelt? In de geliefde wijk Oosterheem Waterzicht staat deze moderne eengezinswoning uit 2013, helemaal klaar om meteen in te trekken.
Wanneer je binnenkomt, valt meteen de ruime woonkamer op, die dankzij de uitbouw extra licht en ruimte biedt. De sfeervolle cinewall en spotverlichting maken het tot een heerlijke plek om samen te zijn. De open keuken nodigt uit om uitgebreid te koken en gezellig te tafelen met familie of vrienden.
Met maar liefst zes kamers (dankzij grote dakkapel op de zolder) is er volop ruimte voor iedereen: slaapkamers, een thuiskantoor of een speelkamer – jij bepaalt de indeling. Overal in huis zorgt de vloerverwarming voor een comfortabele warmte (of juist verkoeling in de zomer).
De zonnige achtertuin met serre en palmbomen is een heerlijke plek om te ontspannen. De moderne serre vormt een verlengstuk van de woonkamer en is ideaal om het hele jaar door te genieten van licht en ruimte. Hier geniet je van lange zomeravonden, terwijl kinderen spelen op het gras of je gasten aanschuiven onder de overkapping, een groen gazon en een overkapping creëren een mediterrane sfeer waar je eindeloos kunt ontspannen onder twee prachtige palmbomen.
HIGHLIGHTS
+ Uitgebouwde woonkamer met cinewall en spotjes
+ Luxe keuken en badkamer, volledig instapklaar
+ Dakkapel
+ Zonnige achtertuin met serre, overkapping en palmbomen
BEGANE GROND
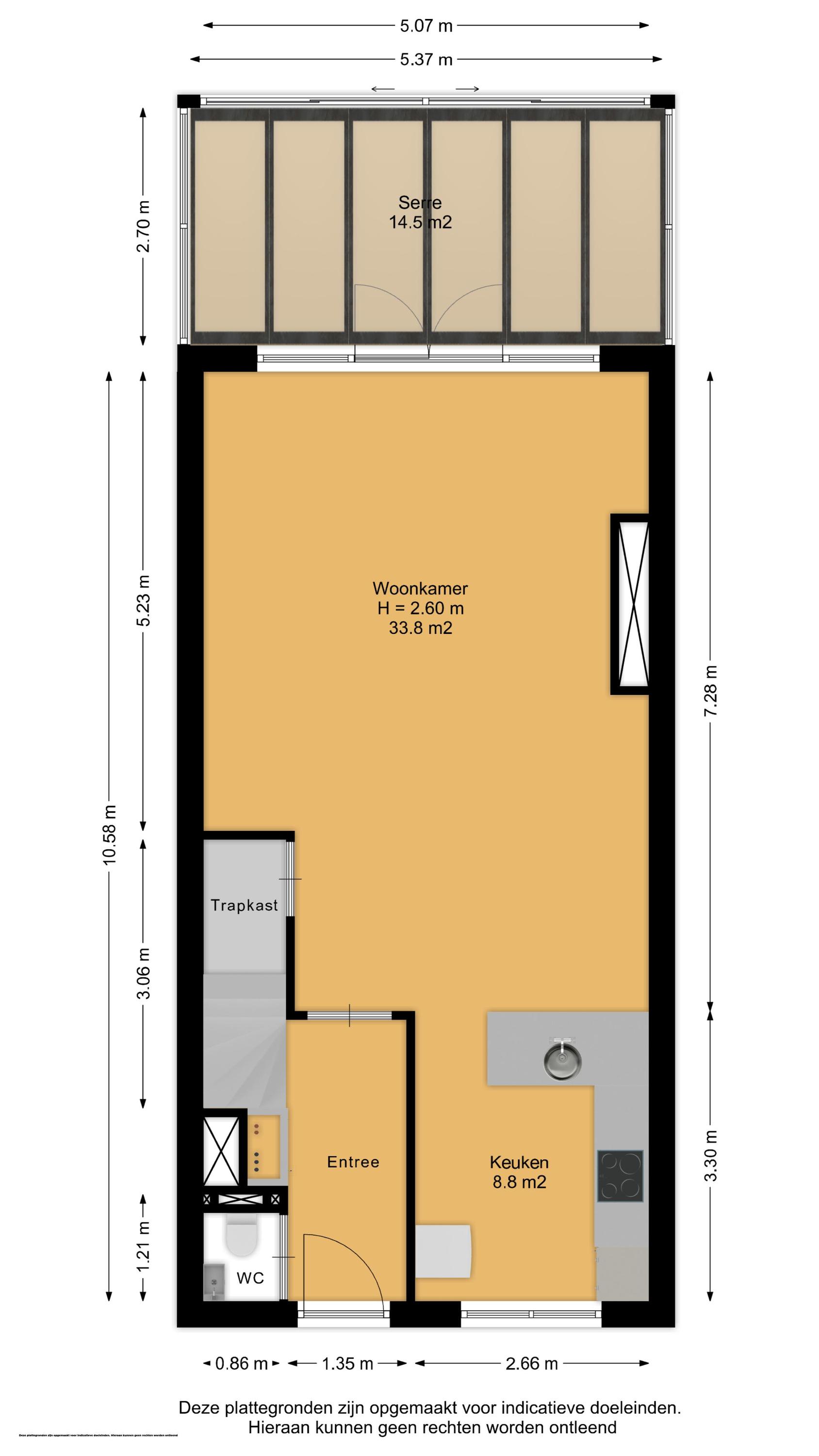
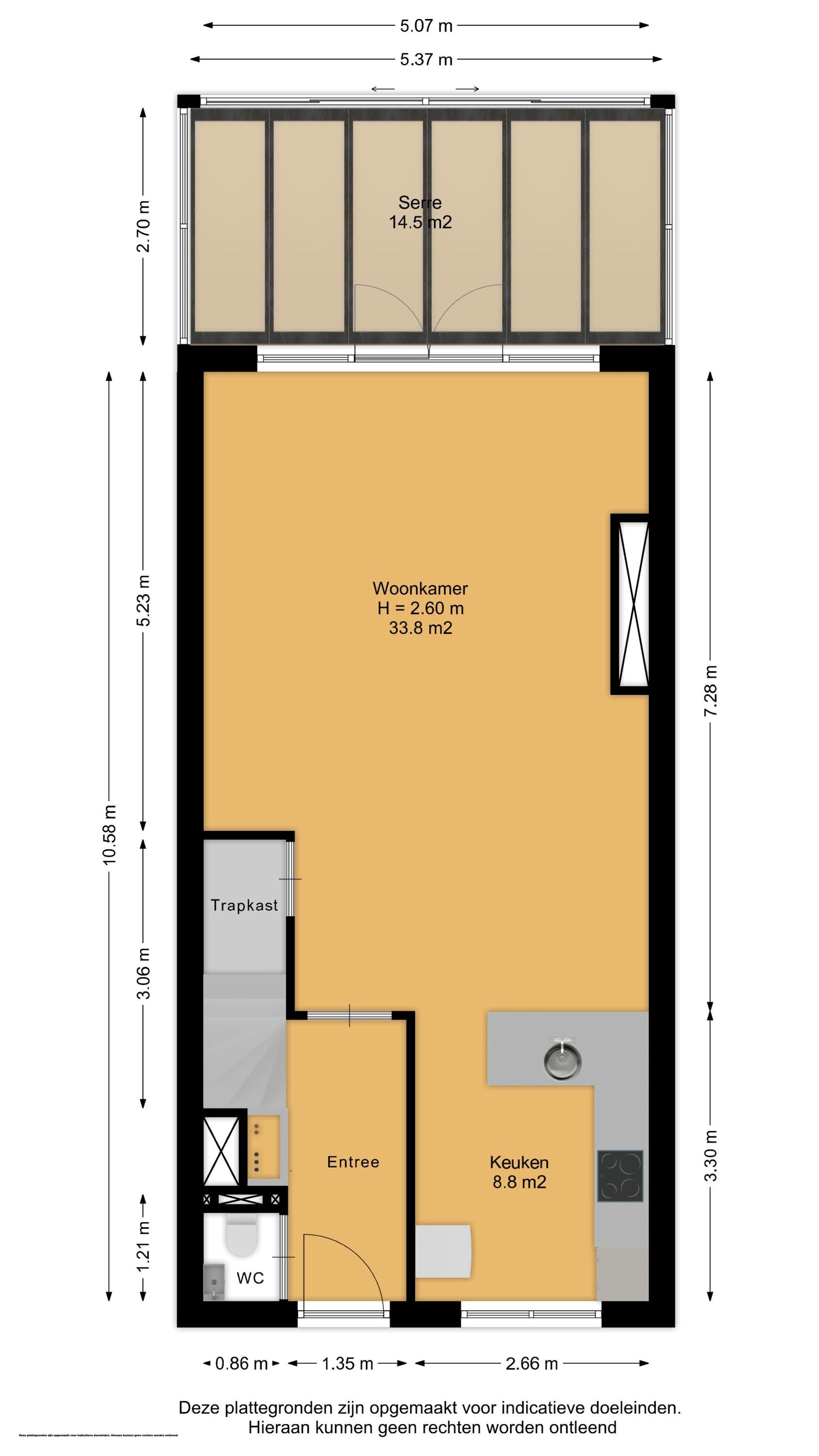
De woning beschikt over een voortuin. Via de entreehal met meterkast bereik je het volledig betegelde toilet, dat is voorzien van een wandcloset, fonteintje en een praktisch nisje. Aan de voorzijde ligt de ruime keuken met bar en diverse inbouwapparatuur. Deze loopt naadloos over in de royale uitgebouwde woonkamer, die is voorzien van een cinewall, inbouwspotjes en een trapkast. Via openslaande deuren heb je toegang tot de fraai aangelegde achtertuin met serre.
EERSTE VERDIEPING
De overloop biedt toegang tot drie slaapkamers en de moderne badkamer. Deze is luxe uitgevoerd met een aparte douche, dubbele wastafel met bijpassend meubel en een toilet.
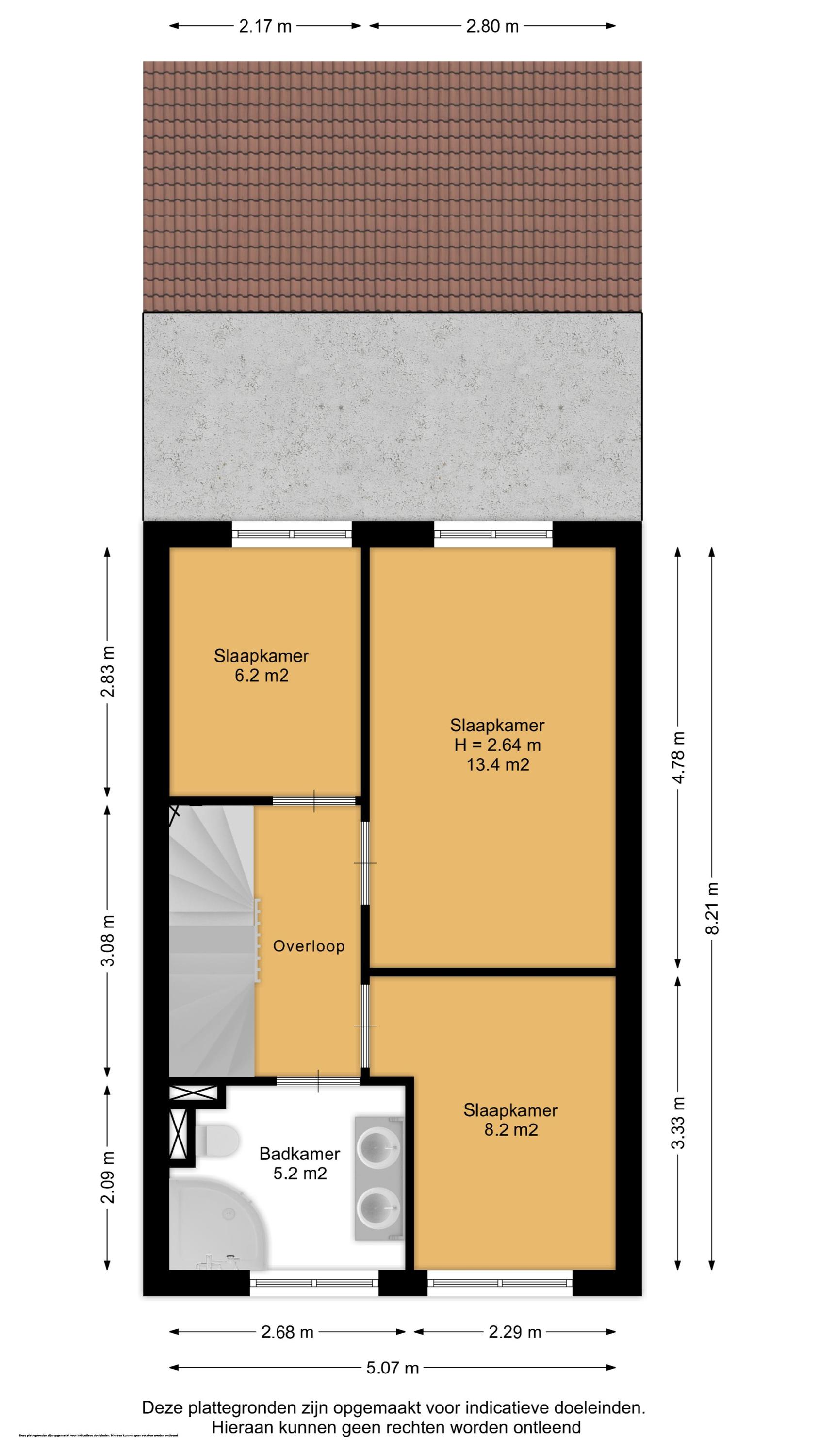
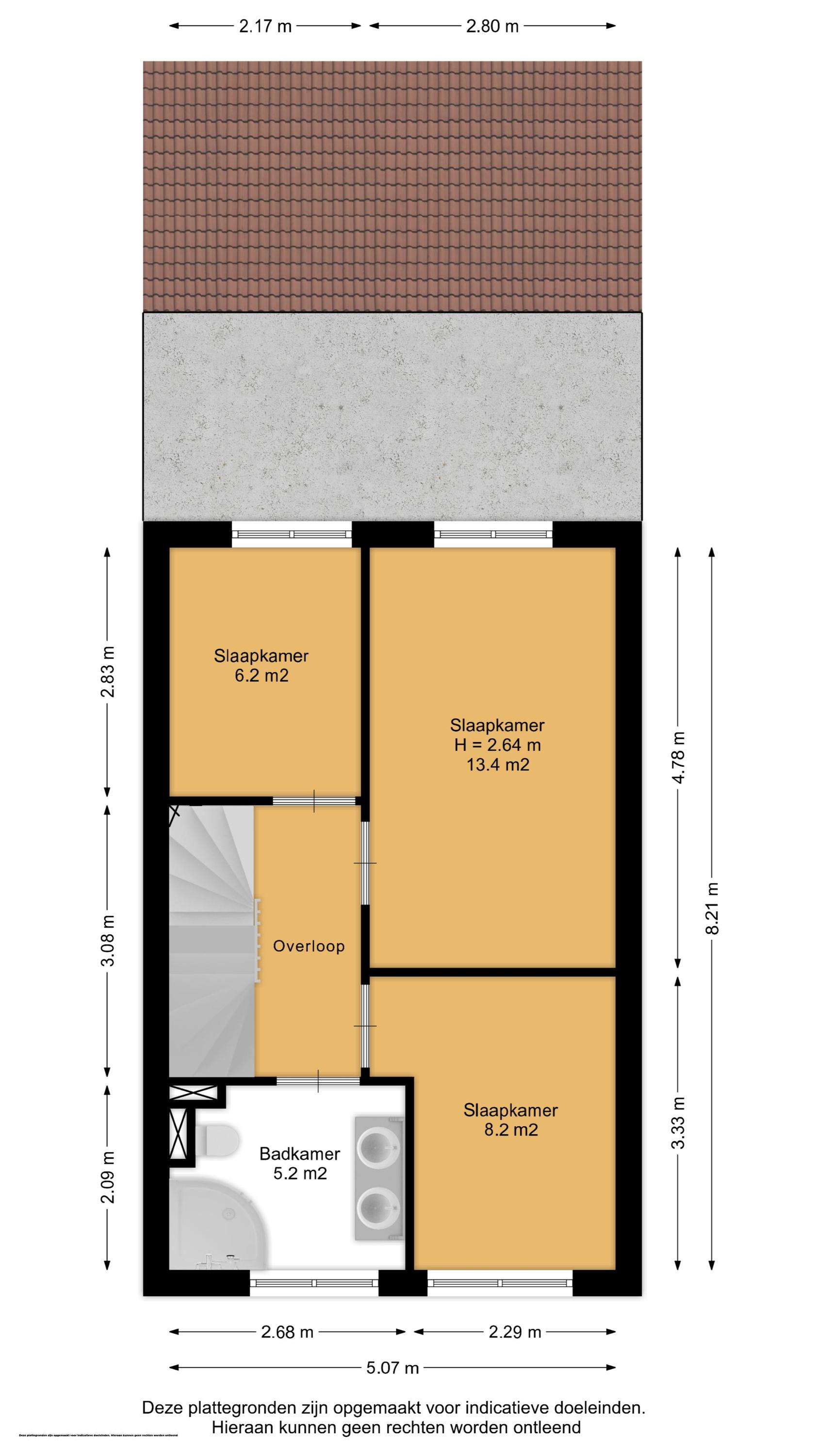
TWEEDE VERDIEPING OF ZOLDERVERDIEPING
De grote zolder beschikt over dakramen aan beide zijden, waardoor er volop natuurlijk licht binnenkomt. Dankzij de ruime opzet zijn er op deze verdieping nog twee kamers, ideaal als werk- of hobbykamer De kamer aan de voorzijde is voorzien van een ruim dakkapel. Daarnaast is er een aparte kast met de warmtepomp, WTW-unit en de aansluitingen voor wasmachine en droger.
BUITENRUIMTES
De strakke voortuin is keurig aangelegd met een border vol planten. De achtertuin is een echte blikvanger, met een prachtig uitgebouwde serre, diverse borders en twee opvallende palmbomen. Hier geniet je volop van de zon en de rust!
OMGEVING
Deze woning ligt in de kindvriendelijke en ruim opgezette wijk Oosterheem, aan de rustige rand van het populaire Waterzicht. Oosterheem staat bekend om zijn moderne opzet, veel groen en uitstekende voorzieningen.
In de directe omgeving vind je basisscholen, kinderopvang, speeltuinen, sportverenigingen en een uitgebreid winkelcentrum met supermarkten, speciaalzaken en horecagelegenheden. Ook het Bentwoud ligt op korte afstand, ideaal voor een wandeling of fietstocht in het groen. Met de RandstadRail om de hoek ben je bovendien snel in het centrum van Zoetermeer of Den Haag.
Klinkt dit als jouw ideale thuis? Loop alvast in 3D door de woning om alle ruimtes te bekijken en maak snel een afspraak voor een bezichtiging!
PLUSPUNTEN
+ Energielabel A
+ Bouwjaar 2013
+ Instapklaar, luxe afwerking
+ Uitgebouwde woonkamer met cinewall en spotjes
+ Moderne open keuken met inbouwapparatuur
+ Luxe badkamer
+ Vloerverwarming (en koeling) per vertrek regelbaar
+ Dakkapel
+ Energiezuinige warmtepomp
+ Zonnige achtertuin (ZW) met serre, gras, borders en palmbomen
+ Houten berging met overkapping
+ Voortuin met bestrating, borders en beplanting
+ Volledig geïsoleerd (HR++)
+ Politiekeurmerk Veilig Wonen
OMGEVING
Benieuwd naar de omgeving? Bekijk alle voorzieningen onder het kopje ‘In de buurt’!
INTERESSE?
Dan nodigen we je uit om contact met ons op te nemen. We vertellen je graag meer over deze woning en zorgen ervoor dat je overige stukken en algemene voorwaarden verkopend makelaar digitaal via jouw persoonlijke Move account kunt bekijken.
ONZE TIP
Aankopen? Schakel jouw eigen NVM-aankoopmakelaar in! De NVM-aankoopmakelaar komt op voor jouw belang en bespaart je veel tijd, geld en zorgen. Adressen van collega NVM-aankoopmakelaars vind je op Funda.
De gegeven informatie is met zorgvuldigheid opgesteld, aan de juistheid kunnen echter geen rechten worden ontleend. Alle verstrekte informatie moet beschouwd worden als een uitnodiging tot het doen van een aanbod of om in onderhandeling te treden.
Ben je op zoek naar een plek waar je je direct thuis voelt? In de geliefde wijk Oosterheem Waterzicht staat deze moderne eengezinswoning uit 2013, helemaal klaar om meteen in te trekken.
Wanneer je binnenkomt, valt meteen de ruime woonkamer op, die dankzij de uitbouw extra licht en ruimte biedt. De sfeervolle cinewall en spotverlichting maken het tot een heerlijke plek om samen te zijn. De open keuken nodigt uit om uitgebreid te koken en gezellig te tafelen met familie of vrienden.
Met maar liefst zes kamers (dankzij grote dakkapel op de zolder) is er volop ruimte voor iedereen: slaapkamers, een thuiskantoor of een speelkamer – jij bepaalt de indeling. Overal in huis zorgt de vloerverwarming voor een comfortabele warmte (of juist verkoeling in de zomer).
De zonnige achtertuin met serre en palmbomen is een heerlijke plek om te ontspannen. De moderne serre vormt een verlengstuk van de woonkamer en is ideaal om het hele jaar door te genieten van licht en ruimte. Hier geniet je van lange zomeravonden, terwijl kinderen spelen op het gras of je gasten aanschuiven onder de overkapping, een groen gazon en een overkapping creëren een mediterrane sfeer waar je eindeloos kunt ontspannen onder twee prachtige palmbomen.
HIGHLIGHTS
+ Uitgebouwde woonkamer met cinewall en spotjes
+ Luxe keuken en badkamer, volledig instapklaar
+ Dakkapel
+ Zonnige achtertuin met serre, overkapping en palmbomen
BEGANE GROND
De woning beschikt over een voortuin. Via de entreehal met meterkast bereik je het volledig betegelde toilet, dat is voorzien van een wandcloset, fonteintje en een praktisch nisje. Aan de voorzijde ligt de ruime keuken met bar en diverse inbouwapparatuur. Deze loopt naadloos over in de royale uitgebouwde woonkamer, die is voorzien van een cinewall, inbouwspotjes en een trapkast. Via openslaande deuren heb je toegang tot de fraai aangelegde achtertuin met serre.
EERSTE VERDIEPING
De overloop biedt toegang tot drie slaapkamers en de moderne badkamer. Deze is luxe uitgevoerd met een aparte douche, dubbele wastafel met bijpassend meubel en een toilet.
TWEEDE VERDIEPING OF ZOLDERVERDIEPING
De grote zolder beschikt over dakramen aan beide zijden, waardoor er volop natuurlijk licht binnenkomt. Dankzij de ruime opzet zijn er op deze verdieping nog twee kamers, ideaal als werk- of hobbykamer De kamer aan de voorzijde is voorzien van een ruim dakkapel. Daarnaast is er een aparte kast met de warmtepomp, WTW-unit en de aansluitingen voor wasmachine en droger.
BUITENRUIMTES
De strakke voortuin is keurig aangelegd met een border vol planten. De achtertuin is een echte blikvanger, met een prachtig uitgebouwde serre, diverse borders en twee opvallende palmbomen. Hier geniet je volop van de zon en de rust!
OMGEVING
Deze woning ligt in de kindvriendelijke en ruim opgezette wijk Oosterheem, aan de rustige rand van het populaire Waterzicht. Oosterheem staat bekend om zijn moderne opzet, veel groen en uitstekende voorzieningen.
In de directe omgeving vind je basisscholen, kinderopvang, speeltuinen, sportverenigingen en een uitgebreid winkelcentrum met supermarkten, speciaalzaken en horecagelegenheden. Ook het Bentwoud ligt op korte afstand, ideaal voor een wandeling of fietstocht in het groen. Met de RandstadRail om de hoek ben je bovendien snel in het centrum van Zoetermeer of Den Haag.
Klinkt dit als jouw ideale thuis? Loop alvast in 3D door de woning om alle ruimtes te bekijken en maak snel een afspraak voor een bezichtiging!
PLUSPUNTEN
+ Energielabel A
+ Bouwjaar 2013
+ Instapklaar, luxe afwerking
+ Uitgebouwde woonkamer met cinewall en spotjes
+ Moderne open keuken met inbouwapparatuur
+ Luxe badkamer
+ Vloerverwarming (en koeling) per vertrek regelbaar
+ Dakkapel
+ Energiezuinige warmtepomp
+ Zonnige achtertuin (ZW) met serre, gras, borders en palmbomen
+ Houten berging met overkapping
+ Voortuin met bestrating, borders en beplanting
+ Volledig geïsoleerd (HR++)
+ Politiekeurmerk Veilig Wonen
OMGEVING
Benieuwd naar de omgeving? Bekijk alle voorzieningen onder het kopje ‘In de buurt’!
INTERESSE?
Dan nodigen we je uit om contact met ons op te nemen. We vertellen je graag meer over deze woning en zorgen ervoor dat je overige stukken en algemene voorwaarden verkopend makelaar digitaal via jouw persoonlijke Move account kunt bekijken.
ONZE TIP
Aankopen? Schakel jouw eigen NVM-aankoopmakelaar in! De NVM-aankoopmakelaar komt op voor jouw belang en bespaart je veel tijd, geld en zorgen. Adressen van collega NVM-aankoopmakelaars vind je op Funda.
De gegeven informatie is met zorgvuldigheid opgesteld, aan de juistheid kunnen echter geen rechten worden ontleend. Alle verstrekte informatie moet beschouwd worden als een uitnodiging tot het doen van een aanbod of om in onderhandeling te treden.
Beschrijving
Luxe 6-kamer woning met uitbouw & serre
Ben je op zoek naar een plek waar je je direct thuis voelt? In de geliefde wijk Oosterheem Waterzicht staat deze moderne eengezinswoning uit 2013, helemaal klaar om meteen in te trekken.
Wanneer je binnenkomt, valt meteen de ruime woonkamer op, die dankzij de uitbouw extra licht en ruimte biedt. De sfeervolle cinewall en spotverlichting maken het tot een heerlijke plek om samen te zijn. De open keuken nodigt uit om uitgebreid te koken en gezellig te tafelen met familie of vrienden.
Met maar liefst zes kamers (dankzij grote dakkapel op de zolder) is er volop ruimte voor iedereen: slaapkamers, een thuiskantoor of een speelkamer – jij bepaalt de indeling. Overal in huis zorgt de vloerverwarming voor een comfortabele warmte (of juist verkoeling in de zomer).
De zonnige achtertuin met serre en palmbomen is een heerlijke plek om te ontspannen. De moderne serre vormt een verlengstuk van de woonkamer en is ideaal om het hele jaar door te genieten van licht en ruimte. Hier geniet je van lange zomeravonden, terwijl kinderen spelen op het gras of je gasten aanschuiven onder de overkapping, een groen gazon en een overkapping creëren een mediterrane sfeer waar je eindeloos kunt ontspannen onder twee prachtige palmbomen.
HIGHLIGHTS
+ Uitgebouwde woonkamer met cinewall en spotjes
+ Luxe keuken en badkamer, volledig instapklaar
+ Dakkapel
+ Zonnige achtertuin met serre, overkapping en palmbomen
BEGANE GROND
De woning beschikt over een voortuin. Via de entreehal met meterkast bereik je het volledig betegelde toilet, dat is voorzien van een wandcloset, fonteintje en een praktisch nisje. Aan de voorzijde ligt de ruime keuken met bar en diverse inbouwapparatuur. Deze loopt naadloos over in de royale uitgebouwde woonkamer, die is voorzien van een cinewall, inbouwspotjes en een trapkast. Via openslaande deuren heb je toegang tot de fraai aangelegde achtertuin met serre.
EERSTE VERDIEPING
De overloop biedt toegang tot drie slaapkamers en de moderne badkamer. Deze is luxe uitgevoerd met een aparte douche, dubbele wastafel met bijpassend meubel en een toilet.
TWEEDE VERDIEPING OF ZOLDERVERDIEPING
De grote zolder beschikt over dakramen aan beide zijden, waardoor er volop natuurlijk licht binnenkomt. Dankzij de ruime opzet zijn er op deze verdieping nog twee kamers, ideaal als werk- of hobbykamer De kamer aan de voorzijde is voorzien van een ruim dakkapel. Daarnaast is er een aparte kast met de warmtepomp, WTW-unit en de aansluitingen voor wasmachine en droger.
BUITENRUIMTES
De strakke voortuin is keurig aangelegd met een border vol planten. De achtertuin is een echte blikvanger, met een prachtig uitgebouwde serre, diverse borders en twee opvallende palmbomen. Hier geniet je volop van de zon en de rust!
OMGEVING
Deze woning ligt in de kindvriendelijke en ruim opgezette wijk Oosterheem, aan de rustige rand van het populaire Waterzicht. Oosterheem staat bekend om zijn moderne opzet, veel groen en uitstekende voorzieningen.
In de directe omgeving vind je basisscholen, kinderopvang, speeltuinen, sportverenigingen en een uitgebreid winkelcentrum met supermarkten, speciaalzaken en horecagelegenheden. Ook het Bentwoud ligt op korte afstand, ideaal voor een wandeling of fietstocht in het groen. Met de RandstadRail om de hoek ben je bovendien snel in het centrum van Zoetermeer of Den Haag.
Klinkt dit als jouw ideale thuis? Loop alvast in 3D door de woning om alle ruimtes te bekijken en maak snel een afspraak voor een bezichtiging!
PLUSPUNTEN
+ Energielabel A
+ Bouwjaar 2013
+ Instapklaar, luxe afwerking
+ Uitgebouwde woonkamer met cinewall en spotjes
+ Moderne open keuken met inbouwapparatuur
+ Luxe badkamer
+ Vloerverwarming (en koeling) per vertrek regelbaar
+ Dakkapel
+ Energiezuinige warmtepomp
+ Zonnige achtertuin (ZW) met serre, gras, borders en palmbomen
+ Houten berging met overkapping
+ Voortuin met bestrating, borders en beplanting
+ Volledig geïsoleerd (HR++)
+ Politiekeurmerk Veilig Wonen
OMGEVING
Benieuwd naar de omgeving? Bekijk alle voorzieningen onder het kopje ‘In de buurt’!
INTERESSE?
Dan nodigen we je uit om contact met ons op te nemen. We vertellen je graag meer over deze woning en zorgen ervoor dat je overige stukken en algemene voorwaarden verkopend makelaar digitaal via jouw persoonlijke Move account kunt bekijken.
ONZE TIP
Aankopen? Schakel jouw eigen NVM-aankoopmakelaar in! De NVM-aankoopmakelaar komt op voor jouw belang en bespaart je veel tijd, geld en zorgen. Adressen van collega NVM-aankoopmakelaars vind je op Funda.
De gegeven informatie is met zorgvuldigheid opgesteld, aan de juistheid kunnen echter geen rechten worden ontleend. Alle verstrekte informatie moet beschouwd worden als een uitnodiging tot het doen van een aanbod of om in onderhandeling te treden.
Ben je op zoek naar een plek waar je je direct thuis voelt? In de geliefde wijk Oosterheem Waterzicht staat deze moderne eengezinswoning uit 2013, helemaal klaar om meteen in te trekken.
Wanneer je binnenkomt, valt meteen de ruime woonkamer op, die dankzij de uitbouw extra licht en ruimte biedt. De sfeervolle cinewall en spotverlichting maken het tot een heerlijke plek om samen te zijn. De open keuken nodigt uit om uitgebreid te koken en gezellig te tafelen met familie of vrienden.
Met maar liefst zes kamers (dankzij grote dakkapel op de zolder) is er volop ruimte voor iedereen: slaapkamers, een thuiskantoor of een speelkamer – jij bepaalt de indeling. Overal in huis zorgt de vloerverwarming voor een comfortabele warmte (of juist verkoeling in de zomer).
De zonnige achtertuin met serre en palmbomen is een heerlijke plek om te ontspannen. De moderne serre vormt een verlengstuk van de woonkamer en is ideaal om het hele jaar door te genieten van licht en ruimte. Hier geniet je van lange zomeravonden, terwijl kinderen spelen op het gras of je gasten aanschuiven onder de overkapping, een groen gazon en een overkapping creëren een mediterrane sfeer waar je eindeloos kunt ontspannen onder twee prachtige palmbomen.
HIGHLIGHTS
+ Uitgebouwde woonkamer met cinewall en spotjes
+ Luxe keuken en badkamer, volledig instapklaar
+ Dakkapel
+ Zonnige achtertuin met serre, overkapping en palmbomen
BEGANE GROND
De woning beschikt over een voortuin. Via de entreehal met meterkast bereik je het volledig betegelde toilet, dat is voorzien van een wandcloset, fonteintje en een praktisch nisje. Aan de voorzijde ligt de ruime keuken met bar en diverse inbouwapparatuur. Deze loopt naadloos over in de royale uitgebouwde woonkamer, die is voorzien van een cinewall, inbouwspotjes en een trapkast. Via openslaande deuren heb je toegang tot de fraai aangelegde achtertuin met serre.
EERSTE VERDIEPING
De overloop biedt toegang tot drie slaapkamers en de moderne badkamer. Deze is luxe uitgevoerd met een aparte douche, dubbele wastafel met bijpassend meubel en een toilet.
TWEEDE VERDIEPING OF ZOLDERVERDIEPING
De grote zolder beschikt over dakramen aan beide zijden, waardoor er volop natuurlijk licht binnenkomt. Dankzij de ruime opzet zijn er op deze verdieping nog twee kamers, ideaal als werk- of hobbykamer De kamer aan de voorzijde is voorzien van een ruim dakkapel. Daarnaast is er een aparte kast met de warmtepomp, WTW-unit en de aansluitingen voor wasmachine en droger.
BUITENRUIMTES
De strakke voortuin is keurig aangelegd met een border vol planten. De achtertuin is een echte blikvanger, met een prachtig uitgebouwde serre, diverse borders en twee opvallende palmbomen. Hier geniet je volop van de zon en de rust!
OMGEVING
Deze woning ligt in de kindvriendelijke en ruim opgezette wijk Oosterheem, aan de rustige rand van het populaire Waterzicht. Oosterheem staat bekend om zijn moderne opzet, veel groen en uitstekende voorzieningen.
In de directe omgeving vind je basisscholen, kinderopvang, speeltuinen, sportverenigingen en een uitgebreid winkelcentrum met supermarkten, speciaalzaken en horecagelegenheden. Ook het Bentwoud ligt op korte afstand, ideaal voor een wandeling of fietstocht in het groen. Met de RandstadRail om de hoek ben je bovendien snel in het centrum van Zoetermeer of Den Haag.
Klinkt dit als jouw ideale thuis? Loop alvast in 3D door de woning om alle ruimtes te bekijken en maak snel een afspraak voor een bezichtiging!
PLUSPUNTEN
+ Energielabel A
+ Bouwjaar 2013
+ Instapklaar, luxe afwerking
+ Uitgebouwde woonkamer met cinewall en spotjes
+ Moderne open keuken met inbouwapparatuur
+ Luxe badkamer
+ Vloerverwarming (en koeling) per vertrek regelbaar
+ Dakkapel
+ Energiezuinige warmtepomp
+ Zonnige achtertuin (ZW) met serre, gras, borders en palmbomen
+ Houten berging met overkapping
+ Voortuin met bestrating, borders en beplanting
+ Volledig geïsoleerd (HR++)
+ Politiekeurmerk Veilig Wonen
OMGEVING
Benieuwd naar de omgeving? Bekijk alle voorzieningen onder het kopje ‘In de buurt’!
INTERESSE?
Dan nodigen we je uit om contact met ons op te nemen. We vertellen je graag meer over deze woning en zorgen ervoor dat je overige stukken en algemene voorwaarden verkopend makelaar digitaal via jouw persoonlijke Move account kunt bekijken.
ONZE TIP
Aankopen? Schakel jouw eigen NVM-aankoopmakelaar in! De NVM-aankoopmakelaar komt op voor jouw belang en bespaart je veel tijd, geld en zorgen. Adressen van collega NVM-aankoopmakelaars vind je op Funda.
De gegeven informatie is met zorgvuldigheid opgesteld, aan de juistheid kunnen echter geen rechten worden ontleend. Alle verstrekte informatie moet beschouwd worden als een uitnodiging tot het doen van een aanbod of om in onderhandeling te treden.
powered by Friva | Lees ons Privacybeleid