
'S-GRAVENHAGE - Geuzen- en Statenkwartier
€ 975.000
Van Boetzelaerlaan 20
10 Kamers
1 Badkamers
8 Slaapkamers
217 m²
D
Achtertuin
Bezichtiging aanvragen
Beschrijving
Ruim en licht herenhuis met 10 kamers en zonnige tuin op het zuid-westen
Dit karaktervolle herenhuis aan de Van Boetzelaerlaan combineert de grandeur van begin vorige eeuw met volop ruimte en mogelijkheden om naar eigen smaak te moderniseren. Hoge plafonds, glas-in-loodramen, originele parketvloeren en sierplafonds geven de woning een unieke uitstraling. Met drie woonlagen, een kelder, vier grote slaapkamers en vier kleine slaapkamers, twee balkons en een zonnige achtertuin op het zuidwesten heb je hier alle ruimte om wonen en werken te combineren.
De woning is de afgelopen jaren op belangrijke punten aangepakt. Het balkon aan de achterzijde is totaal vernieuwd en vervangen door een zinken exemplaar (2015), het dak heeft een nieuwe isolatielaag met 10 cm. pirschuim en EPDM (2014) en is er een lichtkoepel vernieuwd (2025). Dankzij de ruime indeling kun je eenvoudig meerdere kamers gebruiken als kantoor- of praktijkruimte aan huis.
HIGHLIGHTS
+ Authentieke details zoals glas-in-lood, hoge plafonds en parket vloeren
+ Ruime en zonnige tuin op het zuidwesten én 2 balkons
+ Drie woonlagen en een kelder met volop mogelijkheden
+ Wonen en werken ideaal te combineren
INDELING
BEGANE GROND
Bij binnenkomst valt direct het fraaie glas-in-lood boven de voordeur op, dat zorgt voor een bijzondere lichtinval. Aan de voorzijde ligt een sfeervolle kamer met open haard en hoge ramen. Aan de achterzijde bevindt zich een royale kamer met sierplafond en toegang tot de tuin. Beide kamers op de parterre hebben een originele parketvloer.
De zonnige achtertuin op het zuidwesten biedt van 10:00 uur tot laat in de middag/avond zon en beschikt over een vaste berging en overkapping. Aan de achterzijde is bovendien een kamer met aanrecht en wateraansluiting, een ideale basis voor een nieuwe keuken. Oorspronkelijk waren keuken en kamers open; omdat er later muren zijn geplaatst, kun je eenvoudig weer een royale leefruimte creëren.
Onder de trap bevindt zich een toilet met fonteintje. Vanuit de gang heb je toegang tot de kelder met veel opbergruimte en de cv-installatie.
EERSTE VERDIEPING
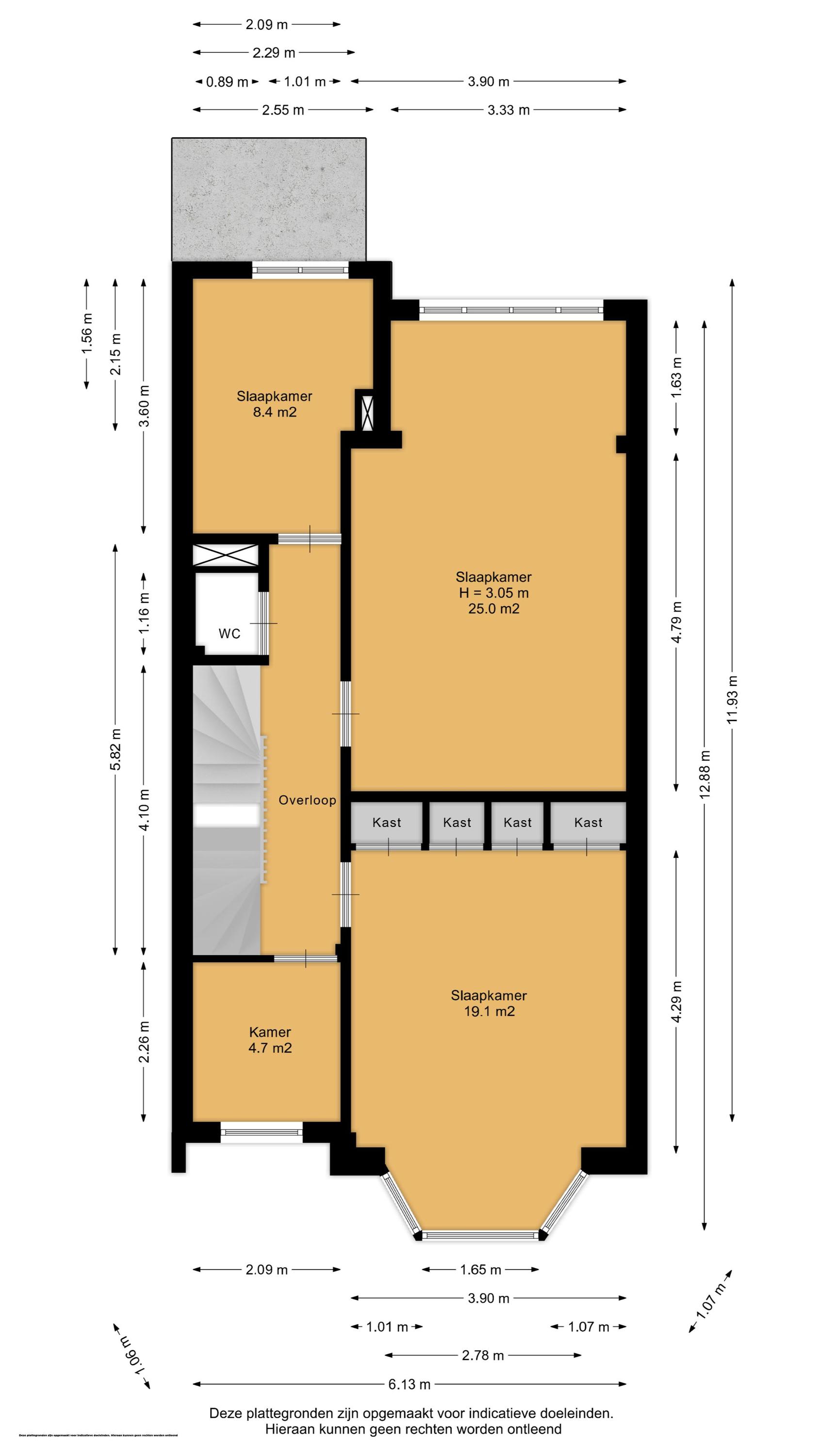
Hier vind je vier slaapkamers en een tweede toilet. De voorzijde biedt een kamertje die zich goed leent als werkkamer en daarnaast een lichte slaapkamer met erker, originele parketvloer en ingebouwde kasten over de volle breedte. Aan de achterzijde liggen een ruime slaapkamer met originele parketvloer en plafondlijsten en een kleinere kamer die prima geschikt is als logeer- of hobbykamer.
TWEEDE VERDIEPING
De glas-in-loodramen springen hier meteen in het oog. Aan de voorzijde ligt een royale kamer met laminaatvloer, ingebouwde kast en openslaande deuren naar een balkontje op het oosten. Ook het tweede voorkamertje heeft glas-in-looddetails en een parketvloer.
In het midden van de verdieping bevindt zich een tussenzolder die momenteel wordt gebruikt als keuken/douche. Deze ruimte leent zich uitstekend om te transformeren tot een ruime, moderne badkamer of juist een extra kamer.
Aan de achterzijde liggen nog twee kamers, waarvan één met toegang tot een heerlijk zonnig balkon op het westen en één kamertje met een eigen wastafel. Verder is er een derde separaat toilet. Dankzij het grote dakraam boven de trap is de overloop heerlijk licht.
DE OMGEVING
De ligging in het Statenkwartier is perfect. Je woont op loopafstand van de levendige Frederik Hendriklaan (“De Fred”), bekend om zijn diversiteit aan winkels, boetieks, cafés en restaurants. Het strand van Scheveningen ligt op fietsafstand en ook het centrum van Den Haag is dichtbij. Scholen, sportclubs en culturele voorzieningen vind je in de directe omgeving. De woning heeft bovendien een uitstekende bereikbaarheid met auto en OV: tramhalte lijn 11 en buslijn 24 liggen op ca. 150 meter afstand.
Klinkt dit als jouw ideale thuis? Loop alvast in 3D door de woning om alle ruimtes te bekijken en maak snel een afspraak voor een bezichtiging!
PLUSPUNTEN
+ Statige uitstraling achter een klassieke gevel
+ Ideaal woon-/bedrijfspand: diverse kamers in te richten als kantoor of praktijkruimte
+ Royale woonkamer met open haard en sierplafond
+ Ruime, zonnige tuin op het zuid-westen met berging en overkapping
+ Kelder met veel bergruimte en cv-opstelling
+ 10 kamers, waarvan 8 slaapkamers
+ Vier slaapkamers op de eerste verdieping
+ Vier charmante kamers op de tweede verdieping
+ In de parterre en op de eerste verdieping, hebben de vier grootste kamers parketvloer
+ 6 slaapkamers voorzien van dubbelglas
+ Mogelijkheid om keuken en badkamer volledig naar eigen smaak te realiseren
+ Grote ramen en veel lichtinval door de hele woning
+ Dakisolatie met 10 cm. pirschuim en EPDM afdekking (2014)
+ Nieuwe lichtkoepel geplaatst (2025)
+ Balkon vernieuwd in zink (2015), gelegen op het westen
+ Gelegen in het geliefde Statenkwartier, op loopafstand van de Frederik Hendriklaan (“De Fred”)
+ Strand van Scheveningen en de binnenstad van Den Haag dichtbij
+ Uitstekende bereikbaarheid met auto en OV
+ Veel scholen, speelplekken en voorzieningen in de buurt
+ Tramhalte Lijn 11 en bushalte lijn 24 op 150 meter afstand.
+ Betaald parkeren na 13:00 uur, ruime parkeergelegenheid
+ Bouwkundig rapport aanwezig en direct beschikbaar
* Niet-zelfbewoning, ouderdoms-, materialen-, asbest en loodclausule zijn van toepassing
-----------------------------------------------------------------------------------------
Persoonlijke note verkopers:
Wij hebben het herenhuis op de Van Boetzelaerlaan 20 een kleine dertig jaar geleden gekocht om daar op de begane grond en de eerste etage ons kantoor te vestigen. De tweede etage verhuurden we vrijwel al die jaren. Alleen aan twee meisjes. De één woonde aan de voorzijde in een grote woonkamer met een ingebouwde kast en met balkonnetje. Slapen hoefde niet in dezelfde kamer, maar ging prima in een aangrenzend kamertje, ook aan de voorzijde, waarin ook een ingebouwde kast is.
Een ander meisje woonde aan de achterzijde, ook in een grote kamer en sliep in het aangrenzende kamertje, ook aan de achterzijde. Zij had de beschikking over een groot balkon, waar genoten kon worden van de zon in de middag en namiddag met ruimte genoeg voor vrienden. Zij had het voordeel van een wastafel in het slaapkamertje. Als toevallig beide kamers tegelijk beschikbaar kwamen, was het moeilijk kiezen: genieten van de ochtendzon door het glas-in-lood aan de voorzijde of genieten van de middag- en avondzon aan de achterzijde.
In de tussenzolder was aan de achterzijde een ingebouwde doucheruimte naast een ingebouwde (servies)kast en aan de voorzijde een aanrecht met grote geiser aan de ene kant en een koelkast met daarop een magnetron en daarnaast een wasmachine met daarop een 4-pits gascomfort onder een wasemkap. Best wel compleet.
Meestal bleef men jaren ‘hangen’ tot afstuderen of een studie of baan in een andere stad.
Op de middenberm staan voor het huis enige ‘nietjes’, waaraan fietsen kunnen worden vastgelegd. Die middenberm heeft nog drie voordelen: tramlijn 11 glijdt er bijna geruisloos door, de overburen liggen achter twee bomenrijen op tientallen meters afstand, wat een prettig, ruimtelijk gevoel levert en er is geen parkeerdruk (de middenberm levert een verdubbeling van parkeerplaatsen op. Het Verversingskanaal langs de direct achter de Boetz gelegen Kranenburgweg vormt een uitstekende barrière tegen ‘zijstraatjes’ autobezitters. Altijd plenty ruimte dus. Betaald parkeren voor niet-bewoners geldt alleen van 13.00 u tot en met middernacht.
Liefhebbers van strand en duinen: de Kranenburgweg voert je rechtstreeks naar duinen, haven, strand en zee. En die Kranenburgweg (deel van de Sterfietsroute van het centrum naar zee en strand) begint bij ons op de hoek, een meter of vijftig bij ons vandaan!
Tramlijn 11 voert naar het Hollands spoor en bus 24 naar het centrum en het Centraal Station. Mooier kan niet.
Van Boetzelaerlaan 20 is een fijn, zeer ruim huis met prachtig uitzicht over de Boetz, heel gunstig gelegen in een bijzonder prettige buurt met vlakbij op de Fred veel winkels, supermarkten, restaurantjes en terrassen.
Mensen die hier wonen, blijven hier heel lang wonen, echt vele decennia. Dat geeft wel aan hoe plezierig wonen het hier is.
De laatste jaren is er ’s zomers een straatfeest voor ‘de Boetz’, op de middenberm van het volgende stuk van de straat. Met hapjes en drankjes, tafeltjes, stoelen en attracties voor kinderen wordt dat ieder jaar drukker.
INTERESSE?
Dan nodigen we je uit om contact met ons op te nemen. We vertellen je graag meer over deze woning en zorgen ervoor dat je overige stukken en algemene voorwaarden verkopend makelaar digitaal via jouw persoonlijke Move account kunt bekijken.
ONZE TIP
Aankopen? Schakel jouw eigen NVM-aankoopmakelaar in! De NVM-aankoopmakelaar komt op voor jouw belang en bespaart je veel tijd, geld en zorgen. Adressen van collega NVM-aankoopmakelaars vind je op Funda.
De gegeven informatie is met zorgvuldigheid opgesteld, aan de juistheid kunnen echter geen rechten worden ontleend. Alle verstrekte informatie moet beschouwd worden als een uitnodiging tot het doen van een aanbod of om in onderhandeling te treden.
Dit karaktervolle herenhuis aan de Van Boetzelaerlaan combineert de grandeur van begin vorige eeuw met volop ruimte en mogelijkheden om naar eigen smaak te moderniseren. Hoge plafonds, glas-in-loodramen, originele parketvloeren en sierplafonds geven de woning een unieke uitstraling. Met drie woonlagen, een kelder, vier grote slaapkamers en vier kleine slaapkamers, twee balkons en een zonnige achtertuin op het zuidwesten heb je hier alle ruimte om wonen en werken te combineren.
De woning is de afgelopen jaren op belangrijke punten aangepakt. Het balkon aan de achterzijde is totaal vernieuwd en vervangen door een zinken exemplaar (2015), het dak heeft een nieuwe isolatielaag met 10 cm. pirschuim en EPDM (2014) en is er een lichtkoepel vernieuwd (2025). Dankzij de ruime indeling kun je eenvoudig meerdere kamers gebruiken als kantoor- of praktijkruimte aan huis.
HIGHLIGHTS
+ Authentieke details zoals glas-in-lood, hoge plafonds en parket vloeren
+ Ruime en zonnige tuin op het zuidwesten én 2 balkons
+ Drie woonlagen en een kelder met volop mogelijkheden
+ Wonen en werken ideaal te combineren
INDELING
BEGANE GROND
Bij binnenkomst valt direct het fraaie glas-in-lood boven de voordeur op, dat zorgt voor een bijzondere lichtinval. Aan de voorzijde ligt een sfeervolle kamer met open haard en hoge ramen. Aan de achterzijde bevindt zich een royale kamer met sierplafond en toegang tot de tuin. Beide kamers op de parterre hebben een originele parketvloer.
De zonnige achtertuin op het zuidwesten biedt van 10:00 uur tot laat in de middag/avond zon en beschikt over een vaste berging en overkapping. Aan de achterzijde is bovendien een kamer met aanrecht en wateraansluiting, een ideale basis voor een nieuwe keuken. Oorspronkelijk waren keuken en kamers open; omdat er later muren zijn geplaatst, kun je eenvoudig weer een royale leefruimte creëren.
Onder de trap bevindt zich een toilet met fonteintje. Vanuit de gang heb je toegang tot de kelder met veel opbergruimte en de cv-installatie.
EERSTE VERDIEPING
Hier vind je vier slaapkamers en een tweede toilet. De voorzijde biedt een kamertje die zich goed leent als werkkamer en daarnaast een lichte slaapkamer met erker, originele parketvloer en ingebouwde kasten over de volle breedte. Aan de achterzijde liggen een ruime slaapkamer met originele parketvloer en plafondlijsten en een kleinere kamer die prima geschikt is als logeer- of hobbykamer.
TWEEDE VERDIEPING
De glas-in-loodramen springen hier meteen in het oog. Aan de voorzijde ligt een royale kamer met laminaatvloer, ingebouwde kast en openslaande deuren naar een balkontje op het oosten. Ook het tweede voorkamertje heeft glas-in-looddetails en een parketvloer.
In het midden van de verdieping bevindt zich een tussenzolder die momenteel wordt gebruikt als keuken/douche. Deze ruimte leent zich uitstekend om te transformeren tot een ruime, moderne badkamer of juist een extra kamer.
Aan de achterzijde liggen nog twee kamers, waarvan één met toegang tot een heerlijk zonnig balkon op het westen en één kamertje met een eigen wastafel. Verder is er een derde separaat toilet. Dankzij het grote dakraam boven de trap is de overloop heerlijk licht.
DE OMGEVING
De ligging in het Statenkwartier is perfect. Je woont op loopafstand van de levendige Frederik Hendriklaan (“De Fred”), bekend om zijn diversiteit aan winkels, boetieks, cafés en restaurants. Het strand van Scheveningen ligt op fietsafstand en ook het centrum van Den Haag is dichtbij. Scholen, sportclubs en culturele voorzieningen vind je in de directe omgeving. De woning heeft bovendien een uitstekende bereikbaarheid met auto en OV: tramhalte lijn 11 en buslijn 24 liggen op ca. 150 meter afstand.
Klinkt dit als jouw ideale thuis? Loop alvast in 3D door de woning om alle ruimtes te bekijken en maak snel een afspraak voor een bezichtiging!
PLUSPUNTEN
+ Statige uitstraling achter een klassieke gevel
+ Ideaal woon-/bedrijfspand: diverse kamers in te richten als kantoor of praktijkruimte
+ Royale woonkamer met open haard en sierplafond
+ Ruime, zonnige tuin op het zuid-westen met berging en overkapping
+ Kelder met veel bergruimte en cv-opstelling
+ 10 kamers, waarvan 8 slaapkamers
+ Vier slaapkamers op de eerste verdieping
+ Vier charmante kamers op de tweede verdieping
+ In de parterre en op de eerste verdieping, hebben de vier grootste kamers parketvloer
+ 6 slaapkamers voorzien van dubbelglas
+ Mogelijkheid om keuken en badkamer volledig naar eigen smaak te realiseren
+ Grote ramen en veel lichtinval door de hele woning
+ Dakisolatie met 10 cm. pirschuim en EPDM afdekking (2014)
+ Nieuwe lichtkoepel geplaatst (2025)
+ Balkon vernieuwd in zink (2015), gelegen op het westen
+ Gelegen in het geliefde Statenkwartier, op loopafstand van de Frederik Hendriklaan (“De Fred”)
+ Strand van Scheveningen en de binnenstad van Den Haag dichtbij
+ Uitstekende bereikbaarheid met auto en OV
+ Veel scholen, speelplekken en voorzieningen in de buurt
+ Tramhalte Lijn 11 en bushalte lijn 24 op 150 meter afstand.
+ Betaald parkeren na 13:00 uur, ruime parkeergelegenheid
+ Bouwkundig rapport aanwezig en direct beschikbaar
* Niet-zelfbewoning, ouderdoms-, materialen-, asbest en loodclausule zijn van toepassing
-----------------------------------------------------------------------------------------
Persoonlijke note verkopers:
Wij hebben het herenhuis op de Van Boetzelaerlaan 20 een kleine dertig jaar geleden gekocht om daar op de begane grond en de eerste etage ons kantoor te vestigen. De tweede etage verhuurden we vrijwel al die jaren. Alleen aan twee meisjes. De één woonde aan de voorzijde in een grote woonkamer met een ingebouwde kast en met balkonnetje. Slapen hoefde niet in dezelfde kamer, maar ging prima in een aangrenzend kamertje, ook aan de voorzijde, waarin ook een ingebouwde kast is.
Een ander meisje woonde aan de achterzijde, ook in een grote kamer en sliep in het aangrenzende kamertje, ook aan de achterzijde. Zij had de beschikking over een groot balkon, waar genoten kon worden van de zon in de middag en namiddag met ruimte genoeg voor vrienden. Zij had het voordeel van een wastafel in het slaapkamertje. Als toevallig beide kamers tegelijk beschikbaar kwamen, was het moeilijk kiezen: genieten van de ochtendzon door het glas-in-lood aan de voorzijde of genieten van de middag- en avondzon aan de achterzijde.
In de tussenzolder was aan de achterzijde een ingebouwde doucheruimte naast een ingebouwde (servies)kast en aan de voorzijde een aanrecht met grote geiser aan de ene kant en een koelkast met daarop een magnetron en daarnaast een wasmachine met daarop een 4-pits gascomfort onder een wasemkap. Best wel compleet.
Meestal bleef men jaren ‘hangen’ tot afstuderen of een studie of baan in een andere stad.
Op de middenberm staan voor het huis enige ‘nietjes’, waaraan fietsen kunnen worden vastgelegd. Die middenberm heeft nog drie voordelen: tramlijn 11 glijdt er bijna geruisloos door, de overburen liggen achter twee bomenrijen op tientallen meters afstand, wat een prettig, ruimtelijk gevoel levert en er is geen parkeerdruk (de middenberm levert een verdubbeling van parkeerplaatsen op. Het Verversingskanaal langs de direct achter de Boetz gelegen Kranenburgweg vormt een uitstekende barrière tegen ‘zijstraatjes’ autobezitters. Altijd plenty ruimte dus. Betaald parkeren voor niet-bewoners geldt alleen van 13.00 u tot en met middernacht.
Liefhebbers van strand en duinen: de Kranenburgweg voert je rechtstreeks naar duinen, haven, strand en zee. En die Kranenburgweg (deel van de Sterfietsroute van het centrum naar zee en strand) begint bij ons op de hoek, een meter of vijftig bij ons vandaan!
Tramlijn 11 voert naar het Hollands spoor en bus 24 naar het centrum en het Centraal Station. Mooier kan niet.
Van Boetzelaerlaan 20 is een fijn, zeer ruim huis met prachtig uitzicht over de Boetz, heel gunstig gelegen in een bijzonder prettige buurt met vlakbij op de Fred veel winkels, supermarkten, restaurantjes en terrassen.
Mensen die hier wonen, blijven hier heel lang wonen, echt vele decennia. Dat geeft wel aan hoe plezierig wonen het hier is.
De laatste jaren is er ’s zomers een straatfeest voor ‘de Boetz’, op de middenberm van het volgende stuk van de straat. Met hapjes en drankjes, tafeltjes, stoelen en attracties voor kinderen wordt dat ieder jaar drukker.
INTERESSE?
Dan nodigen we je uit om contact met ons op te nemen. We vertellen je graag meer over deze woning en zorgen ervoor dat je overige stukken en algemene voorwaarden verkopend makelaar digitaal via jouw persoonlijke Move account kunt bekijken.
ONZE TIP
Aankopen? Schakel jouw eigen NVM-aankoopmakelaar in! De NVM-aankoopmakelaar komt op voor jouw belang en bespaart je veel tijd, geld en zorgen. Adressen van collega NVM-aankoopmakelaars vind je op Funda.
De gegeven informatie is met zorgvuldigheid opgesteld, aan de juistheid kunnen echter geen rechten worden ontleend. Alle verstrekte informatie moet beschouwd worden als een uitnodiging tot het doen van een aanbod of om in onderhandeling te treden.
Beschrijving
Ruim en licht herenhuis met 10 kamers en zonnige tuin op het zuid-westen
Dit karaktervolle herenhuis aan de Van Boetzelaerlaan combineert de grandeur van begin vorige eeuw met volop ruimte en mogelijkheden om naar eigen smaak te moderniseren. Hoge plafonds, glas-in-loodramen, originele parketvloeren en sierplafonds geven de woning een unieke uitstraling. Met drie woonlagen, een kelder, vier grote slaapkamers en vier kleine slaapkamers, twee balkons en een zonnige achtertuin op het zuidwesten heb je hier alle ruimte om wonen en werken te combineren.
De woning is de afgelopen jaren op belangrijke punten aangepakt. Het balkon aan de achterzijde is totaal vernieuwd en vervangen door een zinken exemplaar (2015), het dak heeft een nieuwe isolatielaag met 10 cm. pirschuim en EPDM (2014) en is er een lichtkoepel vernieuwd (2025). Dankzij de ruime indeling kun je eenvoudig meerdere kamers gebruiken als kantoor- of praktijkruimte aan huis.
HIGHLIGHTS
+ Authentieke details zoals glas-in-lood, hoge plafonds en parket vloeren
+ Ruime en zonnige tuin op het zuidwesten én 2 balkons
+ Drie woonlagen en een kelder met volop mogelijkheden
+ Wonen en werken ideaal te combineren
INDELING
BEGANE GROND
Bij binnenkomst valt direct het fraaie glas-in-lood boven de voordeur op, dat zorgt voor een bijzondere lichtinval. Aan de voorzijde ligt een sfeervolle kamer met open haard en hoge ramen. Aan de achterzijde bevindt zich een royale kamer met sierplafond en toegang tot de tuin. Beide kamers op de parterre hebben een originele parketvloer.
De zonnige achtertuin op het zuidwesten biedt van 10:00 uur tot laat in de middag/avond zon en beschikt over een vaste berging en overkapping. Aan de achterzijde is bovendien een kamer met aanrecht en wateraansluiting, een ideale basis voor een nieuwe keuken. Oorspronkelijk waren keuken en kamers open; omdat er later muren zijn geplaatst, kun je eenvoudig weer een royale leefruimte creëren.
Onder de trap bevindt zich een toilet met fonteintje. Vanuit de gang heb je toegang tot de kelder met veel opbergruimte en de cv-installatie.
EERSTE VERDIEPING
Hier vind je vier slaapkamers en een tweede toilet. De voorzijde biedt een kamertje die zich goed leent als werkkamer en daarnaast een lichte slaapkamer met erker, originele parketvloer en ingebouwde kasten over de volle breedte. Aan de achterzijde liggen een ruime slaapkamer met originele parketvloer en plafondlijsten en een kleinere kamer die prima geschikt is als logeer- of hobbykamer.
TWEEDE VERDIEPING
De glas-in-loodramen springen hier meteen in het oog. Aan de voorzijde ligt een royale kamer met laminaatvloer, ingebouwde kast en openslaande deuren naar een balkontje op het oosten. Ook het tweede voorkamertje heeft glas-in-looddetails en een parketvloer.
In het midden van de verdieping bevindt zich een tussenzolder die momenteel wordt gebruikt als keuken/douche. Deze ruimte leent zich uitstekend om te transformeren tot een ruime, moderne badkamer of juist een extra kamer.
Aan de achterzijde liggen nog twee kamers, waarvan één met toegang tot een heerlijk zonnig balkon op het westen en één kamertje met een eigen wastafel. Verder is er een derde separaat toilet. Dankzij het grote dakraam boven de trap is de overloop heerlijk licht.
DE OMGEVING
De ligging in het Statenkwartier is perfect. Je woont op loopafstand van de levendige Frederik Hendriklaan (“De Fred”), bekend om zijn diversiteit aan winkels, boetieks, cafés en restaurants. Het strand van Scheveningen ligt op fietsafstand en ook het centrum van Den Haag is dichtbij. Scholen, sportclubs en culturele voorzieningen vind je in de directe omgeving. De woning heeft bovendien een uitstekende bereikbaarheid met auto en OV: tramhalte lijn 11 en buslijn 24 liggen op ca. 150 meter afstand.
Klinkt dit als jouw ideale thuis? Loop alvast in 3D door de woning om alle ruimtes te bekijken en maak snel een afspraak voor een bezichtiging!
PLUSPUNTEN
+ Statige uitstraling achter een klassieke gevel
+ Ideaal woon-/bedrijfspand: diverse kamers in te richten als kantoor of praktijkruimte
+ Royale woonkamer met open haard en sierplafond
+ Ruime, zonnige tuin op het zuid-westen met berging en overkapping
+ Kelder met veel bergruimte en cv-opstelling
+ 10 kamers, waarvan 8 slaapkamers
+ Vier slaapkamers op de eerste verdieping
+ Vier charmante kamers op de tweede verdieping
+ In de parterre en op de eerste verdieping, hebben de vier grootste kamers parketvloer
+ 6 slaapkamers voorzien van dubbelglas
+ Mogelijkheid om keuken en badkamer volledig naar eigen smaak te realiseren
+ Grote ramen en veel lichtinval door de hele woning
+ Dakisolatie met 10 cm. pirschuim en EPDM afdekking (2014)
+ Nieuwe lichtkoepel geplaatst (2025)
+ Balkon vernieuwd in zink (2015), gelegen op het westen
+ Gelegen in het geliefde Statenkwartier, op loopafstand van de Frederik Hendriklaan (“De Fred”)
+ Strand van Scheveningen en de binnenstad van Den Haag dichtbij
+ Uitstekende bereikbaarheid met auto en OV
+ Veel scholen, speelplekken en voorzieningen in de buurt
+ Tramhalte Lijn 11 en bushalte lijn 24 op 150 meter afstand.
+ Betaald parkeren na 13:00 uur, ruime parkeergelegenheid
+ Bouwkundig rapport aanwezig en direct beschikbaar
* Niet-zelfbewoning, ouderdoms-, materialen-, asbest en loodclausule zijn van toepassing
-----------------------------------------------------------------------------------------
Persoonlijke note verkopers:
Wij hebben het herenhuis op de Van Boetzelaerlaan 20 een kleine dertig jaar geleden gekocht om daar op de begane grond en de eerste etage ons kantoor te vestigen. De tweede etage verhuurden we vrijwel al die jaren. Alleen aan twee meisjes. De één woonde aan de voorzijde in een grote woonkamer met een ingebouwde kast en met balkonnetje. Slapen hoefde niet in dezelfde kamer, maar ging prima in een aangrenzend kamertje, ook aan de voorzijde, waarin ook een ingebouwde kast is.
Een ander meisje woonde aan de achterzijde, ook in een grote kamer en sliep in het aangrenzende kamertje, ook aan de achterzijde. Zij had de beschikking over een groot balkon, waar genoten kon worden van de zon in de middag en namiddag met ruimte genoeg voor vrienden. Zij had het voordeel van een wastafel in het slaapkamertje. Als toevallig beide kamers tegelijk beschikbaar kwamen, was het moeilijk kiezen: genieten van de ochtendzon door het glas-in-lood aan de voorzijde of genieten van de middag- en avondzon aan de achterzijde.
In de tussenzolder was aan de achterzijde een ingebouwde doucheruimte naast een ingebouwde (servies)kast en aan de voorzijde een aanrecht met grote geiser aan de ene kant en een koelkast met daarop een magnetron en daarnaast een wasmachine met daarop een 4-pits gascomfort onder een wasemkap. Best wel compleet.
Meestal bleef men jaren ‘hangen’ tot afstuderen of een studie of baan in een andere stad.
Op de middenberm staan voor het huis enige ‘nietjes’, waaraan fietsen kunnen worden vastgelegd. Die middenberm heeft nog drie voordelen: tramlijn 11 glijdt er bijna geruisloos door, de overburen liggen achter twee bomenrijen op tientallen meters afstand, wat een prettig, ruimtelijk gevoel levert en er is geen parkeerdruk (de middenberm levert een verdubbeling van parkeerplaatsen op. Het Verversingskanaal langs de direct achter de Boetz gelegen Kranenburgweg vormt een uitstekende barrière tegen ‘zijstraatjes’ autobezitters. Altijd plenty ruimte dus. Betaald parkeren voor niet-bewoners geldt alleen van 13.00 u tot en met middernacht.
Liefhebbers van strand en duinen: de Kranenburgweg voert je rechtstreeks naar duinen, haven, strand en zee. En die Kranenburgweg (deel van de Sterfietsroute van het centrum naar zee en strand) begint bij ons op de hoek, een meter of vijftig bij ons vandaan!
Tramlijn 11 voert naar het Hollands spoor en bus 24 naar het centrum en het Centraal Station. Mooier kan niet.
Van Boetzelaerlaan 20 is een fijn, zeer ruim huis met prachtig uitzicht over de Boetz, heel gunstig gelegen in een bijzonder prettige buurt met vlakbij op de Fred veel winkels, supermarkten, restaurantjes en terrassen.
Mensen die hier wonen, blijven hier heel lang wonen, echt vele decennia. Dat geeft wel aan hoe plezierig wonen het hier is.
De laatste jaren is er ’s zomers een straatfeest voor ‘de Boetz’, op de middenberm van het volgende stuk van de straat. Met hapjes en drankjes, tafeltjes, stoelen en attracties voor kinderen wordt dat ieder jaar drukker.
INTERESSE?
Dan nodigen we je uit om contact met ons op te nemen. We vertellen je graag meer over deze woning en zorgen ervoor dat je overige stukken en algemene voorwaarden verkopend makelaar digitaal via jouw persoonlijke Move account kunt bekijken.
ONZE TIP
Aankopen? Schakel jouw eigen NVM-aankoopmakelaar in! De NVM-aankoopmakelaar komt op voor jouw belang en bespaart je veel tijd, geld en zorgen. Adressen van collega NVM-aankoopmakelaars vind je op Funda.
De gegeven informatie is met zorgvuldigheid opgesteld, aan de juistheid kunnen echter geen rechten worden ontleend. Alle verstrekte informatie moet beschouwd worden als een uitnodiging tot het doen van een aanbod of om in onderhandeling te treden.
Dit karaktervolle herenhuis aan de Van Boetzelaerlaan combineert de grandeur van begin vorige eeuw met volop ruimte en mogelijkheden om naar eigen smaak te moderniseren. Hoge plafonds, glas-in-loodramen, originele parketvloeren en sierplafonds geven de woning een unieke uitstraling. Met drie woonlagen, een kelder, vier grote slaapkamers en vier kleine slaapkamers, twee balkons en een zonnige achtertuin op het zuidwesten heb je hier alle ruimte om wonen en werken te combineren.
De woning is de afgelopen jaren op belangrijke punten aangepakt. Het balkon aan de achterzijde is totaal vernieuwd en vervangen door een zinken exemplaar (2015), het dak heeft een nieuwe isolatielaag met 10 cm. pirschuim en EPDM (2014) en is er een lichtkoepel vernieuwd (2025). Dankzij de ruime indeling kun je eenvoudig meerdere kamers gebruiken als kantoor- of praktijkruimte aan huis.
HIGHLIGHTS
+ Authentieke details zoals glas-in-lood, hoge plafonds en parket vloeren
+ Ruime en zonnige tuin op het zuidwesten én 2 balkons
+ Drie woonlagen en een kelder met volop mogelijkheden
+ Wonen en werken ideaal te combineren
INDELING
BEGANE GROND
Bij binnenkomst valt direct het fraaie glas-in-lood boven de voordeur op, dat zorgt voor een bijzondere lichtinval. Aan de voorzijde ligt een sfeervolle kamer met open haard en hoge ramen. Aan de achterzijde bevindt zich een royale kamer met sierplafond en toegang tot de tuin. Beide kamers op de parterre hebben een originele parketvloer.
De zonnige achtertuin op het zuidwesten biedt van 10:00 uur tot laat in de middag/avond zon en beschikt over een vaste berging en overkapping. Aan de achterzijde is bovendien een kamer met aanrecht en wateraansluiting, een ideale basis voor een nieuwe keuken. Oorspronkelijk waren keuken en kamers open; omdat er later muren zijn geplaatst, kun je eenvoudig weer een royale leefruimte creëren.
Onder de trap bevindt zich een toilet met fonteintje. Vanuit de gang heb je toegang tot de kelder met veel opbergruimte en de cv-installatie.
EERSTE VERDIEPING
Hier vind je vier slaapkamers en een tweede toilet. De voorzijde biedt een kamertje die zich goed leent als werkkamer en daarnaast een lichte slaapkamer met erker, originele parketvloer en ingebouwde kasten over de volle breedte. Aan de achterzijde liggen een ruime slaapkamer met originele parketvloer en plafondlijsten en een kleinere kamer die prima geschikt is als logeer- of hobbykamer.
TWEEDE VERDIEPING
De glas-in-loodramen springen hier meteen in het oog. Aan de voorzijde ligt een royale kamer met laminaatvloer, ingebouwde kast en openslaande deuren naar een balkontje op het oosten. Ook het tweede voorkamertje heeft glas-in-looddetails en een parketvloer.
In het midden van de verdieping bevindt zich een tussenzolder die momenteel wordt gebruikt als keuken/douche. Deze ruimte leent zich uitstekend om te transformeren tot een ruime, moderne badkamer of juist een extra kamer.
Aan de achterzijde liggen nog twee kamers, waarvan één met toegang tot een heerlijk zonnig balkon op het westen en één kamertje met een eigen wastafel. Verder is er een derde separaat toilet. Dankzij het grote dakraam boven de trap is de overloop heerlijk licht.
DE OMGEVING
De ligging in het Statenkwartier is perfect. Je woont op loopafstand van de levendige Frederik Hendriklaan (“De Fred”), bekend om zijn diversiteit aan winkels, boetieks, cafés en restaurants. Het strand van Scheveningen ligt op fietsafstand en ook het centrum van Den Haag is dichtbij. Scholen, sportclubs en culturele voorzieningen vind je in de directe omgeving. De woning heeft bovendien een uitstekende bereikbaarheid met auto en OV: tramhalte lijn 11 en buslijn 24 liggen op ca. 150 meter afstand.
Klinkt dit als jouw ideale thuis? Loop alvast in 3D door de woning om alle ruimtes te bekijken en maak snel een afspraak voor een bezichtiging!
PLUSPUNTEN
+ Statige uitstraling achter een klassieke gevel
+ Ideaal woon-/bedrijfspand: diverse kamers in te richten als kantoor of praktijkruimte
+ Royale woonkamer met open haard en sierplafond
+ Ruime, zonnige tuin op het zuid-westen met berging en overkapping
+ Kelder met veel bergruimte en cv-opstelling
+ 10 kamers, waarvan 8 slaapkamers
+ Vier slaapkamers op de eerste verdieping
+ Vier charmante kamers op de tweede verdieping
+ In de parterre en op de eerste verdieping, hebben de vier grootste kamers parketvloer
+ 6 slaapkamers voorzien van dubbelglas
+ Mogelijkheid om keuken en badkamer volledig naar eigen smaak te realiseren
+ Grote ramen en veel lichtinval door de hele woning
+ Dakisolatie met 10 cm. pirschuim en EPDM afdekking (2014)
+ Nieuwe lichtkoepel geplaatst (2025)
+ Balkon vernieuwd in zink (2015), gelegen op het westen
+ Gelegen in het geliefde Statenkwartier, op loopafstand van de Frederik Hendriklaan (“De Fred”)
+ Strand van Scheveningen en de binnenstad van Den Haag dichtbij
+ Uitstekende bereikbaarheid met auto en OV
+ Veel scholen, speelplekken en voorzieningen in de buurt
+ Tramhalte Lijn 11 en bushalte lijn 24 op 150 meter afstand.
+ Betaald parkeren na 13:00 uur, ruime parkeergelegenheid
+ Bouwkundig rapport aanwezig en direct beschikbaar
* Niet-zelfbewoning, ouderdoms-, materialen-, asbest en loodclausule zijn van toepassing
-----------------------------------------------------------------------------------------
Persoonlijke note verkopers:
Wij hebben het herenhuis op de Van Boetzelaerlaan 20 een kleine dertig jaar geleden gekocht om daar op de begane grond en de eerste etage ons kantoor te vestigen. De tweede etage verhuurden we vrijwel al die jaren. Alleen aan twee meisjes. De één woonde aan de voorzijde in een grote woonkamer met een ingebouwde kast en met balkonnetje. Slapen hoefde niet in dezelfde kamer, maar ging prima in een aangrenzend kamertje, ook aan de voorzijde, waarin ook een ingebouwde kast is.
Een ander meisje woonde aan de achterzijde, ook in een grote kamer en sliep in het aangrenzende kamertje, ook aan de achterzijde. Zij had de beschikking over een groot balkon, waar genoten kon worden van de zon in de middag en namiddag met ruimte genoeg voor vrienden. Zij had het voordeel van een wastafel in het slaapkamertje. Als toevallig beide kamers tegelijk beschikbaar kwamen, was het moeilijk kiezen: genieten van de ochtendzon door het glas-in-lood aan de voorzijde of genieten van de middag- en avondzon aan de achterzijde.
In de tussenzolder was aan de achterzijde een ingebouwde doucheruimte naast een ingebouwde (servies)kast en aan de voorzijde een aanrecht met grote geiser aan de ene kant en een koelkast met daarop een magnetron en daarnaast een wasmachine met daarop een 4-pits gascomfort onder een wasemkap. Best wel compleet.
Meestal bleef men jaren ‘hangen’ tot afstuderen of een studie of baan in een andere stad.
Op de middenberm staan voor het huis enige ‘nietjes’, waaraan fietsen kunnen worden vastgelegd. Die middenberm heeft nog drie voordelen: tramlijn 11 glijdt er bijna geruisloos door, de overburen liggen achter twee bomenrijen op tientallen meters afstand, wat een prettig, ruimtelijk gevoel levert en er is geen parkeerdruk (de middenberm levert een verdubbeling van parkeerplaatsen op. Het Verversingskanaal langs de direct achter de Boetz gelegen Kranenburgweg vormt een uitstekende barrière tegen ‘zijstraatjes’ autobezitters. Altijd plenty ruimte dus. Betaald parkeren voor niet-bewoners geldt alleen van 13.00 u tot en met middernacht.
Liefhebbers van strand en duinen: de Kranenburgweg voert je rechtstreeks naar duinen, haven, strand en zee. En die Kranenburgweg (deel van de Sterfietsroute van het centrum naar zee en strand) begint bij ons op de hoek, een meter of vijftig bij ons vandaan!
Tramlijn 11 voert naar het Hollands spoor en bus 24 naar het centrum en het Centraal Station. Mooier kan niet.
Van Boetzelaerlaan 20 is een fijn, zeer ruim huis met prachtig uitzicht over de Boetz, heel gunstig gelegen in een bijzonder prettige buurt met vlakbij op de Fred veel winkels, supermarkten, restaurantjes en terrassen.
Mensen die hier wonen, blijven hier heel lang wonen, echt vele decennia. Dat geeft wel aan hoe plezierig wonen het hier is.
De laatste jaren is er ’s zomers een straatfeest voor ‘de Boetz’, op de middenberm van het volgende stuk van de straat. Met hapjes en drankjes, tafeltjes, stoelen en attracties voor kinderen wordt dat ieder jaar drukker.
INTERESSE?
Dan nodigen we je uit om contact met ons op te nemen. We vertellen je graag meer over deze woning en zorgen ervoor dat je overige stukken en algemene voorwaarden verkopend makelaar digitaal via jouw persoonlijke Move account kunt bekijken.
ONZE TIP
Aankopen? Schakel jouw eigen NVM-aankoopmakelaar in! De NVM-aankoopmakelaar komt op voor jouw belang en bespaart je veel tijd, geld en zorgen. Adressen van collega NVM-aankoopmakelaars vind je op Funda.
De gegeven informatie is met zorgvuldigheid opgesteld, aan de juistheid kunnen echter geen rechten worden ontleend. Alle verstrekte informatie moet beschouwd worden als een uitnodiging tot het doen van een aanbod of om in onderhandeling te treden.
powered by Friva | Lees ons Privacybeleid