
ZOETERMEER - Seghwaert
€ 275.000
Zegwaartseweg 78
3 Kamers
1 Badkamers
2 Slaapkamers
64 m²
Onbekend
VOORTUIN
Bezichtiging aanvragen
Beschrijving
LET OP; DIT GAAT OM ÉÉN VAN DE VIER WONING DIE VERKOCHT WORDT OP DIT RIJTJE VAN DE ZEGWAARTSEWEG, NAMELIJK HUISNUMMER 76. MOMENTEEL LOOPT DE SPLITSING NOG, EN VANDAAR DAT DE WONING OP DIT MOMENT IS AANGEMELD ALS HUISNUMMER 78.
Eengezinswoning met vrij uitzicht en veel potentie
Deze vier-onder-één-kapwoning met lichte woonkamer en twee slaapkamers is gelegen aan een groene, karaktervolle straat. Met een eigen parkeerplek op het terrein, praktische indeling en uitzicht aan de voorzijde, biedt deze woning een fijne basis voor starters
HIGHLIGHTS
+ Vrij uitzicht aan de voorzijde
+ Parkeren op eigen terrein
+ Twee slaapkamers
INDELING
BEGANE GROND
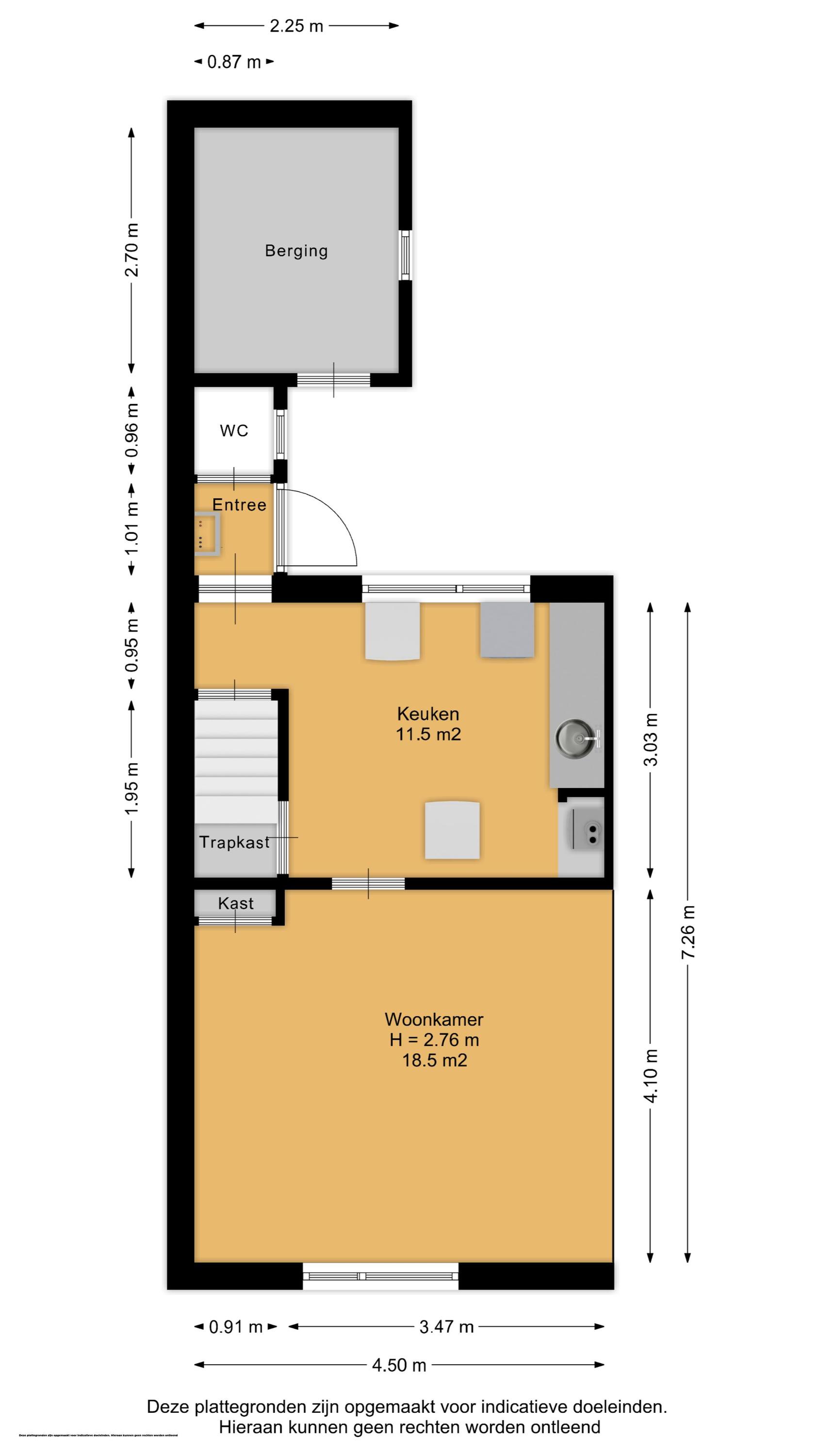
De entree bevindt zich aan de achterzijde van de woning. Via de compacte buitenruimte kom je binnen in de hal, waar je direct het separate toilet vindt. De keuken ligt eveneens aan de achterzijde en beschikt over een aansluiting voor de wasmachine en droger. De woonkamer aan de voorzijde kijkt uit over de Zegwaartseweg
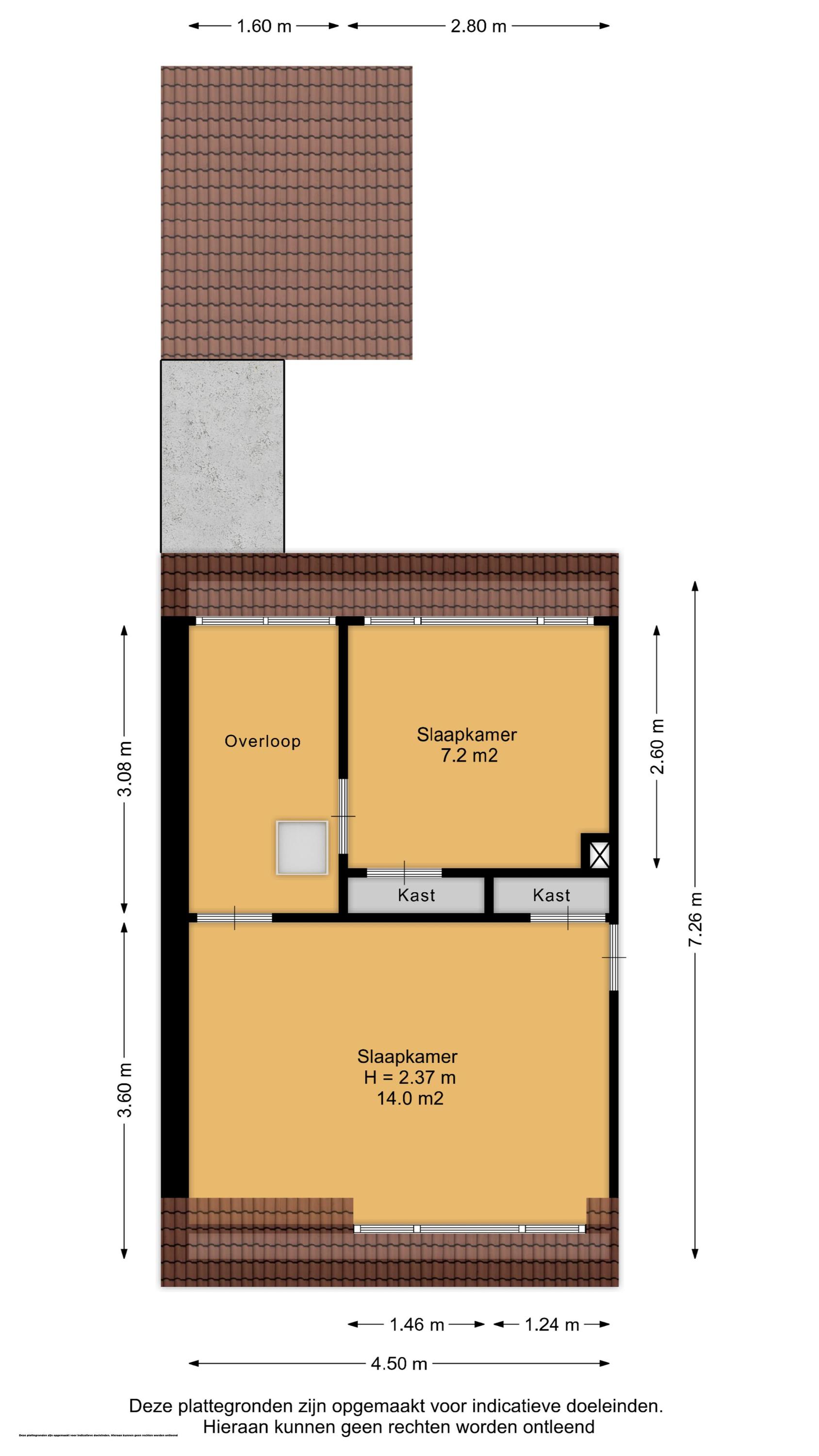
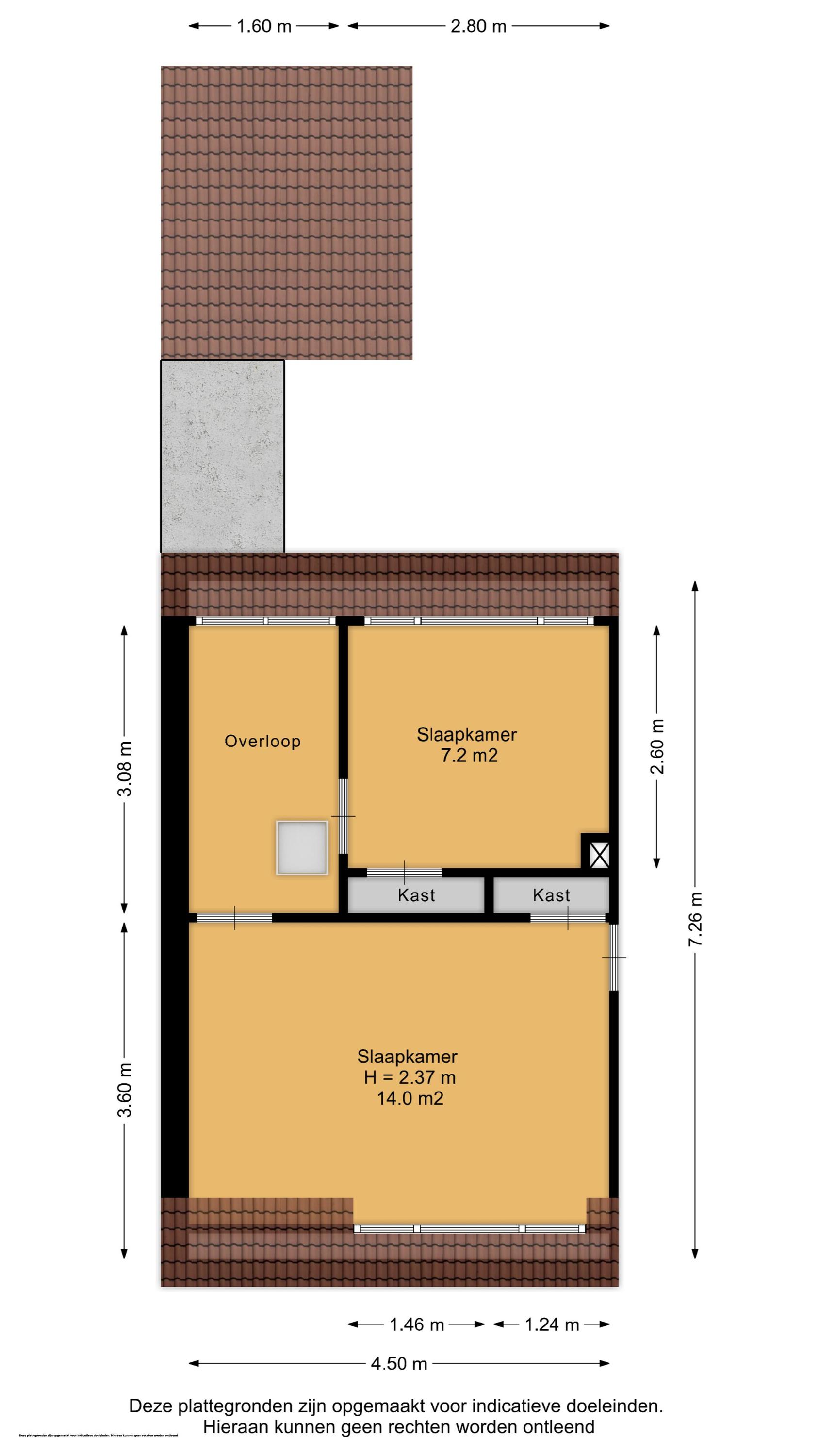
EERSTE VERDIEPING
Op de eerste verdieping zijn twee slaapkamers aanwezig, één aan de voorzijde en één aan de achterzijde, beide met vaste kasten. De overloop biedt toegang tot de vliering, handig voor extra opslagruimte.
OMGEVING
De woning ligt aan een rustige en groene straat met karakter, waar je kunt genieten van een fijne woonomgeving met een dorps tintje. In de directe omgeving zijn diverse scholen, sportvoorzieningen en uitvalswegen goed bereikbaar. Op korte rijafstand vind je meerdere winkelcentra en supermarkten voor de dagelijkse boodschappen.
Klinkt dit als jouw ideale thuis? Loop alvast in 3D door de woning om alle ruimtes te bekijken en maak snel een afspraak voor een bezichtiging!
PLUSPUNTEN
+ Lichte woonkamer met vrij uitzicht
+ Twee slaapkamers
+ Parkeren op eigen terrein
+ Handige bergingen
+ Vliering voor extra opslag
+ Gunstige ligging nabij voorzieningen
+ Eenvoudige afwerking, ruimte om naar eigen wens te moderniseren
+ Oplevering in overleg
Ouderdoms, asbest-loodclausule is van toepassing
OMGEVING
Benieuwd naar de omgeving? Bekijk alle voorzieningen onder het kopje ‘In de buurt’!
INTERESSE?
Dan nodigen we je uit om contact met ons op te nemen. We vertellen je graag meer over deze woning en zorgen ervoor dat je overige stukken en algemene voorwaarden verkopend makelaar digitaal via jouw persoonlijke Move account kunt bekijken.
ONZE TIP
Aankopen? Schakel jouw eigen NVM-aankoopmakelaar in! De NVM-aankoopmakelaar komt op voor jouw belang en bespaart je veel tijd, geld en zorgen. Adressen van collega NVM-aankoopmakelaars vind je op Funda.
De gegeven informatie is met zorgvuldigheid opgesteld, aan de juistheid kunnen echter geen rechten worden ontleend. Alle verstrekte informatie moet beschouwd worden als een uitnodiging tot het doen van een aanbod of om in onderhandeling te treden.
Eengezinswoning met vrij uitzicht en veel potentie
Deze vier-onder-één-kapwoning met lichte woonkamer en twee slaapkamers is gelegen aan een groene, karaktervolle straat. Met een eigen parkeerplek op het terrein, praktische indeling en uitzicht aan de voorzijde, biedt deze woning een fijne basis voor starters
HIGHLIGHTS
+ Vrij uitzicht aan de voorzijde
+ Parkeren op eigen terrein
+ Twee slaapkamers
INDELING
BEGANE GROND
De entree bevindt zich aan de achterzijde van de woning. Via de compacte buitenruimte kom je binnen in de hal, waar je direct het separate toilet vindt. De keuken ligt eveneens aan de achterzijde en beschikt over een aansluiting voor de wasmachine en droger. De woonkamer aan de voorzijde kijkt uit over de Zegwaartseweg
EERSTE VERDIEPING
Op de eerste verdieping zijn twee slaapkamers aanwezig, één aan de voorzijde en één aan de achterzijde, beide met vaste kasten. De overloop biedt toegang tot de vliering, handig voor extra opslagruimte.
OMGEVING
De woning ligt aan een rustige en groene straat met karakter, waar je kunt genieten van een fijne woonomgeving met een dorps tintje. In de directe omgeving zijn diverse scholen, sportvoorzieningen en uitvalswegen goed bereikbaar. Op korte rijafstand vind je meerdere winkelcentra en supermarkten voor de dagelijkse boodschappen.
Klinkt dit als jouw ideale thuis? Loop alvast in 3D door de woning om alle ruimtes te bekijken en maak snel een afspraak voor een bezichtiging!
PLUSPUNTEN
+ Lichte woonkamer met vrij uitzicht
+ Twee slaapkamers
+ Parkeren op eigen terrein
+ Handige bergingen
+ Vliering voor extra opslag
+ Gunstige ligging nabij voorzieningen
+ Eenvoudige afwerking, ruimte om naar eigen wens te moderniseren
+ Oplevering in overleg
Ouderdoms, asbest-loodclausule is van toepassing
OMGEVING
Benieuwd naar de omgeving? Bekijk alle voorzieningen onder het kopje ‘In de buurt’!
INTERESSE?
Dan nodigen we je uit om contact met ons op te nemen. We vertellen je graag meer over deze woning en zorgen ervoor dat je overige stukken en algemene voorwaarden verkopend makelaar digitaal via jouw persoonlijke Move account kunt bekijken.
ONZE TIP
Aankopen? Schakel jouw eigen NVM-aankoopmakelaar in! De NVM-aankoopmakelaar komt op voor jouw belang en bespaart je veel tijd, geld en zorgen. Adressen van collega NVM-aankoopmakelaars vind je op Funda.
De gegeven informatie is met zorgvuldigheid opgesteld, aan de juistheid kunnen echter geen rechten worden ontleend. Alle verstrekte informatie moet beschouwd worden als een uitnodiging tot het doen van een aanbod of om in onderhandeling te treden.
Beschrijving
LET OP; DIT GAAT OM ÉÉN VAN DE VIER WONING DIE VERKOCHT WORDT OP DIT RIJTJE VAN DE ZEGWAARTSEWEG, NAMELIJK HUISNUMMER 76. MOMENTEEL LOOPT DE SPLITSING NOG, EN VANDAAR DAT DE WONING OP DIT MOMENT IS AANGEMELD ALS HUISNUMMER 78.
Eengezinswoning met vrij uitzicht en veel potentie
Deze vier-onder-één-kapwoning met lichte woonkamer en twee slaapkamers is gelegen aan een groene, karaktervolle straat. Met een eigen parkeerplek op het terrein, praktische indeling en uitzicht aan de voorzijde, biedt deze woning een fijne basis voor starters
HIGHLIGHTS
+ Vrij uitzicht aan de voorzijde
+ Parkeren op eigen terrein
+ Twee slaapkamers
INDELING
BEGANE GROND
De entree bevindt zich aan de achterzijde van de woning. Via de compacte buitenruimte kom je binnen in de hal, waar je direct het separate toilet vindt. De keuken ligt eveneens aan de achterzijde en beschikt over een aansluiting voor de wasmachine en droger. De woonkamer aan de voorzijde kijkt uit over de Zegwaartseweg
EERSTE VERDIEPING
Op de eerste verdieping zijn twee slaapkamers aanwezig, één aan de voorzijde en één aan de achterzijde, beide met vaste kasten. De overloop biedt toegang tot de vliering, handig voor extra opslagruimte.
OMGEVING
De woning ligt aan een rustige en groene straat met karakter, waar je kunt genieten van een fijne woonomgeving met een dorps tintje. In de directe omgeving zijn diverse scholen, sportvoorzieningen en uitvalswegen goed bereikbaar. Op korte rijafstand vind je meerdere winkelcentra en supermarkten voor de dagelijkse boodschappen.
Klinkt dit als jouw ideale thuis? Loop alvast in 3D door de woning om alle ruimtes te bekijken en maak snel een afspraak voor een bezichtiging!
PLUSPUNTEN
+ Lichte woonkamer met vrij uitzicht
+ Twee slaapkamers
+ Parkeren op eigen terrein
+ Handige bergingen
+ Vliering voor extra opslag
+ Gunstige ligging nabij voorzieningen
+ Eenvoudige afwerking, ruimte om naar eigen wens te moderniseren
+ Oplevering in overleg
Ouderdoms, asbest-loodclausule is van toepassing
OMGEVING
Benieuwd naar de omgeving? Bekijk alle voorzieningen onder het kopje ‘In de buurt’!
INTERESSE?
Dan nodigen we je uit om contact met ons op te nemen. We vertellen je graag meer over deze woning en zorgen ervoor dat je overige stukken en algemene voorwaarden verkopend makelaar digitaal via jouw persoonlijke Move account kunt bekijken.
ONZE TIP
Aankopen? Schakel jouw eigen NVM-aankoopmakelaar in! De NVM-aankoopmakelaar komt op voor jouw belang en bespaart je veel tijd, geld en zorgen. Adressen van collega NVM-aankoopmakelaars vind je op Funda.
De gegeven informatie is met zorgvuldigheid opgesteld, aan de juistheid kunnen echter geen rechten worden ontleend. Alle verstrekte informatie moet beschouwd worden als een uitnodiging tot het doen van een aanbod of om in onderhandeling te treden.
Eengezinswoning met vrij uitzicht en veel potentie
Deze vier-onder-één-kapwoning met lichte woonkamer en twee slaapkamers is gelegen aan een groene, karaktervolle straat. Met een eigen parkeerplek op het terrein, praktische indeling en uitzicht aan de voorzijde, biedt deze woning een fijne basis voor starters
HIGHLIGHTS
+ Vrij uitzicht aan de voorzijde
+ Parkeren op eigen terrein
+ Twee slaapkamers
INDELING
BEGANE GROND
De entree bevindt zich aan de achterzijde van de woning. Via de compacte buitenruimte kom je binnen in de hal, waar je direct het separate toilet vindt. De keuken ligt eveneens aan de achterzijde en beschikt over een aansluiting voor de wasmachine en droger. De woonkamer aan de voorzijde kijkt uit over de Zegwaartseweg
EERSTE VERDIEPING
Op de eerste verdieping zijn twee slaapkamers aanwezig, één aan de voorzijde en één aan de achterzijde, beide met vaste kasten. De overloop biedt toegang tot de vliering, handig voor extra opslagruimte.
OMGEVING
De woning ligt aan een rustige en groene straat met karakter, waar je kunt genieten van een fijne woonomgeving met een dorps tintje. In de directe omgeving zijn diverse scholen, sportvoorzieningen en uitvalswegen goed bereikbaar. Op korte rijafstand vind je meerdere winkelcentra en supermarkten voor de dagelijkse boodschappen.
Klinkt dit als jouw ideale thuis? Loop alvast in 3D door de woning om alle ruimtes te bekijken en maak snel een afspraak voor een bezichtiging!
PLUSPUNTEN
+ Lichte woonkamer met vrij uitzicht
+ Twee slaapkamers
+ Parkeren op eigen terrein
+ Handige bergingen
+ Vliering voor extra opslag
+ Gunstige ligging nabij voorzieningen
+ Eenvoudige afwerking, ruimte om naar eigen wens te moderniseren
+ Oplevering in overleg
Ouderdoms, asbest-loodclausule is van toepassing
OMGEVING
Benieuwd naar de omgeving? Bekijk alle voorzieningen onder het kopje ‘In de buurt’!
INTERESSE?
Dan nodigen we je uit om contact met ons op te nemen. We vertellen je graag meer over deze woning en zorgen ervoor dat je overige stukken en algemene voorwaarden verkopend makelaar digitaal via jouw persoonlijke Move account kunt bekijken.
ONZE TIP
Aankopen? Schakel jouw eigen NVM-aankoopmakelaar in! De NVM-aankoopmakelaar komt op voor jouw belang en bespaart je veel tijd, geld en zorgen. Adressen van collega NVM-aankoopmakelaars vind je op Funda.
De gegeven informatie is met zorgvuldigheid opgesteld, aan de juistheid kunnen echter geen rechten worden ontleend. Alle verstrekte informatie moet beschouwd worden als een uitnodiging tot het doen van een aanbod of om in onderhandeling te treden.
powered by Friva | Lees ons Privacybeleid