'S-GRAVENHAGE - Leidschenveen
€ 850.000
Waterleliekade 49
6 Kamers
1 Badkamers
4 Slaapkamers
182 m²
A
Achtertuin
Bezichtiging aanvragen
Beschrijving
LET OP; DIT BETREFT EEN VANAFPRIJS
Sfeervolle twee-onder-een-kapwoning dichtbij het water met zonnige tuin en luxe afwerking
Aan de groene en rustige Waterleliekade in de gewilde wijk Leidschenveen vind je deze ruime en perfect onderhouden twee-onder-een-kapwoning. Met een woonoppervlak van 182 m², een perceel van 325 m² en een luxe overkapping van 19 m² is dit een woning die in alle opzichten comfort en stijl uitstraalt.
De woning ligt op een steenworp afstand van de waterpartij aan de Waterleliekade, wat zorgt voor een prachtige omgeving met een gevoel van rust en ruimte. Ideaal voor gezinnen of expats die op zoek zijn naar ruimte, luxe en een unieke ligging.
HIGHLIGHTS
+ Twee-onder-een-kapwoning in uitstekende staat van onderhoud
+ Luxe overkapping van 19 m²
+ Royale oprit met plek voor meerdere auto's
+ Energielabel A
BEGANE GROND
De brede oprit en verzorgde voortuin heten je van harte welkom. Via de ruime entree, waar zich de moderne toiletruimte en de toegang tot de inpandige berging bevinden, stap je de royale woonkamer binnen. Wat direct opvalt, is het overvloedige licht dat binnenstroomt door de grote raampartijen en de schuifpui naar de achtertuin.
De woonkamer is smaakvol afgewerkt met een hoogwaardige houten vloer en strak gestuukte wanden.
De open keuken aan de achterzijde van de woning is een absolute eyecatcher. Deze is voorzien van hoogwaardige inbouwapparatuur: een inductiekookplaat, vaatwasser, royale koel- en vrieskast, oven en een stijlvolle wijnklimaatkast. Het strakke aanrechtblad en de royale kastruimte maken de keuken niet alleen luxe, maar ook uiterst praktisch.
De schuifpui geeft toegang tot de zonnige tuin met meerdere terrassen, waar je kunt genieten van veel privacy.
De tuin is fraai aangelegd, grotendeels betegeld en voorzien van een luxe overkapping van 19 m². Of je nu in de ochtendzon wilt ontbijten of 's avonds heerlijk wilt ontspannen, deze plek is het hele jaar door te gebruiken. De achtertuin biedt veel privacy en ligt dichtbij het water en het park.
1e VERDIEPING
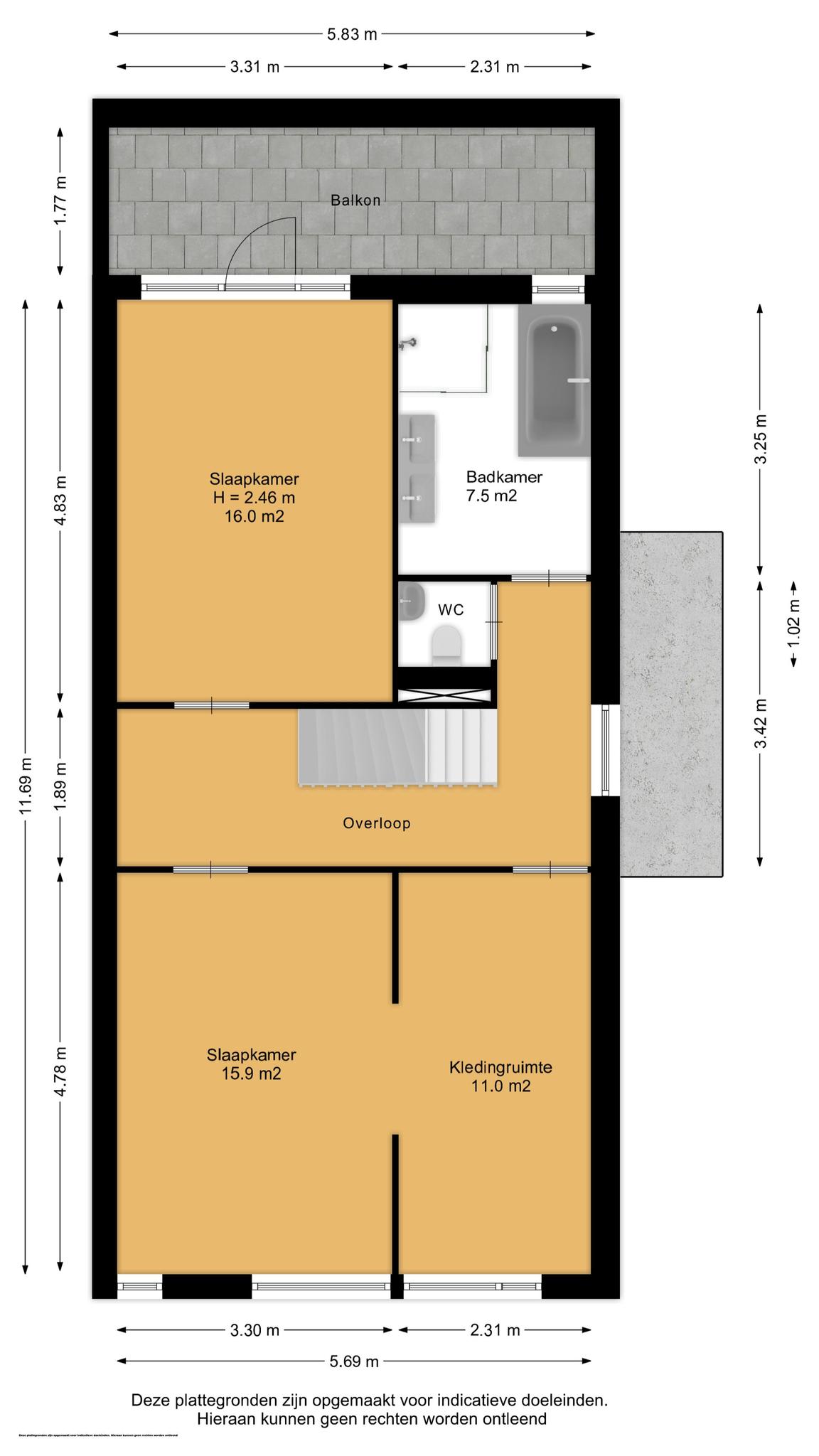
Op de eerste verdieping bevinden zich drie volwaardige slaapkamers. De royale hoofdslaapkamer aan de voorzijde beschikt over een ruime inloopkast, ideaal voor al je kleding en accessoires. Aan de achterzijde ligt de tweede ruime slaapkamer met directe toegang tot een royaal dakterras op het Noordoosten.
De derde kamer op deze verdieping is momenteel ingericht als inloopkast, maar kan eenvoudig dienst doen als extra slaapkamer.
De luxe badkamer op deze verdieping is een ware oase van comfort. Een ruime inloopdouche, een ligbad, een dubbele wastafel en een handdoekradiator zorgen hier voor een luxe en ontspannen sfeer. Het grote raam zorgt voor veel natuurlijk licht, wat de ruimte fris en licht maakt.
2e VERDIEPING
De tweede verdieping is verrassend ruim en praktisch ingedeeld. Een royale overloop met dakkapel biedt toegang tot een vierde slaapkamer met grote raampartijen en volop lichtinval. Daarnaast is er nog een aparte kamer die uitstekend gebruikt kan worden als opbergruimte, hobbykamer of werkplek.
De aparte opstelling voor de wasmachine en droger is voorzien van een dakraam voor extra licht.
PLUSPUNTEN
+ Eigen grond
+ Ruime tuin rondom met veel privacy
+ Grote garage met ruimte voor opslag
+ Ideaal voor expats of jonge gezinnen
+ Ruime oprit met parkeerplaats voor meerdere auto's
+ Unieke ligging
+ Royale living met luxe open keuken voorzien van topapparatuur
+ Vier volwaardige slaapkamers, waarvan één met inloopkast
+ Moderne badkamer met ligbad, regendouche en dubbele wastafel.
+ Inpandige berging, eigen oprit en dakterras met volledige privacy
+ Recreatiegebied de Nieuwe Driemanspolder op loopafstand
+ Hardhouten kozijnen met dubbele beglazing
+ Cv-ketel (Nefit, 2020) en WtW installatie;
+ Zeer centrale ligging, nabij alle faciliteiten, openbaar vervoer en groengebieden
BIJZONDERHEDEN
> Bouwjaar 2002
> Woonoppervlakte ca. 181 m²
> Perceeloppervlak ca. 325 m²
> Inhoud ca. 638 m³
> Riolering recent deels vernieuwd door gemeente (2025)
> Ruime garage van 24 m²
> Luxe overkapping van 19 m²
> Aantal slaapkamers: 4
> Dakkapel en terrasoverkapping uit 2001 (professioneel geplaatst)
> Geen aanwezigheid van asbest, loden leidingen of olietank
> Elektrische installatie grotendeels vernieuwd (leidingen en buizen, 2023)
> Kruipruimte aanwezig, droog en toegankelijk
> Gevels in 2024 volledig gereinigd en in goede staat
> Oplevering: in onderling overleg
> Geen erfpacht, opstalrecht of erfdienstbaarheden van toepassing
> Geen monumentale status of beschermd stads-/dorpsgezicht
OMGEVING
De woning ligt in de rustige en kindvriendelijke wijk Leidschenveen, een groene en moderne woonomgeving aan de rand van Den Haag. Hier woon je midden in het groen, met waterpartijen en brede lanen die zorgen voor een ruimtelijk en ontspannen gevoel.
Voor de dagelijkse voorzieningen ligt het winkelcentrum Leidschenveen op loopafstand. Hier vind je supermarkten, diverse speciaalzaken, horecagelegenheden en zelfs een bibliotheek. Ook het grotere winkelcentrum Mall of the Netherlands ligt op korte afstand voor een dagje uitgebreid winkelen.
Voor gezinnen is Leidschenveen ideaal: er zijn meerdere basisscholen, een middelbare school en kinderdagverblijven in de buurt. Sportliefhebbers kunnen terecht bij verschillende sportverenigingen, fitnesscentra en de nabijgelegen golfbaan.
Bovendien bevindt het prachtige natuur- en recreatiegebied Nieuwe Driemanspolder zich op steenworp afstand. Hier kun je heerlijk wandelen, fietsen en genieten van het buitenleven.
De bereikbaarheid is uitstekend: de RandstadRail brengt je in ongeveer 15 minuten naar het centrum van Den Haag of Zoetermeer. Met de auto zijn de A4, A12 en A13 snel bereikbaar, waardoor steden als Rotterdam, Leiden en Amsterdam eenvoudig te bereiken zijn. Kortom, een centrale ligging waar rust, ruimte en stedelijke voorzieningen perfect samenkomen.
Klinkt dit als jouw ideale thuis? Loop alvast in 3D door de woning om alle ruimtes te bekijken en maak snel een afspraak voor een bezichtiging!
INTERESSE?
Dan nodigen we je uit om contact met ons op te nemen. We vertellen je graag meer over deze woning en zorgen ervoor dat je overige stukken en algemene voorwaarden verkopend makelaar digitaal via jouw persoonlijke Move account kunt bekijken.
ONZE TIP
Aankopen? Schakel jouw eigen NVM-aankoopmakelaar in! De NVM-aankoopmakelaar komt op voor jouw belang en bespaart je veel tijd, geld en zorgen. Adressen van collega NVM-aankoopmakelaars vind je op Funda.
De gegeven informatie is met zorgvuldigheid opgesteld, aan de juistheid kunnen echter geen rechten worden ontleend. Alle verstrekte informatie moet beschouwd worden als een uitnodiging tot het doen van een aanbod of om in onderhandeling te treden.
Sfeervolle twee-onder-een-kapwoning dichtbij het water met zonnige tuin en luxe afwerking
Aan de groene en rustige Waterleliekade in de gewilde wijk Leidschenveen vind je deze ruime en perfect onderhouden twee-onder-een-kapwoning. Met een woonoppervlak van 182 m², een perceel van 325 m² en een luxe overkapping van 19 m² is dit een woning die in alle opzichten comfort en stijl uitstraalt.
De woning ligt op een steenworp afstand van de waterpartij aan de Waterleliekade, wat zorgt voor een prachtige omgeving met een gevoel van rust en ruimte. Ideaal voor gezinnen of expats die op zoek zijn naar ruimte, luxe en een unieke ligging.
HIGHLIGHTS
+ Twee-onder-een-kapwoning in uitstekende staat van onderhoud
+ Luxe overkapping van 19 m²
+ Royale oprit met plek voor meerdere auto's
+ Energielabel A
BEGANE GROND
De brede oprit en verzorgde voortuin heten je van harte welkom. Via de ruime entree, waar zich de moderne toiletruimte en de toegang tot de inpandige berging bevinden, stap je de royale woonkamer binnen. Wat direct opvalt, is het overvloedige licht dat binnenstroomt door de grote raampartijen en de schuifpui naar de achtertuin.
De woonkamer is smaakvol afgewerkt met een hoogwaardige houten vloer en strak gestuukte wanden.
De open keuken aan de achterzijde van de woning is een absolute eyecatcher. Deze is voorzien van hoogwaardige inbouwapparatuur: een inductiekookplaat, vaatwasser, royale koel- en vrieskast, oven en een stijlvolle wijnklimaatkast. Het strakke aanrechtblad en de royale kastruimte maken de keuken niet alleen luxe, maar ook uiterst praktisch.
De schuifpui geeft toegang tot de zonnige tuin met meerdere terrassen, waar je kunt genieten van veel privacy.
De tuin is fraai aangelegd, grotendeels betegeld en voorzien van een luxe overkapping van 19 m². Of je nu in de ochtendzon wilt ontbijten of 's avonds heerlijk wilt ontspannen, deze plek is het hele jaar door te gebruiken. De achtertuin biedt veel privacy en ligt dichtbij het water en het park.
1e VERDIEPING
Op de eerste verdieping bevinden zich drie volwaardige slaapkamers. De royale hoofdslaapkamer aan de voorzijde beschikt over een ruime inloopkast, ideaal voor al je kleding en accessoires. Aan de achterzijde ligt de tweede ruime slaapkamer met directe toegang tot een royaal dakterras op het Noordoosten.
De derde kamer op deze verdieping is momenteel ingericht als inloopkast, maar kan eenvoudig dienst doen als extra slaapkamer.
De luxe badkamer op deze verdieping is een ware oase van comfort. Een ruime inloopdouche, een ligbad, een dubbele wastafel en een handdoekradiator zorgen hier voor een luxe en ontspannen sfeer. Het grote raam zorgt voor veel natuurlijk licht, wat de ruimte fris en licht maakt.
2e VERDIEPING
De tweede verdieping is verrassend ruim en praktisch ingedeeld. Een royale overloop met dakkapel biedt toegang tot een vierde slaapkamer met grote raampartijen en volop lichtinval. Daarnaast is er nog een aparte kamer die uitstekend gebruikt kan worden als opbergruimte, hobbykamer of werkplek.
De aparte opstelling voor de wasmachine en droger is voorzien van een dakraam voor extra licht.
PLUSPUNTEN
+ Eigen grond
+ Ruime tuin rondom met veel privacy
+ Grote garage met ruimte voor opslag
+ Ideaal voor expats of jonge gezinnen
+ Ruime oprit met parkeerplaats voor meerdere auto's
+ Unieke ligging
+ Royale living met luxe open keuken voorzien van topapparatuur
+ Vier volwaardige slaapkamers, waarvan één met inloopkast
+ Moderne badkamer met ligbad, regendouche en dubbele wastafel.
+ Inpandige berging, eigen oprit en dakterras met volledige privacy
+ Recreatiegebied de Nieuwe Driemanspolder op loopafstand
+ Hardhouten kozijnen met dubbele beglazing
+ Cv-ketel (Nefit, 2020) en WtW installatie;
+ Zeer centrale ligging, nabij alle faciliteiten, openbaar vervoer en groengebieden
BIJZONDERHEDEN
> Bouwjaar 2002
> Woonoppervlakte ca. 181 m²
> Perceeloppervlak ca. 325 m²
> Inhoud ca. 638 m³
> Riolering recent deels vernieuwd door gemeente (2025)
> Ruime garage van 24 m²
> Luxe overkapping van 19 m²
> Aantal slaapkamers: 4
> Dakkapel en terrasoverkapping uit 2001 (professioneel geplaatst)
> Geen aanwezigheid van asbest, loden leidingen of olietank
> Elektrische installatie grotendeels vernieuwd (leidingen en buizen, 2023)
> Kruipruimte aanwezig, droog en toegankelijk
> Gevels in 2024 volledig gereinigd en in goede staat
> Oplevering: in onderling overleg
> Geen erfpacht, opstalrecht of erfdienstbaarheden van toepassing
> Geen monumentale status of beschermd stads-/dorpsgezicht
OMGEVING
De woning ligt in de rustige en kindvriendelijke wijk Leidschenveen, een groene en moderne woonomgeving aan de rand van Den Haag. Hier woon je midden in het groen, met waterpartijen en brede lanen die zorgen voor een ruimtelijk en ontspannen gevoel.
Voor de dagelijkse voorzieningen ligt het winkelcentrum Leidschenveen op loopafstand. Hier vind je supermarkten, diverse speciaalzaken, horecagelegenheden en zelfs een bibliotheek. Ook het grotere winkelcentrum Mall of the Netherlands ligt op korte afstand voor een dagje uitgebreid winkelen.
Voor gezinnen is Leidschenveen ideaal: er zijn meerdere basisscholen, een middelbare school en kinderdagverblijven in de buurt. Sportliefhebbers kunnen terecht bij verschillende sportverenigingen, fitnesscentra en de nabijgelegen golfbaan.
Bovendien bevindt het prachtige natuur- en recreatiegebied Nieuwe Driemanspolder zich op steenworp afstand. Hier kun je heerlijk wandelen, fietsen en genieten van het buitenleven.
De bereikbaarheid is uitstekend: de RandstadRail brengt je in ongeveer 15 minuten naar het centrum van Den Haag of Zoetermeer. Met de auto zijn de A4, A12 en A13 snel bereikbaar, waardoor steden als Rotterdam, Leiden en Amsterdam eenvoudig te bereiken zijn. Kortom, een centrale ligging waar rust, ruimte en stedelijke voorzieningen perfect samenkomen.
Klinkt dit als jouw ideale thuis? Loop alvast in 3D door de woning om alle ruimtes te bekijken en maak snel een afspraak voor een bezichtiging!
INTERESSE?
Dan nodigen we je uit om contact met ons op te nemen. We vertellen je graag meer over deze woning en zorgen ervoor dat je overige stukken en algemene voorwaarden verkopend makelaar digitaal via jouw persoonlijke Move account kunt bekijken.
ONZE TIP
Aankopen? Schakel jouw eigen NVM-aankoopmakelaar in! De NVM-aankoopmakelaar komt op voor jouw belang en bespaart je veel tijd, geld en zorgen. Adressen van collega NVM-aankoopmakelaars vind je op Funda.
De gegeven informatie is met zorgvuldigheid opgesteld, aan de juistheid kunnen echter geen rechten worden ontleend. Alle verstrekte informatie moet beschouwd worden als een uitnodiging tot het doen van een aanbod of om in onderhandeling te treden.
Beschrijving
LET OP; DIT BETREFT EEN VANAFPRIJS
Sfeervolle twee-onder-een-kapwoning dichtbij het water met zonnige tuin en luxe afwerking
Aan de groene en rustige Waterleliekade in de gewilde wijk Leidschenveen vind je deze ruime en perfect onderhouden twee-onder-een-kapwoning. Met een woonoppervlak van 182 m², een perceel van 325 m² en een luxe overkapping van 19 m² is dit een woning die in alle opzichten comfort en stijl uitstraalt.
De woning ligt op een steenworp afstand van de waterpartij aan de Waterleliekade, wat zorgt voor een prachtige omgeving met een gevoel van rust en ruimte. Ideaal voor gezinnen of expats die op zoek zijn naar ruimte, luxe en een unieke ligging.
HIGHLIGHTS
+ Twee-onder-een-kapwoning in uitstekende staat van onderhoud
+ Luxe overkapping van 19 m²
+ Royale oprit met plek voor meerdere auto's
+ Energielabel A
BEGANE GROND
De brede oprit en verzorgde voortuin heten je van harte welkom. Via de ruime entree, waar zich de moderne toiletruimte en de toegang tot de inpandige berging bevinden, stap je de royale woonkamer binnen. Wat direct opvalt, is het overvloedige licht dat binnenstroomt door de grote raampartijen en de schuifpui naar de achtertuin.
De woonkamer is smaakvol afgewerkt met een hoogwaardige houten vloer en strak gestuukte wanden.
De open keuken aan de achterzijde van de woning is een absolute eyecatcher. Deze is voorzien van hoogwaardige inbouwapparatuur: een inductiekookplaat, vaatwasser, royale koel- en vrieskast, oven en een stijlvolle wijnklimaatkast. Het strakke aanrechtblad en de royale kastruimte maken de keuken niet alleen luxe, maar ook uiterst praktisch.
De schuifpui geeft toegang tot de zonnige tuin met meerdere terrassen, waar je kunt genieten van veel privacy.
De tuin is fraai aangelegd, grotendeels betegeld en voorzien van een luxe overkapping van 19 m². Of je nu in de ochtendzon wilt ontbijten of 's avonds heerlijk wilt ontspannen, deze plek is het hele jaar door te gebruiken. De achtertuin biedt veel privacy en ligt dichtbij het water en het park.
1e VERDIEPING
Op de eerste verdieping bevinden zich drie volwaardige slaapkamers. De royale hoofdslaapkamer aan de voorzijde beschikt over een ruime inloopkast, ideaal voor al je kleding en accessoires. Aan de achterzijde ligt de tweede ruime slaapkamer met directe toegang tot een royaal dakterras op het Noordoosten.
De derde kamer op deze verdieping is momenteel ingericht als inloopkast, maar kan eenvoudig dienst doen als extra slaapkamer.
De luxe badkamer op deze verdieping is een ware oase van comfort. Een ruime inloopdouche, een ligbad, een dubbele wastafel en een handdoekradiator zorgen hier voor een luxe en ontspannen sfeer. Het grote raam zorgt voor veel natuurlijk licht, wat de ruimte fris en licht maakt.
2e VERDIEPING
De tweede verdieping is verrassend ruim en praktisch ingedeeld. Een royale overloop met dakkapel biedt toegang tot een vierde slaapkamer met grote raampartijen en volop lichtinval. Daarnaast is er nog een aparte kamer die uitstekend gebruikt kan worden als opbergruimte, hobbykamer of werkplek.
De aparte opstelling voor de wasmachine en droger is voorzien van een dakraam voor extra licht.
PLUSPUNTEN
+ Eigen grond
+ Ruime tuin rondom met veel privacy
+ Grote garage met ruimte voor opslag
+ Ideaal voor expats of jonge gezinnen
+ Ruime oprit met parkeerplaats voor meerdere auto's
+ Unieke ligging
+ Royale living met luxe open keuken voorzien van topapparatuur
+ Vier volwaardige slaapkamers, waarvan één met inloopkast
+ Moderne badkamer met ligbad, regendouche en dubbele wastafel.
+ Inpandige berging, eigen oprit en dakterras met volledige privacy
+ Recreatiegebied de Nieuwe Driemanspolder op loopafstand
+ Hardhouten kozijnen met dubbele beglazing
+ Cv-ketel (Nefit, 2020) en WtW installatie;
+ Zeer centrale ligging, nabij alle faciliteiten, openbaar vervoer en groengebieden
BIJZONDERHEDEN
> Bouwjaar 2002
> Woonoppervlakte ca. 181 m²
> Perceeloppervlak ca. 325 m²
> Inhoud ca. 638 m³
> Riolering recent deels vernieuwd door gemeente (2025)
> Ruime garage van 24 m²
> Luxe overkapping van 19 m²
> Aantal slaapkamers: 4
> Dakkapel en terrasoverkapping uit 2001 (professioneel geplaatst)
> Geen aanwezigheid van asbest, loden leidingen of olietank
> Elektrische installatie grotendeels vernieuwd (leidingen en buizen, 2023)
> Kruipruimte aanwezig, droog en toegankelijk
> Gevels in 2024 volledig gereinigd en in goede staat
> Oplevering: in onderling overleg
> Geen erfpacht, opstalrecht of erfdienstbaarheden van toepassing
> Geen monumentale status of beschermd stads-/dorpsgezicht
OMGEVING
De woning ligt in de rustige en kindvriendelijke wijk Leidschenveen, een groene en moderne woonomgeving aan de rand van Den Haag. Hier woon je midden in het groen, met waterpartijen en brede lanen die zorgen voor een ruimtelijk en ontspannen gevoel.
Voor de dagelijkse voorzieningen ligt het winkelcentrum Leidschenveen op loopafstand. Hier vind je supermarkten, diverse speciaalzaken, horecagelegenheden en zelfs een bibliotheek. Ook het grotere winkelcentrum Mall of the Netherlands ligt op korte afstand voor een dagje uitgebreid winkelen.
Voor gezinnen is Leidschenveen ideaal: er zijn meerdere basisscholen, een middelbare school en kinderdagverblijven in de buurt. Sportliefhebbers kunnen terecht bij verschillende sportverenigingen, fitnesscentra en de nabijgelegen golfbaan.
Bovendien bevindt het prachtige natuur- en recreatiegebied Nieuwe Driemanspolder zich op steenworp afstand. Hier kun je heerlijk wandelen, fietsen en genieten van het buitenleven.
De bereikbaarheid is uitstekend: de RandstadRail brengt je in ongeveer 15 minuten naar het centrum van Den Haag of Zoetermeer. Met de auto zijn de A4, A12 en A13 snel bereikbaar, waardoor steden als Rotterdam, Leiden en Amsterdam eenvoudig te bereiken zijn. Kortom, een centrale ligging waar rust, ruimte en stedelijke voorzieningen perfect samenkomen.
Klinkt dit als jouw ideale thuis? Loop alvast in 3D door de woning om alle ruimtes te bekijken en maak snel een afspraak voor een bezichtiging!
INTERESSE?
Dan nodigen we je uit om contact met ons op te nemen. We vertellen je graag meer over deze woning en zorgen ervoor dat je overige stukken en algemene voorwaarden verkopend makelaar digitaal via jouw persoonlijke Move account kunt bekijken.
ONZE TIP
Aankopen? Schakel jouw eigen NVM-aankoopmakelaar in! De NVM-aankoopmakelaar komt op voor jouw belang en bespaart je veel tijd, geld en zorgen. Adressen van collega NVM-aankoopmakelaars vind je op Funda.
De gegeven informatie is met zorgvuldigheid opgesteld, aan de juistheid kunnen echter geen rechten worden ontleend. Alle verstrekte informatie moet beschouwd worden als een uitnodiging tot het doen van een aanbod of om in onderhandeling te treden.
Sfeervolle twee-onder-een-kapwoning dichtbij het water met zonnige tuin en luxe afwerking
Aan de groene en rustige Waterleliekade in de gewilde wijk Leidschenveen vind je deze ruime en perfect onderhouden twee-onder-een-kapwoning. Met een woonoppervlak van 182 m², een perceel van 325 m² en een luxe overkapping van 19 m² is dit een woning die in alle opzichten comfort en stijl uitstraalt.
De woning ligt op een steenworp afstand van de waterpartij aan de Waterleliekade, wat zorgt voor een prachtige omgeving met een gevoel van rust en ruimte. Ideaal voor gezinnen of expats die op zoek zijn naar ruimte, luxe en een unieke ligging.
HIGHLIGHTS
+ Twee-onder-een-kapwoning in uitstekende staat van onderhoud
+ Luxe overkapping van 19 m²
+ Royale oprit met plek voor meerdere auto's
+ Energielabel A
BEGANE GROND
De brede oprit en verzorgde voortuin heten je van harte welkom. Via de ruime entree, waar zich de moderne toiletruimte en de toegang tot de inpandige berging bevinden, stap je de royale woonkamer binnen. Wat direct opvalt, is het overvloedige licht dat binnenstroomt door de grote raampartijen en de schuifpui naar de achtertuin.
De woonkamer is smaakvol afgewerkt met een hoogwaardige houten vloer en strak gestuukte wanden.
De open keuken aan de achterzijde van de woning is een absolute eyecatcher. Deze is voorzien van hoogwaardige inbouwapparatuur: een inductiekookplaat, vaatwasser, royale koel- en vrieskast, oven en een stijlvolle wijnklimaatkast. Het strakke aanrechtblad en de royale kastruimte maken de keuken niet alleen luxe, maar ook uiterst praktisch.
De schuifpui geeft toegang tot de zonnige tuin met meerdere terrassen, waar je kunt genieten van veel privacy.
De tuin is fraai aangelegd, grotendeels betegeld en voorzien van een luxe overkapping van 19 m². Of je nu in de ochtendzon wilt ontbijten of 's avonds heerlijk wilt ontspannen, deze plek is het hele jaar door te gebruiken. De achtertuin biedt veel privacy en ligt dichtbij het water en het park.
1e VERDIEPING
Op de eerste verdieping bevinden zich drie volwaardige slaapkamers. De royale hoofdslaapkamer aan de voorzijde beschikt over een ruime inloopkast, ideaal voor al je kleding en accessoires. Aan de achterzijde ligt de tweede ruime slaapkamer met directe toegang tot een royaal dakterras op het Noordoosten.
De derde kamer op deze verdieping is momenteel ingericht als inloopkast, maar kan eenvoudig dienst doen als extra slaapkamer.
De luxe badkamer op deze verdieping is een ware oase van comfort. Een ruime inloopdouche, een ligbad, een dubbele wastafel en een handdoekradiator zorgen hier voor een luxe en ontspannen sfeer. Het grote raam zorgt voor veel natuurlijk licht, wat de ruimte fris en licht maakt.
2e VERDIEPING
De tweede verdieping is verrassend ruim en praktisch ingedeeld. Een royale overloop met dakkapel biedt toegang tot een vierde slaapkamer met grote raampartijen en volop lichtinval. Daarnaast is er nog een aparte kamer die uitstekend gebruikt kan worden als opbergruimte, hobbykamer of werkplek.
De aparte opstelling voor de wasmachine en droger is voorzien van een dakraam voor extra licht.
PLUSPUNTEN
+ Eigen grond
+ Ruime tuin rondom met veel privacy
+ Grote garage met ruimte voor opslag
+ Ideaal voor expats of jonge gezinnen
+ Ruime oprit met parkeerplaats voor meerdere auto's
+ Unieke ligging
+ Royale living met luxe open keuken voorzien van topapparatuur
+ Vier volwaardige slaapkamers, waarvan één met inloopkast
+ Moderne badkamer met ligbad, regendouche en dubbele wastafel.
+ Inpandige berging, eigen oprit en dakterras met volledige privacy
+ Recreatiegebied de Nieuwe Driemanspolder op loopafstand
+ Hardhouten kozijnen met dubbele beglazing
+ Cv-ketel (Nefit, 2020) en WtW installatie;
+ Zeer centrale ligging, nabij alle faciliteiten, openbaar vervoer en groengebieden
BIJZONDERHEDEN
> Bouwjaar 2002
> Woonoppervlakte ca. 181 m²
> Perceeloppervlak ca. 325 m²
> Inhoud ca. 638 m³
> Riolering recent deels vernieuwd door gemeente (2025)
> Ruime garage van 24 m²
> Luxe overkapping van 19 m²
> Aantal slaapkamers: 4
> Dakkapel en terrasoverkapping uit 2001 (professioneel geplaatst)
> Geen aanwezigheid van asbest, loden leidingen of olietank
> Elektrische installatie grotendeels vernieuwd (leidingen en buizen, 2023)
> Kruipruimte aanwezig, droog en toegankelijk
> Gevels in 2024 volledig gereinigd en in goede staat
> Oplevering: in onderling overleg
> Geen erfpacht, opstalrecht of erfdienstbaarheden van toepassing
> Geen monumentale status of beschermd stads-/dorpsgezicht
OMGEVING
De woning ligt in de rustige en kindvriendelijke wijk Leidschenveen, een groene en moderne woonomgeving aan de rand van Den Haag. Hier woon je midden in het groen, met waterpartijen en brede lanen die zorgen voor een ruimtelijk en ontspannen gevoel.
Voor de dagelijkse voorzieningen ligt het winkelcentrum Leidschenveen op loopafstand. Hier vind je supermarkten, diverse speciaalzaken, horecagelegenheden en zelfs een bibliotheek. Ook het grotere winkelcentrum Mall of the Netherlands ligt op korte afstand voor een dagje uitgebreid winkelen.
Voor gezinnen is Leidschenveen ideaal: er zijn meerdere basisscholen, een middelbare school en kinderdagverblijven in de buurt. Sportliefhebbers kunnen terecht bij verschillende sportverenigingen, fitnesscentra en de nabijgelegen golfbaan.
Bovendien bevindt het prachtige natuur- en recreatiegebied Nieuwe Driemanspolder zich op steenworp afstand. Hier kun je heerlijk wandelen, fietsen en genieten van het buitenleven.
De bereikbaarheid is uitstekend: de RandstadRail brengt je in ongeveer 15 minuten naar het centrum van Den Haag of Zoetermeer. Met de auto zijn de A4, A12 en A13 snel bereikbaar, waardoor steden als Rotterdam, Leiden en Amsterdam eenvoudig te bereiken zijn. Kortom, een centrale ligging waar rust, ruimte en stedelijke voorzieningen perfect samenkomen.
Klinkt dit als jouw ideale thuis? Loop alvast in 3D door de woning om alle ruimtes te bekijken en maak snel een afspraak voor een bezichtiging!
INTERESSE?
Dan nodigen we je uit om contact met ons op te nemen. We vertellen je graag meer over deze woning en zorgen ervoor dat je overige stukken en algemene voorwaarden verkopend makelaar digitaal via jouw persoonlijke Move account kunt bekijken.
ONZE TIP
Aankopen? Schakel jouw eigen NVM-aankoopmakelaar in! De NVM-aankoopmakelaar komt op voor jouw belang en bespaart je veel tijd, geld en zorgen. Adressen van collega NVM-aankoopmakelaars vind je op Funda.
De gegeven informatie is met zorgvuldigheid opgesteld, aan de juistheid kunnen echter geen rechten worden ontleend. Alle verstrekte informatie moet beschouwd worden als een uitnodiging tot het doen van een aanbod of om in onderhandeling te treden.
powered by Friva | Lees ons Privacybeleid





































































