NUMANSDORP
€ 400.000
Mendelssohnstraat 19
5 Kamers
1 Badkamers
4 Slaapkamers
136 m²
C
Achtertuin
Bezichtiging plannen
Beschrijving
Ruime eengezinswoning met twee tuinen, serre en garage
Verrassend ruime eengezinswoning met een sfeervolle serre, garage en twee fijne tuinen waar volop van het buitenleven genoten kan worden. Binnen is er een lichte en comfortabele leefruimte met een complete keuken en veel daglicht. Met vier volwaardige slaapkamers en een royale badkamer biedt deze woning alle ruimte.
De ligging in de geliefde en kindvriendelijke Componistenwijk maakt het geheel compleet, met scholen, winkels en uitvalswegen op korte afstand.
HIGHLIGHTS
+ Twee ruime tuinen met veel privacy
+ Vier slaapkamers en een royale badkamer
+ Garage met elektrische deur
BUITENRUIMTE
De woning beschikt over twee fijne tuinen aan de voor en achterkant van het huis, waardoor er op elk moment van de dag een prettige plek in de zon of schaduw te vinden is. De achtertuin is verzorgd aangelegd en biedt veel privacy.
Aansluitend aan de woning bevindt zich de serre, een waardevolle toevoeging die het buitenleven op een natuurlijke manier met binnen verbindt. De serre is voorzien van speciale zon- /warmte werende en isolerende plissé op de binnenzijde van de ramen en aan de buitenzijde is er een elektrisch zonnescherm. De garage is bereikbaar vanuit de tuin en voorzien van een elektrische deur en extra bergruimte.
BEGANE GROND
Via de entree kom je binnen in de hal met meterkast en toegang tot de woonkamer. De lichte woonkamer is prettig ingedeeld en voorzien van een schuifpui aan de voorzijde, wat zorgt voor veel daglicht en een open gevoel. Aan de achterzijde bevindt zich de serre, die als verlengde van de woonruimte wordt ervaren.
De keuken is compleet uitgevoerd en praktisch ingedeeld, met voldoende werk- en kastruimte. De begane grond is voorzien van vloerverwarming, wat bijdraagt aan het comfortabele woonklimaat. In de hal, nabij de trapopgang, bevindt zich een separate toiletruimte.
1e VERDIEPING
Op de eerste verdieping bevinden zich aan de voorzijde twee ruime slaapkamers. De slaapkamers zijn tevens allemaal voorzien van raamhorren. Aan de achterzijde ligt de badkamer. De royale badkamer (ca. 13 m²) is voorzien van een ligbad met whirlpool functie, dubbele wastafel, royale inbouwkast, multi spray douchecabine en een tweede toilet.
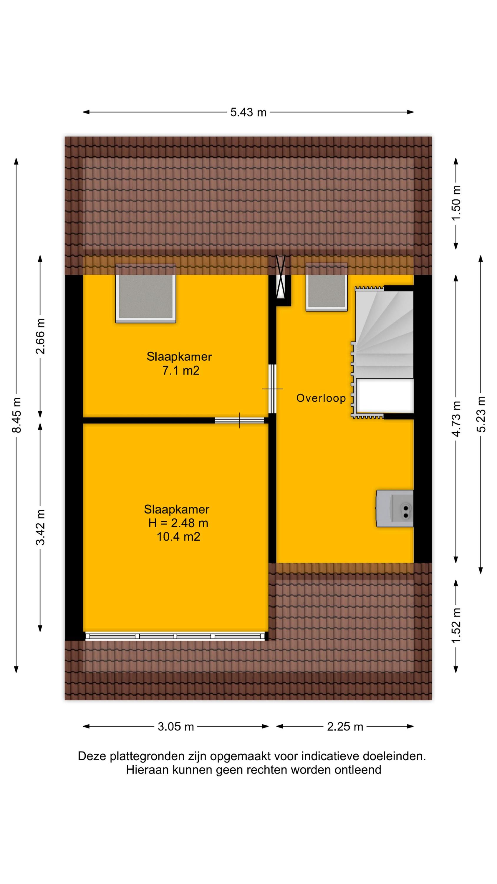
ZOLDERVERDIEPING
De zolderverdieping is praktisch ingedeeld en biedt ruimte aan twee slaapkamers. Beide kamers beschikken over daglicht, mede dankzij de dakkapel, en zijn geschikt als slaap-, werk- of hobbyruimte. Daarnaast bevinden zich hier de opstelplaats van de cv-installatie en extra bergruimte.
LIGGING
De woning is gelegen in de geliefde en kindvriendelijke Componistenwijk van Numansdorp. Een rustige woonomgeving met scholen, speelvoorzieningen, winkels en openbaar vervoer op korte afstand. Ook de uitvalswegen richting Rotterdam en Breda zijn goed bereikbaar.
Klinkt dit als jouw ideale thuis? Loop alvast in 3D door de woning om alle ruimtes te bekijken en maak snel een afspraak voor een bezichtiging!
PLUSPUNTEN
+ Vier volwaardige slaapkamers
+ Garage met elektrische deur
+ Voorzien van een elektrisch zonnescherm
+ Twee tuinen met veel privacy
+ Voorzien van raamhorren
+ Rustige en kindvriendelijke woonwijk
+ Lichte woonkamer met schuifpui
+ Nabij scholen en speelvoorzieningen
+ Dakkapel voor extra ruimte en licht
+ De vloer en gevels zijn deels geïsoleerd
+ Winkels en voorzieningen dichtbij
+ CV ketel uit 2023
+ Voorzien van acht zonnepanelen
ouderdoms-, asbestclausule zijn van toepassing
OMGEVING
Benieuwd naar de omgeving? Bekijk alle voorzieningen onder het kopje ‘In de buurt’!
INTERESSE?
Dan nodigen we je uit om contact met ons op te nemen. We vertellen je graag meer over deze woning en zorgen ervoor dat je overige stukken en algemene voorwaarden verkopend makelaar digitaal via jouw persoonlijke Move account kunt bekijken.
ONZE TIP
Aankopen? Schakel jouw eigen NVM-aankoopmakelaar in! De NVM-aankoopmakelaar komt op voor jouw belang en bespaart je veel tijd, geld en zorgen. Adressen van collega NVM-aankoopmakelaars vind je op Funda.
De gegeven informatie is met zorgvuldigheid opgesteld, aan de juistheid kunnen echter geen rechten worden ontleend. Alle verstrekte informatie moet beschouwd worden als een uitnodiging tot het doen van een aanbod of om in onderhandeling te treden.
Verrassend ruime eengezinswoning met een sfeervolle serre, garage en twee fijne tuinen waar volop van het buitenleven genoten kan worden. Binnen is er een lichte en comfortabele leefruimte met een complete keuken en veel daglicht. Met vier volwaardige slaapkamers en een royale badkamer biedt deze woning alle ruimte.
De ligging in de geliefde en kindvriendelijke Componistenwijk maakt het geheel compleet, met scholen, winkels en uitvalswegen op korte afstand.
HIGHLIGHTS
+ Twee ruime tuinen met veel privacy
+ Vier slaapkamers en een royale badkamer
+ Garage met elektrische deur
BUITENRUIMTE
De woning beschikt over twee fijne tuinen aan de voor en achterkant van het huis, waardoor er op elk moment van de dag een prettige plek in de zon of schaduw te vinden is. De achtertuin is verzorgd aangelegd en biedt veel privacy.
Aansluitend aan de woning bevindt zich de serre, een waardevolle toevoeging die het buitenleven op een natuurlijke manier met binnen verbindt. De serre is voorzien van speciale zon- /warmte werende en isolerende plissé op de binnenzijde van de ramen en aan de buitenzijde is er een elektrisch zonnescherm. De garage is bereikbaar vanuit de tuin en voorzien van een elektrische deur en extra bergruimte.
BEGANE GROND
Via de entree kom je binnen in de hal met meterkast en toegang tot de woonkamer. De lichte woonkamer is prettig ingedeeld en voorzien van een schuifpui aan de voorzijde, wat zorgt voor veel daglicht en een open gevoel. Aan de achterzijde bevindt zich de serre, die als verlengde van de woonruimte wordt ervaren.
De keuken is compleet uitgevoerd en praktisch ingedeeld, met voldoende werk- en kastruimte. De begane grond is voorzien van vloerverwarming, wat bijdraagt aan het comfortabele woonklimaat. In de hal, nabij de trapopgang, bevindt zich een separate toiletruimte.
1e VERDIEPING
Op de eerste verdieping bevinden zich aan de voorzijde twee ruime slaapkamers. De slaapkamers zijn tevens allemaal voorzien van raamhorren. Aan de achterzijde ligt de badkamer. De royale badkamer (ca. 13 m²) is voorzien van een ligbad met whirlpool functie, dubbele wastafel, royale inbouwkast, multi spray douchecabine en een tweede toilet.
ZOLDERVERDIEPING
De zolderverdieping is praktisch ingedeeld en biedt ruimte aan twee slaapkamers. Beide kamers beschikken over daglicht, mede dankzij de dakkapel, en zijn geschikt als slaap-, werk- of hobbyruimte. Daarnaast bevinden zich hier de opstelplaats van de cv-installatie en extra bergruimte.
LIGGING
De woning is gelegen in de geliefde en kindvriendelijke Componistenwijk van Numansdorp. Een rustige woonomgeving met scholen, speelvoorzieningen, winkels en openbaar vervoer op korte afstand. Ook de uitvalswegen richting Rotterdam en Breda zijn goed bereikbaar.
Klinkt dit als jouw ideale thuis? Loop alvast in 3D door de woning om alle ruimtes te bekijken en maak snel een afspraak voor een bezichtiging!
PLUSPUNTEN
+ Vier volwaardige slaapkamers
+ Garage met elektrische deur
+ Voorzien van een elektrisch zonnescherm
+ Twee tuinen met veel privacy
+ Voorzien van raamhorren
+ Rustige en kindvriendelijke woonwijk
+ Lichte woonkamer met schuifpui
+ Nabij scholen en speelvoorzieningen
+ Dakkapel voor extra ruimte en licht
+ De vloer en gevels zijn deels geïsoleerd
+ Winkels en voorzieningen dichtbij
+ CV ketel uit 2023
+ Voorzien van acht zonnepanelen
ouderdoms-, asbestclausule zijn van toepassing
OMGEVING
Benieuwd naar de omgeving? Bekijk alle voorzieningen onder het kopje ‘In de buurt’!
INTERESSE?
Dan nodigen we je uit om contact met ons op te nemen. We vertellen je graag meer over deze woning en zorgen ervoor dat je overige stukken en algemene voorwaarden verkopend makelaar digitaal via jouw persoonlijke Move account kunt bekijken.
ONZE TIP
Aankopen? Schakel jouw eigen NVM-aankoopmakelaar in! De NVM-aankoopmakelaar komt op voor jouw belang en bespaart je veel tijd, geld en zorgen. Adressen van collega NVM-aankoopmakelaars vind je op Funda.
De gegeven informatie is met zorgvuldigheid opgesteld, aan de juistheid kunnen echter geen rechten worden ontleend. Alle verstrekte informatie moet beschouwd worden als een uitnodiging tot het doen van een aanbod of om in onderhandeling te treden.
Beschrijving
Ruime eengezinswoning met twee tuinen, serre en garage
Verrassend ruime eengezinswoning met een sfeervolle serre, garage en twee fijne tuinen waar volop van het buitenleven genoten kan worden. Binnen is er een lichte en comfortabele leefruimte met een complete keuken en veel daglicht. Met vier volwaardige slaapkamers en een royale badkamer biedt deze woning alle ruimte.
De ligging in de geliefde en kindvriendelijke Componistenwijk maakt het geheel compleet, met scholen, winkels en uitvalswegen op korte afstand.
HIGHLIGHTS
+ Twee ruime tuinen met veel privacy
+ Vier slaapkamers en een royale badkamer
+ Garage met elektrische deur
BUITENRUIMTE
De woning beschikt over twee fijne tuinen aan de voor en achterkant van het huis, waardoor er op elk moment van de dag een prettige plek in de zon of schaduw te vinden is. De achtertuin is verzorgd aangelegd en biedt veel privacy.
Aansluitend aan de woning bevindt zich de serre, een waardevolle toevoeging die het buitenleven op een natuurlijke manier met binnen verbindt. De serre is voorzien van speciale zon- /warmte werende en isolerende plissé op de binnenzijde van de ramen en aan de buitenzijde is er een elektrisch zonnescherm. De garage is bereikbaar vanuit de tuin en voorzien van een elektrische deur en extra bergruimte.
BEGANE GROND
Via de entree kom je binnen in de hal met meterkast en toegang tot de woonkamer. De lichte woonkamer is prettig ingedeeld en voorzien van een schuifpui aan de voorzijde, wat zorgt voor veel daglicht en een open gevoel. Aan de achterzijde bevindt zich de serre, die als verlengde van de woonruimte wordt ervaren.
De keuken is compleet uitgevoerd en praktisch ingedeeld, met voldoende werk- en kastruimte. De begane grond is voorzien van vloerverwarming, wat bijdraagt aan het comfortabele woonklimaat. In de hal, nabij de trapopgang, bevindt zich een separate toiletruimte.
1e VERDIEPING
Op de eerste verdieping bevinden zich aan de voorzijde twee ruime slaapkamers. De slaapkamers zijn tevens allemaal voorzien van raamhorren. Aan de achterzijde ligt de badkamer. De royale badkamer (ca. 13 m²) is voorzien van een ligbad met whirlpool functie, dubbele wastafel, royale inbouwkast, multi spray douchecabine en een tweede toilet.
ZOLDERVERDIEPING
De zolderverdieping is praktisch ingedeeld en biedt ruimte aan twee slaapkamers. Beide kamers beschikken over daglicht, mede dankzij de dakkapel, en zijn geschikt als slaap-, werk- of hobbyruimte. Daarnaast bevinden zich hier de opstelplaats van de cv-installatie en extra bergruimte.
LIGGING
De woning is gelegen in de geliefde en kindvriendelijke Componistenwijk van Numansdorp. Een rustige woonomgeving met scholen, speelvoorzieningen, winkels en openbaar vervoer op korte afstand. Ook de uitvalswegen richting Rotterdam en Breda zijn goed bereikbaar.
Klinkt dit als jouw ideale thuis? Loop alvast in 3D door de woning om alle ruimtes te bekijken en maak snel een afspraak voor een bezichtiging!
PLUSPUNTEN
+ Vier volwaardige slaapkamers
+ Garage met elektrische deur
+ Voorzien van een elektrisch zonnescherm
+ Twee tuinen met veel privacy
+ Voorzien van raamhorren
+ Rustige en kindvriendelijke woonwijk
+ Lichte woonkamer met schuifpui
+ Nabij scholen en speelvoorzieningen
+ Dakkapel voor extra ruimte en licht
+ De vloer en gevels zijn deels geïsoleerd
+ Winkels en voorzieningen dichtbij
+ CV ketel uit 2023
+ Voorzien van acht zonnepanelen
ouderdoms-, asbestclausule zijn van toepassing
OMGEVING
Benieuwd naar de omgeving? Bekijk alle voorzieningen onder het kopje ‘In de buurt’!
INTERESSE?
Dan nodigen we je uit om contact met ons op te nemen. We vertellen je graag meer over deze woning en zorgen ervoor dat je overige stukken en algemene voorwaarden verkopend makelaar digitaal via jouw persoonlijke Move account kunt bekijken.
ONZE TIP
Aankopen? Schakel jouw eigen NVM-aankoopmakelaar in! De NVM-aankoopmakelaar komt op voor jouw belang en bespaart je veel tijd, geld en zorgen. Adressen van collega NVM-aankoopmakelaars vind je op Funda.
De gegeven informatie is met zorgvuldigheid opgesteld, aan de juistheid kunnen echter geen rechten worden ontleend. Alle verstrekte informatie moet beschouwd worden als een uitnodiging tot het doen van een aanbod of om in onderhandeling te treden.
Verrassend ruime eengezinswoning met een sfeervolle serre, garage en twee fijne tuinen waar volop van het buitenleven genoten kan worden. Binnen is er een lichte en comfortabele leefruimte met een complete keuken en veel daglicht. Met vier volwaardige slaapkamers en een royale badkamer biedt deze woning alle ruimte.
De ligging in de geliefde en kindvriendelijke Componistenwijk maakt het geheel compleet, met scholen, winkels en uitvalswegen op korte afstand.
HIGHLIGHTS
+ Twee ruime tuinen met veel privacy
+ Vier slaapkamers en een royale badkamer
+ Garage met elektrische deur
BUITENRUIMTE
De woning beschikt over twee fijne tuinen aan de voor en achterkant van het huis, waardoor er op elk moment van de dag een prettige plek in de zon of schaduw te vinden is. De achtertuin is verzorgd aangelegd en biedt veel privacy.
Aansluitend aan de woning bevindt zich de serre, een waardevolle toevoeging die het buitenleven op een natuurlijke manier met binnen verbindt. De serre is voorzien van speciale zon- /warmte werende en isolerende plissé op de binnenzijde van de ramen en aan de buitenzijde is er een elektrisch zonnescherm. De garage is bereikbaar vanuit de tuin en voorzien van een elektrische deur en extra bergruimte.
BEGANE GROND
Via de entree kom je binnen in de hal met meterkast en toegang tot de woonkamer. De lichte woonkamer is prettig ingedeeld en voorzien van een schuifpui aan de voorzijde, wat zorgt voor veel daglicht en een open gevoel. Aan de achterzijde bevindt zich de serre, die als verlengde van de woonruimte wordt ervaren.
De keuken is compleet uitgevoerd en praktisch ingedeeld, met voldoende werk- en kastruimte. De begane grond is voorzien van vloerverwarming, wat bijdraagt aan het comfortabele woonklimaat. In de hal, nabij de trapopgang, bevindt zich een separate toiletruimte.
1e VERDIEPING
Op de eerste verdieping bevinden zich aan de voorzijde twee ruime slaapkamers. De slaapkamers zijn tevens allemaal voorzien van raamhorren. Aan de achterzijde ligt de badkamer. De royale badkamer (ca. 13 m²) is voorzien van een ligbad met whirlpool functie, dubbele wastafel, royale inbouwkast, multi spray douchecabine en een tweede toilet.
ZOLDERVERDIEPING
De zolderverdieping is praktisch ingedeeld en biedt ruimte aan twee slaapkamers. Beide kamers beschikken over daglicht, mede dankzij de dakkapel, en zijn geschikt als slaap-, werk- of hobbyruimte. Daarnaast bevinden zich hier de opstelplaats van de cv-installatie en extra bergruimte.
LIGGING
De woning is gelegen in de geliefde en kindvriendelijke Componistenwijk van Numansdorp. Een rustige woonomgeving met scholen, speelvoorzieningen, winkels en openbaar vervoer op korte afstand. Ook de uitvalswegen richting Rotterdam en Breda zijn goed bereikbaar.
Klinkt dit als jouw ideale thuis? Loop alvast in 3D door de woning om alle ruimtes te bekijken en maak snel een afspraak voor een bezichtiging!
PLUSPUNTEN
+ Vier volwaardige slaapkamers
+ Garage met elektrische deur
+ Voorzien van een elektrisch zonnescherm
+ Twee tuinen met veel privacy
+ Voorzien van raamhorren
+ Rustige en kindvriendelijke woonwijk
+ Lichte woonkamer met schuifpui
+ Nabij scholen en speelvoorzieningen
+ Dakkapel voor extra ruimte en licht
+ De vloer en gevels zijn deels geïsoleerd
+ Winkels en voorzieningen dichtbij
+ CV ketel uit 2023
+ Voorzien van acht zonnepanelen
ouderdoms-, asbestclausule zijn van toepassing
OMGEVING
Benieuwd naar de omgeving? Bekijk alle voorzieningen onder het kopje ‘In de buurt’!
INTERESSE?
Dan nodigen we je uit om contact met ons op te nemen. We vertellen je graag meer over deze woning en zorgen ervoor dat je overige stukken en algemene voorwaarden verkopend makelaar digitaal via jouw persoonlijke Move account kunt bekijken.
ONZE TIP
Aankopen? Schakel jouw eigen NVM-aankoopmakelaar in! De NVM-aankoopmakelaar komt op voor jouw belang en bespaart je veel tijd, geld en zorgen. Adressen van collega NVM-aankoopmakelaars vind je op Funda.
De gegeven informatie is met zorgvuldigheid opgesteld, aan de juistheid kunnen echter geen rechten worden ontleend. Alle verstrekte informatie moet beschouwd worden als een uitnodiging tot het doen van een aanbod of om in onderhandeling te treden.
powered by Friva | Lees ons Privacybeleid























































