'S-GRAVENHAGE - Kraayenstein en de Uithof
€ 250.000
Forellendaal 718
3 Kamers
1 Badkamers
2 Slaapkamers
91 m²
D
Onbekend
Bezichtiging aanvragen
Beschrijving
Ruim 3-kamerappartement met zonnig balkon in Kraayenstein
Dit ruime 3-kamerappartement in de groene wijk Kraayenstein combineert comfort met een gunstige ligging. Je beschikt over een royale woonkamer, moderne keuken, zonnig balkon op het zuidwesten en een eigen berging in de onderbouw. Het appartement ligt in een verzorgd complex met lift, vlak bij winkels, het strand en recreatiegebied Madestein.
Let op: de woning wordt in verhuurde staat verkocht
HIGHLIGHTS
+ Word verkocht in verhuurde staat
+ Zonnig balkon op het zuidwesten
+ Lift en ruime woonkamer
INDELING
GEZAMENLIJKE RUIMTE
De centrale entree is netjes verzorgd en voorzien van brievenbussen, bellentableau, lift en trappenhuis naar de verdiepingen.
DERDE VERDIEPING
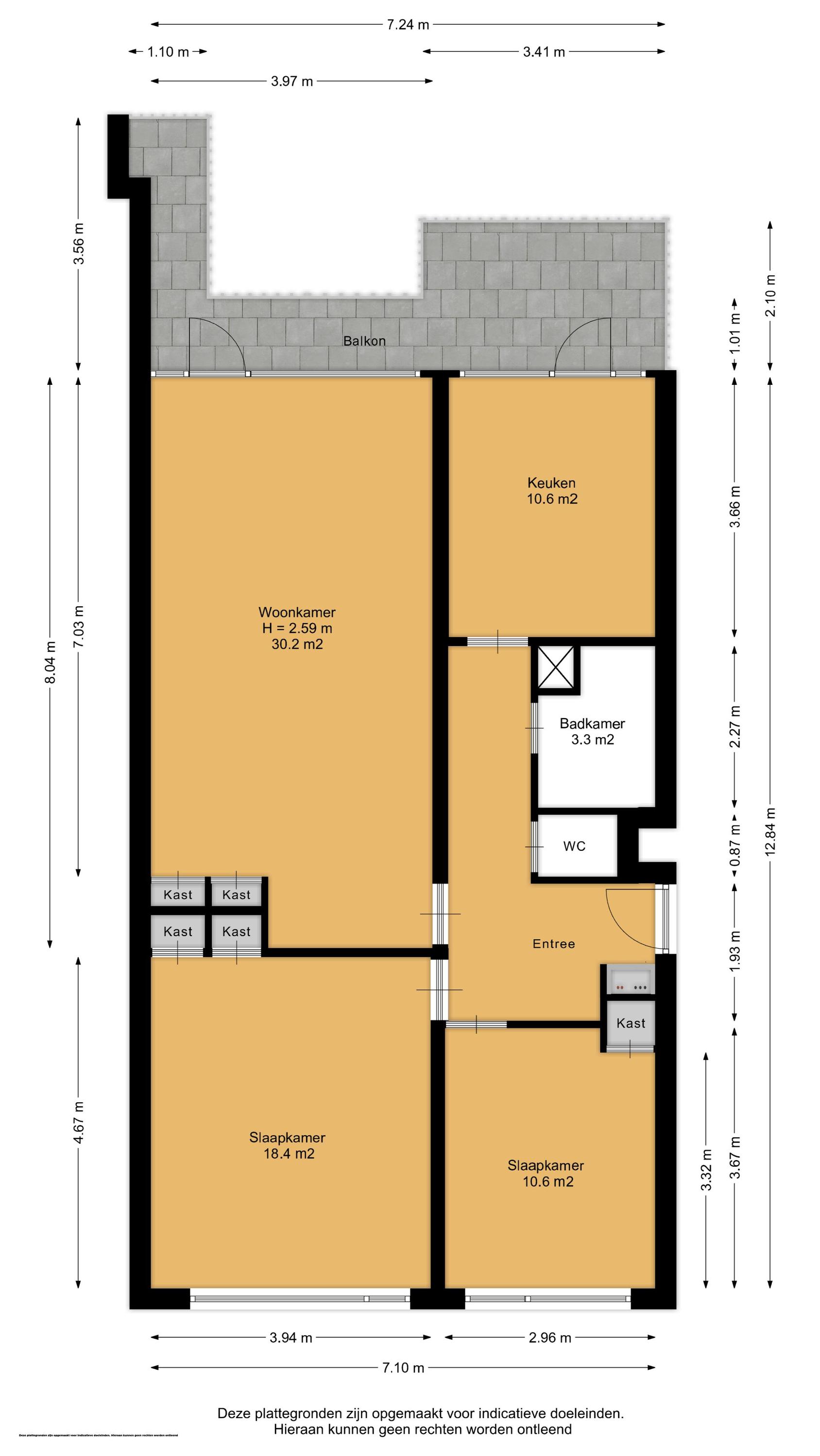
Het appartement bevindt zich op de derde verdieping van een goed onderhouden gebouw. De ruime woonkamer biedt een prettig gevoel van licht en ruimte, met een grote raampartij en toegang tot het balkon dat zich uitstrekt over de volle breedte van de woning. Hier geniet je volop van de middag- en avondzon.
De aparte keuken is modern ingericht en voorzien van een natuurstenen werkblad en diverse inbouwapparatuur, waaronder een 5-pits gasfornuis, oven, combi-magnetron, vaatwasser, koelkast en vriezer.
Er zijn twee goed bemeten slaapkamers die beide eenvoudig zijn in te richten als slaap-, werk- of logeerkamer. De badkamer beschikt over een ligbad met douchewand, wastafelmeubel en is keurig afgewerkt.
Daarnaast is er een eigen berging op de begane grond, ideaal voor fietsen of extra opslagruimte.
OMGEVING
De wijk Kraayenstein staat bekend om de ruime opzet, het vele groen en de uitstekende voorzieningen. Het winkelcentrum Kraayenstein ligt op loopafstand en ook het strand, natuurgebied Madestein en diverse sportfaciliteiten zijn snel bereikbaar. Met goede OV-verbindingen en uitvalswegen in de buurt is de ligging bovendien ideaal voor zowel eigen gebruik als verhuur.
Klinkt dit als jouw ideale thuis? Loop alvast in 3D door de woning om alle ruimtes te bekijken en maak snel een afspraak voor een bezichtiging!
PLUSPUNTEN
+ Verhuurde staat – direct rendement
+ Zonnig balkon over de volledige breedte
+ Ruime en lichte woonkamer
+ Aparte keuken met natuurstenen werkblad
+ Voorzien van oven, combi-magnetron, 5-pits gasfornuis
+ Inclusief vaatwasser, koelkast, vriezer, wasmachine en droger
+ Goede badkamer met ligbad en douchewand
+ Twee ruime slaapkamers
+ Lift in het complex
+ Eigen berging op de begane grond
+ In het complex is een huismeester aanwezig
+ Nabij winkels, openbaar vervoer en natuur
BIJZONDERHEDEN
> Woning word in verhuurde staat verkocht
> Voorschot verwarming bedraagt €65,- per maand.
> Het complex ondergaat momenteel diverse verduurzamingsmaatregelen, die naar verwachting medio 2026 worden afgerond. Na de werkzaamheden zal het complex voldoen aan energieklasse A+.
ouderdoms-, asbest en loodclausule zijn van toepassing
OMGEVING
Benieuwd naar de omgeving? Bekijk alle voorzieningen onder het kopje ‘In de buurt’!
INTERESSE?
Dan nodigen we je uit om contact met ons op te nemen. We vertellen je graag meer over deze woning en zorgen ervoor dat je overige stukken en algemene voorwaarden verkopend makelaar digitaal via jouw persoonlijke Move account kunt bekijken.
ONZE TIP
Aankopen? Schakel jouw eigen NVM-aankoopmakelaar in! De NVM-aankoopmakelaar komt op voor jouw belang en bespaart je veel tijd, geld en zorgen. Adressen van collega NVM-aankoopmakelaars vind je op Funda.
De gegeven informatie is met zorgvuldigheid opgesteld, aan de juistheid kunnen echter geen rechten worden ontleend. Alle verstrekte informatie moet beschouwd worden als een uitnodiging tot het doen van een aanbod of om in onderhandeling te treden.
Dit ruime 3-kamerappartement in de groene wijk Kraayenstein combineert comfort met een gunstige ligging. Je beschikt over een royale woonkamer, moderne keuken, zonnig balkon op het zuidwesten en een eigen berging in de onderbouw. Het appartement ligt in een verzorgd complex met lift, vlak bij winkels, het strand en recreatiegebied Madestein.
Let op: de woning wordt in verhuurde staat verkocht
HIGHLIGHTS
+ Word verkocht in verhuurde staat
+ Zonnig balkon op het zuidwesten
+ Lift en ruime woonkamer
INDELING
GEZAMENLIJKE RUIMTE
De centrale entree is netjes verzorgd en voorzien van brievenbussen, bellentableau, lift en trappenhuis naar de verdiepingen.
DERDE VERDIEPING
Het appartement bevindt zich op de derde verdieping van een goed onderhouden gebouw. De ruime woonkamer biedt een prettig gevoel van licht en ruimte, met een grote raampartij en toegang tot het balkon dat zich uitstrekt over de volle breedte van de woning. Hier geniet je volop van de middag- en avondzon.
De aparte keuken is modern ingericht en voorzien van een natuurstenen werkblad en diverse inbouwapparatuur, waaronder een 5-pits gasfornuis, oven, combi-magnetron, vaatwasser, koelkast en vriezer.
Er zijn twee goed bemeten slaapkamers die beide eenvoudig zijn in te richten als slaap-, werk- of logeerkamer. De badkamer beschikt over een ligbad met douchewand, wastafelmeubel en is keurig afgewerkt.
Daarnaast is er een eigen berging op de begane grond, ideaal voor fietsen of extra opslagruimte.
OMGEVING
De wijk Kraayenstein staat bekend om de ruime opzet, het vele groen en de uitstekende voorzieningen. Het winkelcentrum Kraayenstein ligt op loopafstand en ook het strand, natuurgebied Madestein en diverse sportfaciliteiten zijn snel bereikbaar. Met goede OV-verbindingen en uitvalswegen in de buurt is de ligging bovendien ideaal voor zowel eigen gebruik als verhuur.
Klinkt dit als jouw ideale thuis? Loop alvast in 3D door de woning om alle ruimtes te bekijken en maak snel een afspraak voor een bezichtiging!
PLUSPUNTEN
+ Verhuurde staat – direct rendement
+ Zonnig balkon over de volledige breedte
+ Ruime en lichte woonkamer
+ Aparte keuken met natuurstenen werkblad
+ Voorzien van oven, combi-magnetron, 5-pits gasfornuis
+ Inclusief vaatwasser, koelkast, vriezer, wasmachine en droger
+ Goede badkamer met ligbad en douchewand
+ Twee ruime slaapkamers
+ Lift in het complex
+ Eigen berging op de begane grond
+ In het complex is een huismeester aanwezig
+ Nabij winkels, openbaar vervoer en natuur
BIJZONDERHEDEN
> Woning word in verhuurde staat verkocht
> Voorschot verwarming bedraagt €65,- per maand.
> Het complex ondergaat momenteel diverse verduurzamingsmaatregelen, die naar verwachting medio 2026 worden afgerond. Na de werkzaamheden zal het complex voldoen aan energieklasse A+.
ouderdoms-, asbest en loodclausule zijn van toepassing
OMGEVING
Benieuwd naar de omgeving? Bekijk alle voorzieningen onder het kopje ‘In de buurt’!
INTERESSE?
Dan nodigen we je uit om contact met ons op te nemen. We vertellen je graag meer over deze woning en zorgen ervoor dat je overige stukken en algemene voorwaarden verkopend makelaar digitaal via jouw persoonlijke Move account kunt bekijken.
ONZE TIP
Aankopen? Schakel jouw eigen NVM-aankoopmakelaar in! De NVM-aankoopmakelaar komt op voor jouw belang en bespaart je veel tijd, geld en zorgen. Adressen van collega NVM-aankoopmakelaars vind je op Funda.
De gegeven informatie is met zorgvuldigheid opgesteld, aan de juistheid kunnen echter geen rechten worden ontleend. Alle verstrekte informatie moet beschouwd worden als een uitnodiging tot het doen van een aanbod of om in onderhandeling te treden.
Beschrijving
Ruim 3-kamerappartement met zonnig balkon in Kraayenstein
Dit ruime 3-kamerappartement in de groene wijk Kraayenstein combineert comfort met een gunstige ligging. Je beschikt over een royale woonkamer, moderne keuken, zonnig balkon op het zuidwesten en een eigen berging in de onderbouw. Het appartement ligt in een verzorgd complex met lift, vlak bij winkels, het strand en recreatiegebied Madestein.
Let op: de woning wordt in verhuurde staat verkocht
HIGHLIGHTS
+ Word verkocht in verhuurde staat
+ Zonnig balkon op het zuidwesten
+ Lift en ruime woonkamer
INDELING
GEZAMENLIJKE RUIMTE
De centrale entree is netjes verzorgd en voorzien van brievenbussen, bellentableau, lift en trappenhuis naar de verdiepingen.
DERDE VERDIEPING
Het appartement bevindt zich op de derde verdieping van een goed onderhouden gebouw. De ruime woonkamer biedt een prettig gevoel van licht en ruimte, met een grote raampartij en toegang tot het balkon dat zich uitstrekt over de volle breedte van de woning. Hier geniet je volop van de middag- en avondzon.
De aparte keuken is modern ingericht en voorzien van een natuurstenen werkblad en diverse inbouwapparatuur, waaronder een 5-pits gasfornuis, oven, combi-magnetron, vaatwasser, koelkast en vriezer.
Er zijn twee goed bemeten slaapkamers die beide eenvoudig zijn in te richten als slaap-, werk- of logeerkamer. De badkamer beschikt over een ligbad met douchewand, wastafelmeubel en is keurig afgewerkt.
Daarnaast is er een eigen berging op de begane grond, ideaal voor fietsen of extra opslagruimte.
OMGEVING
De wijk Kraayenstein staat bekend om de ruime opzet, het vele groen en de uitstekende voorzieningen. Het winkelcentrum Kraayenstein ligt op loopafstand en ook het strand, natuurgebied Madestein en diverse sportfaciliteiten zijn snel bereikbaar. Met goede OV-verbindingen en uitvalswegen in de buurt is de ligging bovendien ideaal voor zowel eigen gebruik als verhuur.
Klinkt dit als jouw ideale thuis? Loop alvast in 3D door de woning om alle ruimtes te bekijken en maak snel een afspraak voor een bezichtiging!
PLUSPUNTEN
+ Verhuurde staat – direct rendement
+ Zonnig balkon over de volledige breedte
+ Ruime en lichte woonkamer
+ Aparte keuken met natuurstenen werkblad
+ Voorzien van oven, combi-magnetron, 5-pits gasfornuis
+ Inclusief vaatwasser, koelkast, vriezer, wasmachine en droger
+ Goede badkamer met ligbad en douchewand
+ Twee ruime slaapkamers
+ Lift in het complex
+ Eigen berging op de begane grond
+ In het complex is een huismeester aanwezig
+ Nabij winkels, openbaar vervoer en natuur
BIJZONDERHEDEN
> Woning word in verhuurde staat verkocht
> Voorschot verwarming bedraagt €65,- per maand.
> Het complex ondergaat momenteel diverse verduurzamingsmaatregelen, die naar verwachting medio 2026 worden afgerond. Na de werkzaamheden zal het complex voldoen aan energieklasse A+.
ouderdoms-, asbest en loodclausule zijn van toepassing
OMGEVING
Benieuwd naar de omgeving? Bekijk alle voorzieningen onder het kopje ‘In de buurt’!
INTERESSE?
Dan nodigen we je uit om contact met ons op te nemen. We vertellen je graag meer over deze woning en zorgen ervoor dat je overige stukken en algemene voorwaarden verkopend makelaar digitaal via jouw persoonlijke Move account kunt bekijken.
ONZE TIP
Aankopen? Schakel jouw eigen NVM-aankoopmakelaar in! De NVM-aankoopmakelaar komt op voor jouw belang en bespaart je veel tijd, geld en zorgen. Adressen van collega NVM-aankoopmakelaars vind je op Funda.
De gegeven informatie is met zorgvuldigheid opgesteld, aan de juistheid kunnen echter geen rechten worden ontleend. Alle verstrekte informatie moet beschouwd worden als een uitnodiging tot het doen van een aanbod of om in onderhandeling te treden.
Dit ruime 3-kamerappartement in de groene wijk Kraayenstein combineert comfort met een gunstige ligging. Je beschikt over een royale woonkamer, moderne keuken, zonnig balkon op het zuidwesten en een eigen berging in de onderbouw. Het appartement ligt in een verzorgd complex met lift, vlak bij winkels, het strand en recreatiegebied Madestein.
Let op: de woning wordt in verhuurde staat verkocht
HIGHLIGHTS
+ Word verkocht in verhuurde staat
+ Zonnig balkon op het zuidwesten
+ Lift en ruime woonkamer
INDELING
GEZAMENLIJKE RUIMTE
De centrale entree is netjes verzorgd en voorzien van brievenbussen, bellentableau, lift en trappenhuis naar de verdiepingen.
DERDE VERDIEPING
Het appartement bevindt zich op de derde verdieping van een goed onderhouden gebouw. De ruime woonkamer biedt een prettig gevoel van licht en ruimte, met een grote raampartij en toegang tot het balkon dat zich uitstrekt over de volle breedte van de woning. Hier geniet je volop van de middag- en avondzon.
De aparte keuken is modern ingericht en voorzien van een natuurstenen werkblad en diverse inbouwapparatuur, waaronder een 5-pits gasfornuis, oven, combi-magnetron, vaatwasser, koelkast en vriezer.
Er zijn twee goed bemeten slaapkamers die beide eenvoudig zijn in te richten als slaap-, werk- of logeerkamer. De badkamer beschikt over een ligbad met douchewand, wastafelmeubel en is keurig afgewerkt.
Daarnaast is er een eigen berging op de begane grond, ideaal voor fietsen of extra opslagruimte.
OMGEVING
De wijk Kraayenstein staat bekend om de ruime opzet, het vele groen en de uitstekende voorzieningen. Het winkelcentrum Kraayenstein ligt op loopafstand en ook het strand, natuurgebied Madestein en diverse sportfaciliteiten zijn snel bereikbaar. Met goede OV-verbindingen en uitvalswegen in de buurt is de ligging bovendien ideaal voor zowel eigen gebruik als verhuur.
Klinkt dit als jouw ideale thuis? Loop alvast in 3D door de woning om alle ruimtes te bekijken en maak snel een afspraak voor een bezichtiging!
PLUSPUNTEN
+ Verhuurde staat – direct rendement
+ Zonnig balkon over de volledige breedte
+ Ruime en lichte woonkamer
+ Aparte keuken met natuurstenen werkblad
+ Voorzien van oven, combi-magnetron, 5-pits gasfornuis
+ Inclusief vaatwasser, koelkast, vriezer, wasmachine en droger
+ Goede badkamer met ligbad en douchewand
+ Twee ruime slaapkamers
+ Lift in het complex
+ Eigen berging op de begane grond
+ In het complex is een huismeester aanwezig
+ Nabij winkels, openbaar vervoer en natuur
BIJZONDERHEDEN
> Woning word in verhuurde staat verkocht
> Voorschot verwarming bedraagt €65,- per maand.
> Het complex ondergaat momenteel diverse verduurzamingsmaatregelen, die naar verwachting medio 2026 worden afgerond. Na de werkzaamheden zal het complex voldoen aan energieklasse A+.
ouderdoms-, asbest en loodclausule zijn van toepassing
OMGEVING
Benieuwd naar de omgeving? Bekijk alle voorzieningen onder het kopje ‘In de buurt’!
INTERESSE?
Dan nodigen we je uit om contact met ons op te nemen. We vertellen je graag meer over deze woning en zorgen ervoor dat je overige stukken en algemene voorwaarden verkopend makelaar digitaal via jouw persoonlijke Move account kunt bekijken.
ONZE TIP
Aankopen? Schakel jouw eigen NVM-aankoopmakelaar in! De NVM-aankoopmakelaar komt op voor jouw belang en bespaart je veel tijd, geld en zorgen. Adressen van collega NVM-aankoopmakelaars vind je op Funda.
De gegeven informatie is met zorgvuldigheid opgesteld, aan de juistheid kunnen echter geen rechten worden ontleend. Alle verstrekte informatie moet beschouwd worden als een uitnodiging tot het doen van een aanbod of om in onderhandeling te treden.
powered by Friva | Lees ons Privacybeleid










































