BARENDRECHT
€ 450.000
Markermeer 15
5 Kamers
1 Badkamers
4 Slaapkamers
111 m²
A
Achtertuin
Bezichtiging aanvragen
Beschrijving
Ruime eengezinswoning met vier slaapkamers
Deze eengezinswoning aan het Markermeer 15 biedt volop leefruimte, met vier slaapkamers, een royale zolderverdieping en een zonnige tuin op het zuiden. De woning is volledig naar eigen wens in te richten en vormt daarmee de ideale basis om er een persoonlijk en comfortabel thuis van te maken. Gelegen naast een speelplein in een rustige, groene woonwijk, met winkels, scholen, speeltuinen en openbaar vervoer op loopafstand, woon je hier centraal én prettig, met alle dagelijkse voorzieningen binnen handbereik.
HIGHLIGHTS
+ Tuin op het Zuiden
+ Energielabel A
+ Vier ruime slaapkamer
BUITENRUIMTE
De achtertuin heeft dankzij de open ligging veel lichtinval en privacy, is onderhoudsvriendelijk aangelegd en biedt volop ruimte voor een loungehoek, eettafel of speelplek. Achterin de tuin bevindt zich een berging voor fietsen en (tuin)gereedschap, met een praktische achterom via de berging naar het achterpad. Aan de voorzijde ligt een nette voortuin en in de directe omgeving is voldoende parkeergelegenheid aanwezig.
BEGANE GROND
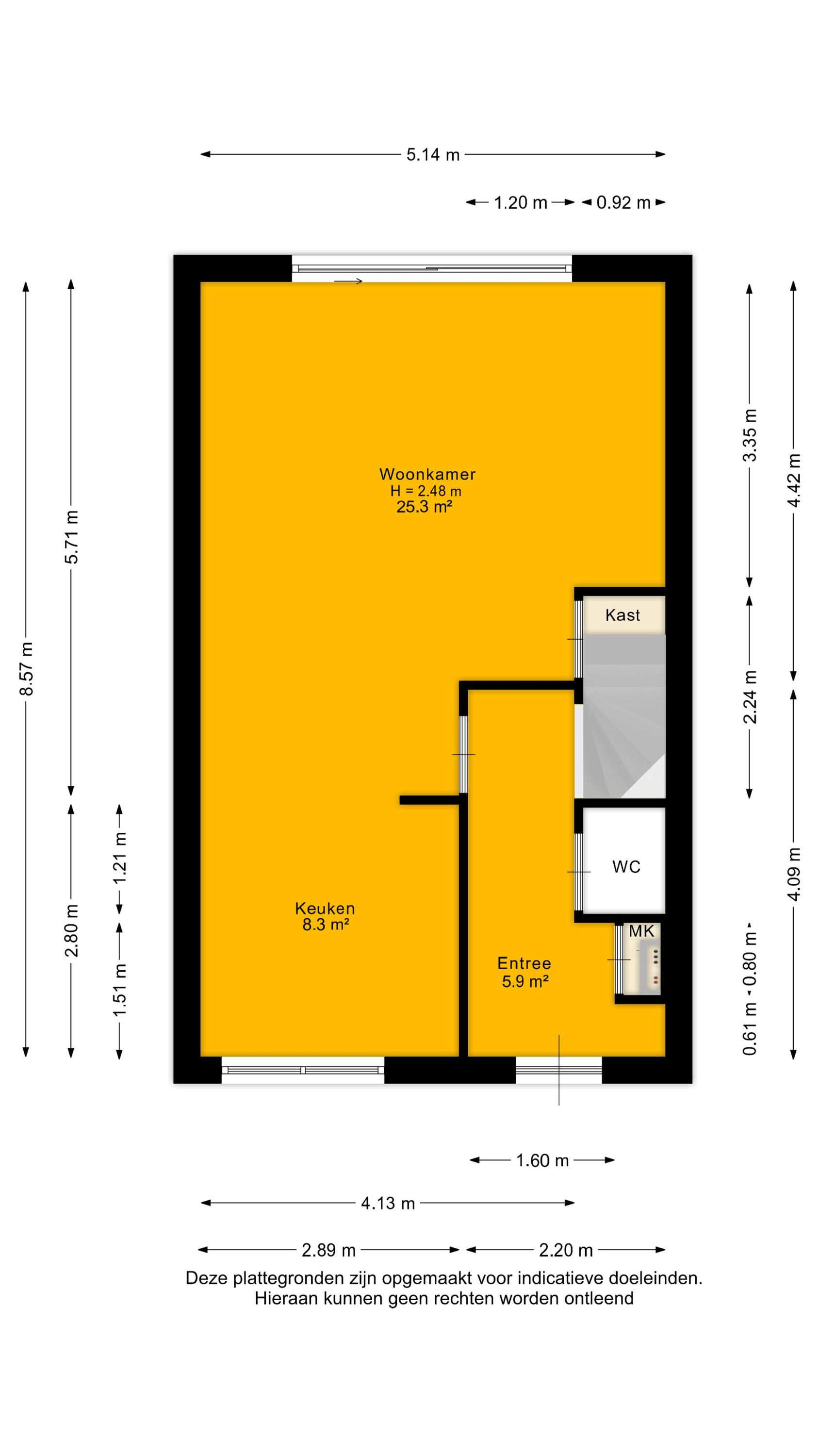
Via de entree betreed je de hal met meterkast en een separaat toilet met fonteintje. De woonkamer is heerlijk licht dankzij de grote schuifpui aan de achterzijde en het extra zijraam, wat de hoekligging extra benadrukt. De rechthoekige indeling zorgt voor volop mogelijkheden om een comfortabele zit- en eetruimte te creëren. Aan de voorzijde van de woning bevindt zich de ruimte voor de keuken; er is momenteel geen keuken aanwezig, waardoor je alle vrijheid hebt om hier een keuken geheel naar eigen smaak en wensen te realiseren. De begane grond is casco opgeleverd en vormt daarmee een blanco basis voor het creëren van jouw ideale woonomgeving.
1e VERDIEPING
Op de eerste verdieping bevinden zich drie goed bemeten slaapkamers van circa 13m², 11m² en 7 m², waarvan twee aan de achterzijde en een aan de voorzijde zijn gelegen. De badkamer is compleet uitgevoerd en beschikt over een douche, ligbad, wastafel en een tweede toilet.
2e VERDIEPING OF ZOLDERVERDIEPING
De zolderverdieping is via een vaste trap toegankelijk en kenmerkt zich door de royale opzet en veelzijdige indeling. Hier is een volwaardige vierde kamer aanwezig, ideaal als extra slaapkamer, thuiswerkplek of hobbyruimte. Het dakraam zorgt voor prettige lichtinval en achter de knieschotten is praktische bergruimte gecreëerd. Op de overloop bevinden zich de aansluitingen voor de wasmachine en de opstelling van de cv-installatie.
OMGEVING
Deze woning ligt in een rustige straat in de populaire woonwijk Meerwede Zuid-West, waar comfort en bereikbaarheid samenkomen. Dagelijkse voorzieningen zoals winkelcentrum Carnisse Veste, basisscholen, kinderopvang en sportfaciliteiten bevinden zich op korte afstand. Dankzij de nabijgelegen tramverbinding ben je binnen ongeveer 30 minuten in het hart van Rotterdam.
Ook de bereikbaarheid met de auto is uitstekend, met snelle aansluitingen op de A15 en A29. Voor ontspanning in het groen hoef je niet ver te zoeken: het recreatiegebied langs de Oude Maas en de sfeervolle Carnisse Grienden liggen op fiets- en loopafstand en bieden volop mogelijkheden om te wandelen, fietsen en genieten van de natuur.
Klinkt dit als jouw ideale thuis? Loop alvast in 3D door de woning om alle ruimtes te bekijken en maak snel een afspraak voor een bezichtiging!
PLUSPUNTEN
+ Energielabel A
+ Tuin op het zuiden
+ Verschillende scholen, sportverenigingen en horecagelegenheden in de buurt
+ Helemaal naar eigen smaak te maken
+ Met tram is het centrum van Rotterdam in ca. 30 minuten te bereiken
+ Vier ruime slaapkamers
+ Goede parkeergelegenheid in de omgeving
+ Ruime tuin met berging en achterom
+ Uitvalswegen A15 en A29 zijn snel te bereiken
+ Voorzien van een grote schuifpui naar de tuin
BIJZONDERHEDEN
> De opgegeven kadastrale oppervlakte is een inschatting. Het perceel dient nog kadastraal
te worden uitgemeten, deze kosten komen voor rekening van de koper; kosten ca. €1050,-
> De niet-zelfbewoningsclausule zal worden opgenomen in de koopakte;
> Het transport geschiedt via vaste notaris Heldoorn Eggels/NotarisUnie uit Almere;
ouderdoms-, niet-bewoondclausule zijn van toepassing
OMGEVING
Benieuwd naar de omgeving? Bekijk alle voorzieningen onder het kopje ‘In de buurt’!
INTERESSE?
Dan nodigen we je uit om contact met ons op te nemen. We vertellen je graag meer over deze woning en zorgen ervoor dat je overige stukken en algemene voorwaarden verkopend makelaar digitaal via jouw persoonlijke Move account kunt bekijken.
ONZE TIP
Aankopen? Schakel jouw eigen NVM-aankoopmakelaar in! De NVM-aankoopmakelaar komt op voor jouw belang en bespaart je veel tijd, geld en zorgen. Adressen van collega NVM-aankoopmakelaars vind je op Funda.
De gegeven informatie is met zorgvuldigheid opgesteld, aan de juistheid kunnen echter geen rechten worden ontleend. Alle verstrekte informatie moet beschouwd worden als een uitnodiging tot het doen van een aanbod of om in onderhandeling te treden.
Deze eengezinswoning aan het Markermeer 15 biedt volop leefruimte, met vier slaapkamers, een royale zolderverdieping en een zonnige tuin op het zuiden. De woning is volledig naar eigen wens in te richten en vormt daarmee de ideale basis om er een persoonlijk en comfortabel thuis van te maken. Gelegen naast een speelplein in een rustige, groene woonwijk, met winkels, scholen, speeltuinen en openbaar vervoer op loopafstand, woon je hier centraal én prettig, met alle dagelijkse voorzieningen binnen handbereik.
HIGHLIGHTS
+ Tuin op het Zuiden
+ Energielabel A
+ Vier ruime slaapkamer
BUITENRUIMTE
De achtertuin heeft dankzij de open ligging veel lichtinval en privacy, is onderhoudsvriendelijk aangelegd en biedt volop ruimte voor een loungehoek, eettafel of speelplek. Achterin de tuin bevindt zich een berging voor fietsen en (tuin)gereedschap, met een praktische achterom via de berging naar het achterpad. Aan de voorzijde ligt een nette voortuin en in de directe omgeving is voldoende parkeergelegenheid aanwezig.
BEGANE GROND
Via de entree betreed je de hal met meterkast en een separaat toilet met fonteintje. De woonkamer is heerlijk licht dankzij de grote schuifpui aan de achterzijde en het extra zijraam, wat de hoekligging extra benadrukt. De rechthoekige indeling zorgt voor volop mogelijkheden om een comfortabele zit- en eetruimte te creëren. Aan de voorzijde van de woning bevindt zich de ruimte voor de keuken; er is momenteel geen keuken aanwezig, waardoor je alle vrijheid hebt om hier een keuken geheel naar eigen smaak en wensen te realiseren. De begane grond is casco opgeleverd en vormt daarmee een blanco basis voor het creëren van jouw ideale woonomgeving.
1e VERDIEPING
Op de eerste verdieping bevinden zich drie goed bemeten slaapkamers van circa 13m², 11m² en 7 m², waarvan twee aan de achterzijde en een aan de voorzijde zijn gelegen. De badkamer is compleet uitgevoerd en beschikt over een douche, ligbad, wastafel en een tweede toilet.
2e VERDIEPING OF ZOLDERVERDIEPING
De zolderverdieping is via een vaste trap toegankelijk en kenmerkt zich door de royale opzet en veelzijdige indeling. Hier is een volwaardige vierde kamer aanwezig, ideaal als extra slaapkamer, thuiswerkplek of hobbyruimte. Het dakraam zorgt voor prettige lichtinval en achter de knieschotten is praktische bergruimte gecreëerd. Op de overloop bevinden zich de aansluitingen voor de wasmachine en de opstelling van de cv-installatie.
OMGEVING
Deze woning ligt in een rustige straat in de populaire woonwijk Meerwede Zuid-West, waar comfort en bereikbaarheid samenkomen. Dagelijkse voorzieningen zoals winkelcentrum Carnisse Veste, basisscholen, kinderopvang en sportfaciliteiten bevinden zich op korte afstand. Dankzij de nabijgelegen tramverbinding ben je binnen ongeveer 30 minuten in het hart van Rotterdam.
Ook de bereikbaarheid met de auto is uitstekend, met snelle aansluitingen op de A15 en A29. Voor ontspanning in het groen hoef je niet ver te zoeken: het recreatiegebied langs de Oude Maas en de sfeervolle Carnisse Grienden liggen op fiets- en loopafstand en bieden volop mogelijkheden om te wandelen, fietsen en genieten van de natuur.
Klinkt dit als jouw ideale thuis? Loop alvast in 3D door de woning om alle ruimtes te bekijken en maak snel een afspraak voor een bezichtiging!
PLUSPUNTEN
+ Energielabel A
+ Tuin op het zuiden
+ Verschillende scholen, sportverenigingen en horecagelegenheden in de buurt
+ Helemaal naar eigen smaak te maken
+ Met tram is het centrum van Rotterdam in ca. 30 minuten te bereiken
+ Vier ruime slaapkamers
+ Goede parkeergelegenheid in de omgeving
+ Ruime tuin met berging en achterom
+ Uitvalswegen A15 en A29 zijn snel te bereiken
+ Voorzien van een grote schuifpui naar de tuin
BIJZONDERHEDEN
> De opgegeven kadastrale oppervlakte is een inschatting. Het perceel dient nog kadastraal
te worden uitgemeten, deze kosten komen voor rekening van de koper; kosten ca. €1050,-
> De niet-zelfbewoningsclausule zal worden opgenomen in de koopakte;
> Het transport geschiedt via vaste notaris Heldoorn Eggels/NotarisUnie uit Almere;
ouderdoms-, niet-bewoondclausule zijn van toepassing
OMGEVING
Benieuwd naar de omgeving? Bekijk alle voorzieningen onder het kopje ‘In de buurt’!
INTERESSE?
Dan nodigen we je uit om contact met ons op te nemen. We vertellen je graag meer over deze woning en zorgen ervoor dat je overige stukken en algemene voorwaarden verkopend makelaar digitaal via jouw persoonlijke Move account kunt bekijken.
ONZE TIP
Aankopen? Schakel jouw eigen NVM-aankoopmakelaar in! De NVM-aankoopmakelaar komt op voor jouw belang en bespaart je veel tijd, geld en zorgen. Adressen van collega NVM-aankoopmakelaars vind je op Funda.
De gegeven informatie is met zorgvuldigheid opgesteld, aan de juistheid kunnen echter geen rechten worden ontleend. Alle verstrekte informatie moet beschouwd worden als een uitnodiging tot het doen van een aanbod of om in onderhandeling te treden.
Beschrijving
Ruime eengezinswoning met vier slaapkamers
Deze eengezinswoning aan het Markermeer 15 biedt volop leefruimte, met vier slaapkamers, een royale zolderverdieping en een zonnige tuin op het zuiden. De woning is volledig naar eigen wens in te richten en vormt daarmee de ideale basis om er een persoonlijk en comfortabel thuis van te maken. Gelegen naast een speelplein in een rustige, groene woonwijk, met winkels, scholen, speeltuinen en openbaar vervoer op loopafstand, woon je hier centraal én prettig, met alle dagelijkse voorzieningen binnen handbereik.
HIGHLIGHTS
+ Tuin op het Zuiden
+ Energielabel A
+ Vier ruime slaapkamer
BUITENRUIMTE
De achtertuin heeft dankzij de open ligging veel lichtinval en privacy, is onderhoudsvriendelijk aangelegd en biedt volop ruimte voor een loungehoek, eettafel of speelplek. Achterin de tuin bevindt zich een berging voor fietsen en (tuin)gereedschap, met een praktische achterom via de berging naar het achterpad. Aan de voorzijde ligt een nette voortuin en in de directe omgeving is voldoende parkeergelegenheid aanwezig.
BEGANE GROND
Via de entree betreed je de hal met meterkast en een separaat toilet met fonteintje. De woonkamer is heerlijk licht dankzij de grote schuifpui aan de achterzijde en het extra zijraam, wat de hoekligging extra benadrukt. De rechthoekige indeling zorgt voor volop mogelijkheden om een comfortabele zit- en eetruimte te creëren. Aan de voorzijde van de woning bevindt zich de ruimte voor de keuken; er is momenteel geen keuken aanwezig, waardoor je alle vrijheid hebt om hier een keuken geheel naar eigen smaak en wensen te realiseren. De begane grond is casco opgeleverd en vormt daarmee een blanco basis voor het creëren van jouw ideale woonomgeving.
1e VERDIEPING
Op de eerste verdieping bevinden zich drie goed bemeten slaapkamers van circa 13m², 11m² en 7 m², waarvan twee aan de achterzijde en een aan de voorzijde zijn gelegen. De badkamer is compleet uitgevoerd en beschikt over een douche, ligbad, wastafel en een tweede toilet.
2e VERDIEPING OF ZOLDERVERDIEPING
De zolderverdieping is via een vaste trap toegankelijk en kenmerkt zich door de royale opzet en veelzijdige indeling. Hier is een volwaardige vierde kamer aanwezig, ideaal als extra slaapkamer, thuiswerkplek of hobbyruimte. Het dakraam zorgt voor prettige lichtinval en achter de knieschotten is praktische bergruimte gecreëerd. Op de overloop bevinden zich de aansluitingen voor de wasmachine en de opstelling van de cv-installatie.
OMGEVING
Deze woning ligt in een rustige straat in de populaire woonwijk Meerwede Zuid-West, waar comfort en bereikbaarheid samenkomen. Dagelijkse voorzieningen zoals winkelcentrum Carnisse Veste, basisscholen, kinderopvang en sportfaciliteiten bevinden zich op korte afstand. Dankzij de nabijgelegen tramverbinding ben je binnen ongeveer 30 minuten in het hart van Rotterdam.
Ook de bereikbaarheid met de auto is uitstekend, met snelle aansluitingen op de A15 en A29. Voor ontspanning in het groen hoef je niet ver te zoeken: het recreatiegebied langs de Oude Maas en de sfeervolle Carnisse Grienden liggen op fiets- en loopafstand en bieden volop mogelijkheden om te wandelen, fietsen en genieten van de natuur.
Klinkt dit als jouw ideale thuis? Loop alvast in 3D door de woning om alle ruimtes te bekijken en maak snel een afspraak voor een bezichtiging!
PLUSPUNTEN
+ Energielabel A
+ Tuin op het zuiden
+ Verschillende scholen, sportverenigingen en horecagelegenheden in de buurt
+ Helemaal naar eigen smaak te maken
+ Met tram is het centrum van Rotterdam in ca. 30 minuten te bereiken
+ Vier ruime slaapkamers
+ Goede parkeergelegenheid in de omgeving
+ Ruime tuin met berging en achterom
+ Uitvalswegen A15 en A29 zijn snel te bereiken
+ Voorzien van een grote schuifpui naar de tuin
BIJZONDERHEDEN
> De opgegeven kadastrale oppervlakte is een inschatting. Het perceel dient nog kadastraal
te worden uitgemeten, deze kosten komen voor rekening van de koper; kosten ca. €1050,-
> De niet-zelfbewoningsclausule zal worden opgenomen in de koopakte;
> Het transport geschiedt via vaste notaris Heldoorn Eggels/NotarisUnie uit Almere;
ouderdoms-, niet-bewoondclausule zijn van toepassing
OMGEVING
Benieuwd naar de omgeving? Bekijk alle voorzieningen onder het kopje ‘In de buurt’!
INTERESSE?
Dan nodigen we je uit om contact met ons op te nemen. We vertellen je graag meer over deze woning en zorgen ervoor dat je overige stukken en algemene voorwaarden verkopend makelaar digitaal via jouw persoonlijke Move account kunt bekijken.
ONZE TIP
Aankopen? Schakel jouw eigen NVM-aankoopmakelaar in! De NVM-aankoopmakelaar komt op voor jouw belang en bespaart je veel tijd, geld en zorgen. Adressen van collega NVM-aankoopmakelaars vind je op Funda.
De gegeven informatie is met zorgvuldigheid opgesteld, aan de juistheid kunnen echter geen rechten worden ontleend. Alle verstrekte informatie moet beschouwd worden als een uitnodiging tot het doen van een aanbod of om in onderhandeling te treden.
Deze eengezinswoning aan het Markermeer 15 biedt volop leefruimte, met vier slaapkamers, een royale zolderverdieping en een zonnige tuin op het zuiden. De woning is volledig naar eigen wens in te richten en vormt daarmee de ideale basis om er een persoonlijk en comfortabel thuis van te maken. Gelegen naast een speelplein in een rustige, groene woonwijk, met winkels, scholen, speeltuinen en openbaar vervoer op loopafstand, woon je hier centraal én prettig, met alle dagelijkse voorzieningen binnen handbereik.
HIGHLIGHTS
+ Tuin op het Zuiden
+ Energielabel A
+ Vier ruime slaapkamer
BUITENRUIMTE
De achtertuin heeft dankzij de open ligging veel lichtinval en privacy, is onderhoudsvriendelijk aangelegd en biedt volop ruimte voor een loungehoek, eettafel of speelplek. Achterin de tuin bevindt zich een berging voor fietsen en (tuin)gereedschap, met een praktische achterom via de berging naar het achterpad. Aan de voorzijde ligt een nette voortuin en in de directe omgeving is voldoende parkeergelegenheid aanwezig.
BEGANE GROND
Via de entree betreed je de hal met meterkast en een separaat toilet met fonteintje. De woonkamer is heerlijk licht dankzij de grote schuifpui aan de achterzijde en het extra zijraam, wat de hoekligging extra benadrukt. De rechthoekige indeling zorgt voor volop mogelijkheden om een comfortabele zit- en eetruimte te creëren. Aan de voorzijde van de woning bevindt zich de ruimte voor de keuken; er is momenteel geen keuken aanwezig, waardoor je alle vrijheid hebt om hier een keuken geheel naar eigen smaak en wensen te realiseren. De begane grond is casco opgeleverd en vormt daarmee een blanco basis voor het creëren van jouw ideale woonomgeving.
1e VERDIEPING
Op de eerste verdieping bevinden zich drie goed bemeten slaapkamers van circa 13m², 11m² en 7 m², waarvan twee aan de achterzijde en een aan de voorzijde zijn gelegen. De badkamer is compleet uitgevoerd en beschikt over een douche, ligbad, wastafel en een tweede toilet.
2e VERDIEPING OF ZOLDERVERDIEPING
De zolderverdieping is via een vaste trap toegankelijk en kenmerkt zich door de royale opzet en veelzijdige indeling. Hier is een volwaardige vierde kamer aanwezig, ideaal als extra slaapkamer, thuiswerkplek of hobbyruimte. Het dakraam zorgt voor prettige lichtinval en achter de knieschotten is praktische bergruimte gecreëerd. Op de overloop bevinden zich de aansluitingen voor de wasmachine en de opstelling van de cv-installatie.
OMGEVING
Deze woning ligt in een rustige straat in de populaire woonwijk Meerwede Zuid-West, waar comfort en bereikbaarheid samenkomen. Dagelijkse voorzieningen zoals winkelcentrum Carnisse Veste, basisscholen, kinderopvang en sportfaciliteiten bevinden zich op korte afstand. Dankzij de nabijgelegen tramverbinding ben je binnen ongeveer 30 minuten in het hart van Rotterdam.
Ook de bereikbaarheid met de auto is uitstekend, met snelle aansluitingen op de A15 en A29. Voor ontspanning in het groen hoef je niet ver te zoeken: het recreatiegebied langs de Oude Maas en de sfeervolle Carnisse Grienden liggen op fiets- en loopafstand en bieden volop mogelijkheden om te wandelen, fietsen en genieten van de natuur.
Klinkt dit als jouw ideale thuis? Loop alvast in 3D door de woning om alle ruimtes te bekijken en maak snel een afspraak voor een bezichtiging!
PLUSPUNTEN
+ Energielabel A
+ Tuin op het zuiden
+ Verschillende scholen, sportverenigingen en horecagelegenheden in de buurt
+ Helemaal naar eigen smaak te maken
+ Met tram is het centrum van Rotterdam in ca. 30 minuten te bereiken
+ Vier ruime slaapkamers
+ Goede parkeergelegenheid in de omgeving
+ Ruime tuin met berging en achterom
+ Uitvalswegen A15 en A29 zijn snel te bereiken
+ Voorzien van een grote schuifpui naar de tuin
BIJZONDERHEDEN
> De opgegeven kadastrale oppervlakte is een inschatting. Het perceel dient nog kadastraal
te worden uitgemeten, deze kosten komen voor rekening van de koper; kosten ca. €1050,-
> De niet-zelfbewoningsclausule zal worden opgenomen in de koopakte;
> Het transport geschiedt via vaste notaris Heldoorn Eggels/NotarisUnie uit Almere;
ouderdoms-, niet-bewoondclausule zijn van toepassing
OMGEVING
Benieuwd naar de omgeving? Bekijk alle voorzieningen onder het kopje ‘In de buurt’!
INTERESSE?
Dan nodigen we je uit om contact met ons op te nemen. We vertellen je graag meer over deze woning en zorgen ervoor dat je overige stukken en algemene voorwaarden verkopend makelaar digitaal via jouw persoonlijke Move account kunt bekijken.
ONZE TIP
Aankopen? Schakel jouw eigen NVM-aankoopmakelaar in! De NVM-aankoopmakelaar komt op voor jouw belang en bespaart je veel tijd, geld en zorgen. Adressen van collega NVM-aankoopmakelaars vind je op Funda.
De gegeven informatie is met zorgvuldigheid opgesteld, aan de juistheid kunnen echter geen rechten worden ontleend. Alle verstrekte informatie moet beschouwd worden als een uitnodiging tot het doen van een aanbod of om in onderhandeling te treden.
powered by Friva | Lees ons Privacybeleid














































