ZOETERMEER - De Leyens
€ 650.000
Brechtzijde 13
5 Kamers
1 Badkamers
4 Slaapkamers
165 m²
A
Achtertuin
Bezichtiging aanvragen
Beschrijving
Royale hoekwoning aan het water met serre, carport en energielabel A
Deze ruime hoek-eengezinswoning combineert energiezuinig wonen met veel leefruimte, een stijlvolle afwerking en een heerlijke ligging aan het water. Dankzij de warmtepomp, zonnepanelen, vloerverwarming en vernieuwde daken is het huis volledig voorbereid op de toekomst.
De serre aan de achterzijde, de royale woonkamer en de vier slaapkamers maken dit een woning waar je jarenlang met plezier woont. Parkeren doe je gemakkelijk op je eigen oprit onder de carport.
HIGHLIGHTS
+ Energiezuinig wonen met warmtepomp en 21 zonnepanelen
+ Serre aan de achterzijde
+ Vier ruime slaapkamers en parkeren op eigen erf onder carport
BEGANE GROND
Aan de voorzijde beschik je over een eigen parkeerplaats onder de carport, direct grenzend aan de voortuin. Vanuit hier heb je toegang tot de inpandige berging en de entree van de woning.
Binnen kom je in een ruime hal met plavuizen vloer, toegang tot de berging, de meterkast en de toiletruimte. De hardhouten trap brengt je naar de verdieping.
De royale woonkamer heeft een strakke afwerking, plavuizen met vloerverwarming en fijne lichtinval. Aan de achterzijde is de volledig afsluitbare serre aangebouwd, een ideale plek als extra zit- of speelruimte. De keuken ligt aan de voorzijde en is ingericht in een praktische u-opstelling, voorzien van onder andere een elektrische kookplaat.
De achtertuin ligt op het westen en biedt veel sfeer. Achterin is een verlaagd zitgedeelte aan het water gemaakt: een rustige plek waar je het hele jaar door kunt genieten van het uitzicht. Verder is er een houten berging aanwezig.
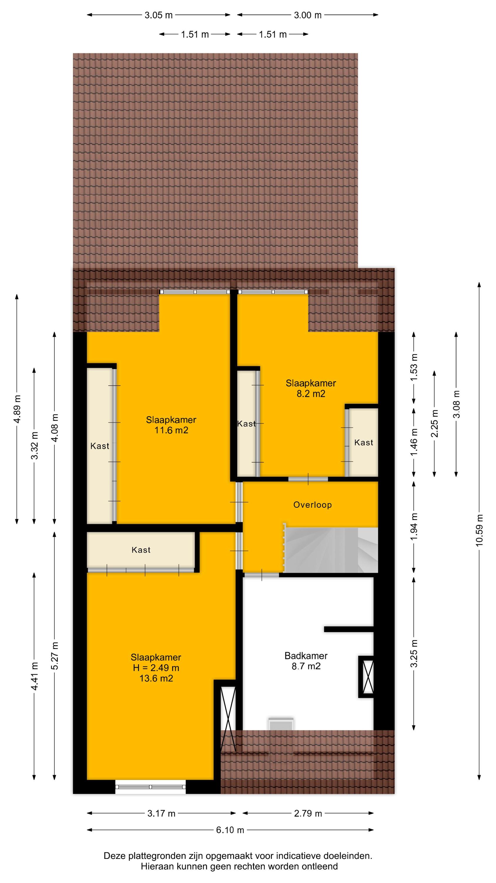
1e VERDIEPING
De overloop geeft toegang tot drie ruime slaapkamers, allemaal voorzien van vaste kasten, kunststof kozijnen en rolluiken. De afwerking is strak en goed onderhouden. Ook hier is vloerverwarming aanwezig.
De volledig betegelde badkamer is uitgerust met een inloopdouche, hoekbad, wastafelmeubel, toilet en wasmachineaansluiting.
2e VERDIEPING / ZOLDER
Op deze verdieping vind je de overloop met bergruimte en de technische ruimte met de opstelling van de warmtepomp en boiler, de cv-ketel, mechanische ventilatie en de omvormer van de 21 zonnepanelen. Daarnaast is er een leuke zolderkamer met dakkapel, ideaal als extra slaap-, werk- of hobbykamer.
OMGEVING
Deze woning ligt in een rustige, groene straat in de wijk De Leyens. De achtertuin grenst direct aan het water, wat zorgt voor een prettig en vrij gevoel. In de buurt vind je diverse scholen, winkels, openbaar vervoer, sportvoorzieningen en speeltuinen. Ook de uitvalswegen en het Stadshart zijn goed bereikbaar, waardoor je centraal woont maar toch in alle rust.
Klinkt dit als jouw ideale thuis? Loop alvast in 3D door de woning en maak snel een afspraak voor een bezichtiging!
PLUSPUNTEN
+ Energielabel A
+ Warmtepomp en 21 zonnepanelen
+ Parkeren op eigen erf onder carport
+ Laadpaal voor elektrische auto aanwezig
+ Vloerverwarming op begane grond en badkamer
+ Serre aan de achterzijde
+ Achtertuin aan het water met verlaagd zitgedeelte
+ Diverse daken vernieuwd
+ Kunststof kozijnen met rolluiken
+ Vier ruime slaapkamers
ouderdoms-, asbest en loodclausule zijn van toepassing
OMGEVING
Benieuwd naar de omgeving? Bekijk alle voorzieningen onder het kopje ‘In de buurt’!
INTERESSE?
Dan nodigen we je uit om contact met ons op te nemen. We vertellen je graag meer over deze woning en zorgen ervoor dat je overige stukken en algemene voorwaarden verkopend makelaar digitaal via jouw persoonlijke Move account kunt bekijken.
ONZE TIP
Aankopen? Schakel jouw eigen NVM-aankoopmakelaar in! De NVM-aankoopmakelaar komt op voor jouw belang en bespaart je veel tijd, geld en zorgen. Adressen van collega NVM-aankoopmakelaars vind je op Funda.
De gegeven informatie is met zorgvuldigheid opgesteld, aan de juistheid kunnen echter geen rechten worden ontleend. Alle verstrekte informatie moet beschouwd worden als een uitnodiging tot het doen van een aanbod of om in onderhandeling te treden.
Deze ruime hoek-eengezinswoning combineert energiezuinig wonen met veel leefruimte, een stijlvolle afwerking en een heerlijke ligging aan het water. Dankzij de warmtepomp, zonnepanelen, vloerverwarming en vernieuwde daken is het huis volledig voorbereid op de toekomst.
De serre aan de achterzijde, de royale woonkamer en de vier slaapkamers maken dit een woning waar je jarenlang met plezier woont. Parkeren doe je gemakkelijk op je eigen oprit onder de carport.
HIGHLIGHTS
+ Energiezuinig wonen met warmtepomp en 21 zonnepanelen
+ Serre aan de achterzijde
+ Vier ruime slaapkamers en parkeren op eigen erf onder carport
BEGANE GROND
Aan de voorzijde beschik je over een eigen parkeerplaats onder de carport, direct grenzend aan de voortuin. Vanuit hier heb je toegang tot de inpandige berging en de entree van de woning.
Binnen kom je in een ruime hal met plavuizen vloer, toegang tot de berging, de meterkast en de toiletruimte. De hardhouten trap brengt je naar de verdieping.
De royale woonkamer heeft een strakke afwerking, plavuizen met vloerverwarming en fijne lichtinval. Aan de achterzijde is de volledig afsluitbare serre aangebouwd, een ideale plek als extra zit- of speelruimte. De keuken ligt aan de voorzijde en is ingericht in een praktische u-opstelling, voorzien van onder andere een elektrische kookplaat.
De achtertuin ligt op het westen en biedt veel sfeer. Achterin is een verlaagd zitgedeelte aan het water gemaakt: een rustige plek waar je het hele jaar door kunt genieten van het uitzicht. Verder is er een houten berging aanwezig.
1e VERDIEPING
De overloop geeft toegang tot drie ruime slaapkamers, allemaal voorzien van vaste kasten, kunststof kozijnen en rolluiken. De afwerking is strak en goed onderhouden. Ook hier is vloerverwarming aanwezig.
De volledig betegelde badkamer is uitgerust met een inloopdouche, hoekbad, wastafelmeubel, toilet en wasmachineaansluiting.
2e VERDIEPING / ZOLDER
Op deze verdieping vind je de overloop met bergruimte en de technische ruimte met de opstelling van de warmtepomp en boiler, de cv-ketel, mechanische ventilatie en de omvormer van de 21 zonnepanelen. Daarnaast is er een leuke zolderkamer met dakkapel, ideaal als extra slaap-, werk- of hobbykamer.
OMGEVING
Deze woning ligt in een rustige, groene straat in de wijk De Leyens. De achtertuin grenst direct aan het water, wat zorgt voor een prettig en vrij gevoel. In de buurt vind je diverse scholen, winkels, openbaar vervoer, sportvoorzieningen en speeltuinen. Ook de uitvalswegen en het Stadshart zijn goed bereikbaar, waardoor je centraal woont maar toch in alle rust.
Klinkt dit als jouw ideale thuis? Loop alvast in 3D door de woning en maak snel een afspraak voor een bezichtiging!
PLUSPUNTEN
+ Energielabel A
+ Warmtepomp en 21 zonnepanelen
+ Parkeren op eigen erf onder carport
+ Laadpaal voor elektrische auto aanwezig
+ Vloerverwarming op begane grond en badkamer
+ Serre aan de achterzijde
+ Achtertuin aan het water met verlaagd zitgedeelte
+ Diverse daken vernieuwd
+ Kunststof kozijnen met rolluiken
+ Vier ruime slaapkamers
ouderdoms-, asbest en loodclausule zijn van toepassing
OMGEVING
Benieuwd naar de omgeving? Bekijk alle voorzieningen onder het kopje ‘In de buurt’!
INTERESSE?
Dan nodigen we je uit om contact met ons op te nemen. We vertellen je graag meer over deze woning en zorgen ervoor dat je overige stukken en algemene voorwaarden verkopend makelaar digitaal via jouw persoonlijke Move account kunt bekijken.
ONZE TIP
Aankopen? Schakel jouw eigen NVM-aankoopmakelaar in! De NVM-aankoopmakelaar komt op voor jouw belang en bespaart je veel tijd, geld en zorgen. Adressen van collega NVM-aankoopmakelaars vind je op Funda.
De gegeven informatie is met zorgvuldigheid opgesteld, aan de juistheid kunnen echter geen rechten worden ontleend. Alle verstrekte informatie moet beschouwd worden als een uitnodiging tot het doen van een aanbod of om in onderhandeling te treden.
Beschrijving
Royale hoekwoning aan het water met serre, carport en energielabel A
Deze ruime hoek-eengezinswoning combineert energiezuinig wonen met veel leefruimte, een stijlvolle afwerking en een heerlijke ligging aan het water. Dankzij de warmtepomp, zonnepanelen, vloerverwarming en vernieuwde daken is het huis volledig voorbereid op de toekomst.
De serre aan de achterzijde, de royale woonkamer en de vier slaapkamers maken dit een woning waar je jarenlang met plezier woont. Parkeren doe je gemakkelijk op je eigen oprit onder de carport.
HIGHLIGHTS
+ Energiezuinig wonen met warmtepomp en 21 zonnepanelen
+ Serre aan de achterzijde
+ Vier ruime slaapkamers en parkeren op eigen erf onder carport
BEGANE GROND
Aan de voorzijde beschik je over een eigen parkeerplaats onder de carport, direct grenzend aan de voortuin. Vanuit hier heb je toegang tot de inpandige berging en de entree van de woning.
Binnen kom je in een ruime hal met plavuizen vloer, toegang tot de berging, de meterkast en de toiletruimte. De hardhouten trap brengt je naar de verdieping.
De royale woonkamer heeft een strakke afwerking, plavuizen met vloerverwarming en fijne lichtinval. Aan de achterzijde is de volledig afsluitbare serre aangebouwd, een ideale plek als extra zit- of speelruimte. De keuken ligt aan de voorzijde en is ingericht in een praktische u-opstelling, voorzien van onder andere een elektrische kookplaat.
De achtertuin ligt op het westen en biedt veel sfeer. Achterin is een verlaagd zitgedeelte aan het water gemaakt: een rustige plek waar je het hele jaar door kunt genieten van het uitzicht. Verder is er een houten berging aanwezig.
1e VERDIEPING
De overloop geeft toegang tot drie ruime slaapkamers, allemaal voorzien van vaste kasten, kunststof kozijnen en rolluiken. De afwerking is strak en goed onderhouden. Ook hier is vloerverwarming aanwezig.
De volledig betegelde badkamer is uitgerust met een inloopdouche, hoekbad, wastafelmeubel, toilet en wasmachineaansluiting.
2e VERDIEPING / ZOLDER
Op deze verdieping vind je de overloop met bergruimte en de technische ruimte met de opstelling van de warmtepomp en boiler, de cv-ketel, mechanische ventilatie en de omvormer van de 21 zonnepanelen. Daarnaast is er een leuke zolderkamer met dakkapel, ideaal als extra slaap-, werk- of hobbykamer.
OMGEVING
Deze woning ligt in een rustige, groene straat in de wijk De Leyens. De achtertuin grenst direct aan het water, wat zorgt voor een prettig en vrij gevoel. In de buurt vind je diverse scholen, winkels, openbaar vervoer, sportvoorzieningen en speeltuinen. Ook de uitvalswegen en het Stadshart zijn goed bereikbaar, waardoor je centraal woont maar toch in alle rust.
Klinkt dit als jouw ideale thuis? Loop alvast in 3D door de woning en maak snel een afspraak voor een bezichtiging!
PLUSPUNTEN
+ Energielabel A
+ Warmtepomp en 21 zonnepanelen
+ Parkeren op eigen erf onder carport
+ Laadpaal voor elektrische auto aanwezig
+ Vloerverwarming op begane grond en badkamer
+ Serre aan de achterzijde
+ Achtertuin aan het water met verlaagd zitgedeelte
+ Diverse daken vernieuwd
+ Kunststof kozijnen met rolluiken
+ Vier ruime slaapkamers
ouderdoms-, asbest en loodclausule zijn van toepassing
OMGEVING
Benieuwd naar de omgeving? Bekijk alle voorzieningen onder het kopje ‘In de buurt’!
INTERESSE?
Dan nodigen we je uit om contact met ons op te nemen. We vertellen je graag meer over deze woning en zorgen ervoor dat je overige stukken en algemene voorwaarden verkopend makelaar digitaal via jouw persoonlijke Move account kunt bekijken.
ONZE TIP
Aankopen? Schakel jouw eigen NVM-aankoopmakelaar in! De NVM-aankoopmakelaar komt op voor jouw belang en bespaart je veel tijd, geld en zorgen. Adressen van collega NVM-aankoopmakelaars vind je op Funda.
De gegeven informatie is met zorgvuldigheid opgesteld, aan de juistheid kunnen echter geen rechten worden ontleend. Alle verstrekte informatie moet beschouwd worden als een uitnodiging tot het doen van een aanbod of om in onderhandeling te treden.
Deze ruime hoek-eengezinswoning combineert energiezuinig wonen met veel leefruimte, een stijlvolle afwerking en een heerlijke ligging aan het water. Dankzij de warmtepomp, zonnepanelen, vloerverwarming en vernieuwde daken is het huis volledig voorbereid op de toekomst.
De serre aan de achterzijde, de royale woonkamer en de vier slaapkamers maken dit een woning waar je jarenlang met plezier woont. Parkeren doe je gemakkelijk op je eigen oprit onder de carport.
HIGHLIGHTS
+ Energiezuinig wonen met warmtepomp en 21 zonnepanelen
+ Serre aan de achterzijde
+ Vier ruime slaapkamers en parkeren op eigen erf onder carport
BEGANE GROND
Aan de voorzijde beschik je over een eigen parkeerplaats onder de carport, direct grenzend aan de voortuin. Vanuit hier heb je toegang tot de inpandige berging en de entree van de woning.
Binnen kom je in een ruime hal met plavuizen vloer, toegang tot de berging, de meterkast en de toiletruimte. De hardhouten trap brengt je naar de verdieping.
De royale woonkamer heeft een strakke afwerking, plavuizen met vloerverwarming en fijne lichtinval. Aan de achterzijde is de volledig afsluitbare serre aangebouwd, een ideale plek als extra zit- of speelruimte. De keuken ligt aan de voorzijde en is ingericht in een praktische u-opstelling, voorzien van onder andere een elektrische kookplaat.
De achtertuin ligt op het westen en biedt veel sfeer. Achterin is een verlaagd zitgedeelte aan het water gemaakt: een rustige plek waar je het hele jaar door kunt genieten van het uitzicht. Verder is er een houten berging aanwezig.
1e VERDIEPING
De overloop geeft toegang tot drie ruime slaapkamers, allemaal voorzien van vaste kasten, kunststof kozijnen en rolluiken. De afwerking is strak en goed onderhouden. Ook hier is vloerverwarming aanwezig.
De volledig betegelde badkamer is uitgerust met een inloopdouche, hoekbad, wastafelmeubel, toilet en wasmachineaansluiting.
2e VERDIEPING / ZOLDER
Op deze verdieping vind je de overloop met bergruimte en de technische ruimte met de opstelling van de warmtepomp en boiler, de cv-ketel, mechanische ventilatie en de omvormer van de 21 zonnepanelen. Daarnaast is er een leuke zolderkamer met dakkapel, ideaal als extra slaap-, werk- of hobbykamer.
OMGEVING
Deze woning ligt in een rustige, groene straat in de wijk De Leyens. De achtertuin grenst direct aan het water, wat zorgt voor een prettig en vrij gevoel. In de buurt vind je diverse scholen, winkels, openbaar vervoer, sportvoorzieningen en speeltuinen. Ook de uitvalswegen en het Stadshart zijn goed bereikbaar, waardoor je centraal woont maar toch in alle rust.
Klinkt dit als jouw ideale thuis? Loop alvast in 3D door de woning en maak snel een afspraak voor een bezichtiging!
PLUSPUNTEN
+ Energielabel A
+ Warmtepomp en 21 zonnepanelen
+ Parkeren op eigen erf onder carport
+ Laadpaal voor elektrische auto aanwezig
+ Vloerverwarming op begane grond en badkamer
+ Serre aan de achterzijde
+ Achtertuin aan het water met verlaagd zitgedeelte
+ Diverse daken vernieuwd
+ Kunststof kozijnen met rolluiken
+ Vier ruime slaapkamers
ouderdoms-, asbest en loodclausule zijn van toepassing
OMGEVING
Benieuwd naar de omgeving? Bekijk alle voorzieningen onder het kopje ‘In de buurt’!
INTERESSE?
Dan nodigen we je uit om contact met ons op te nemen. We vertellen je graag meer over deze woning en zorgen ervoor dat je overige stukken en algemene voorwaarden verkopend makelaar digitaal via jouw persoonlijke Move account kunt bekijken.
ONZE TIP
Aankopen? Schakel jouw eigen NVM-aankoopmakelaar in! De NVM-aankoopmakelaar komt op voor jouw belang en bespaart je veel tijd, geld en zorgen. Adressen van collega NVM-aankoopmakelaars vind je op Funda.
De gegeven informatie is met zorgvuldigheid opgesteld, aan de juistheid kunnen echter geen rechten worden ontleend. Alle verstrekte informatie moet beschouwd worden als een uitnodiging tot het doen van een aanbod of om in onderhandeling te treden.
powered by Friva | Lees ons Privacybeleid




































































































































