ZOETERMEER
€ 450.000
Vuurdoornpark 14
3 Kamers
1 Badkamers
2 Slaapkamers
108 m²
C
Onbekend
Bezichtiging aanvragen
Beschrijving
Instapklare hoekmaisonnette met inpandige garage en vernieuwde badkamer
Welkom bij Vuurdoornpark 14 in Zoetermeer – een instapklare en karakteristieke hoekmaisonnette, gebouwd onder architectuur van Carel Weber. Deze woning is recent vrijwel volledig opgeknapt: strak gestucte wanden en plafonds, nieuw laminaat, opnieuw beklede trap, een moderne badkamer én een vernieuwd toilet. Met een royale inpandige garage, twee volwaardige slaapkamers en de mogelijkheid om op de begane grond te slapen, is dit een veelzijdige woning die zowel geschikt is voor starters, doorstromers als mensen die comfortabel willen wonen.
De woning ligt aan een rustig en groen stadspark en beschikt over een ruim balkon op het zuiden met een vrij uitzicht op Park Seghwaert. Dankzij de hoekligging en het optimale lichtinval is dit een heerlijke, frisse en instapklare woonomgeving.
HIGHLIGHTS
+ Instapklare hoekmaisonnette
+ Inpandige garage met elektra, water en verwarming
+ Recent volledig opgeknapt (keuken uitgezonderd)
BEGANE GROND
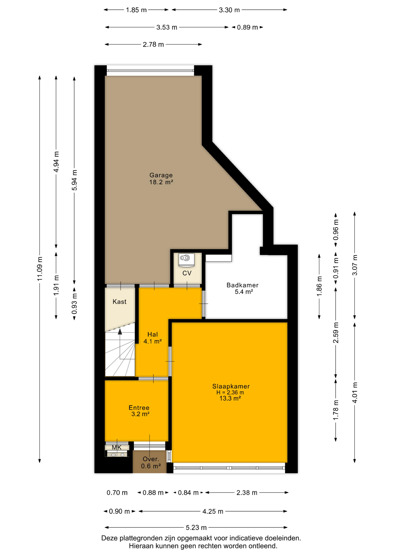
De entree bevindt zich direct aan de achterzijde. De woning heeft een eigen toegang op de begane grond en beschikt over een royale inpandige garage die zowel via buiten als via de woning toegankelijk is. Dit maakt het ideaal voor hobbyruimte, werken aan huis of het stallen van een auto of motor.
Via de hal en trapopgang bereik je direct alle functionele ruimtes. Aan de voorzijde bevindt zich slaapkamer 1, waardoor slapen op de begane grond moeiteloos mogelijk is. In de vaste kast naast de trap bevindt zich de stookruimte met Cv-installatie. Aan de achterzijde vind je de interne doorgang naar de ruime inpandige garage, voorzien van elektra, verwarming en water – een uitzonderlijke plus voor wie extra werkruimte zoekt.
De recent compleet vernieuwde badkamer is een echte eyecatcher: strak afgewerkt en uitgerust met een inloopdouche, ligbad, toilet en wastafelmeubel, uitgevoerd in een neutrale, moderne kleurstelling.
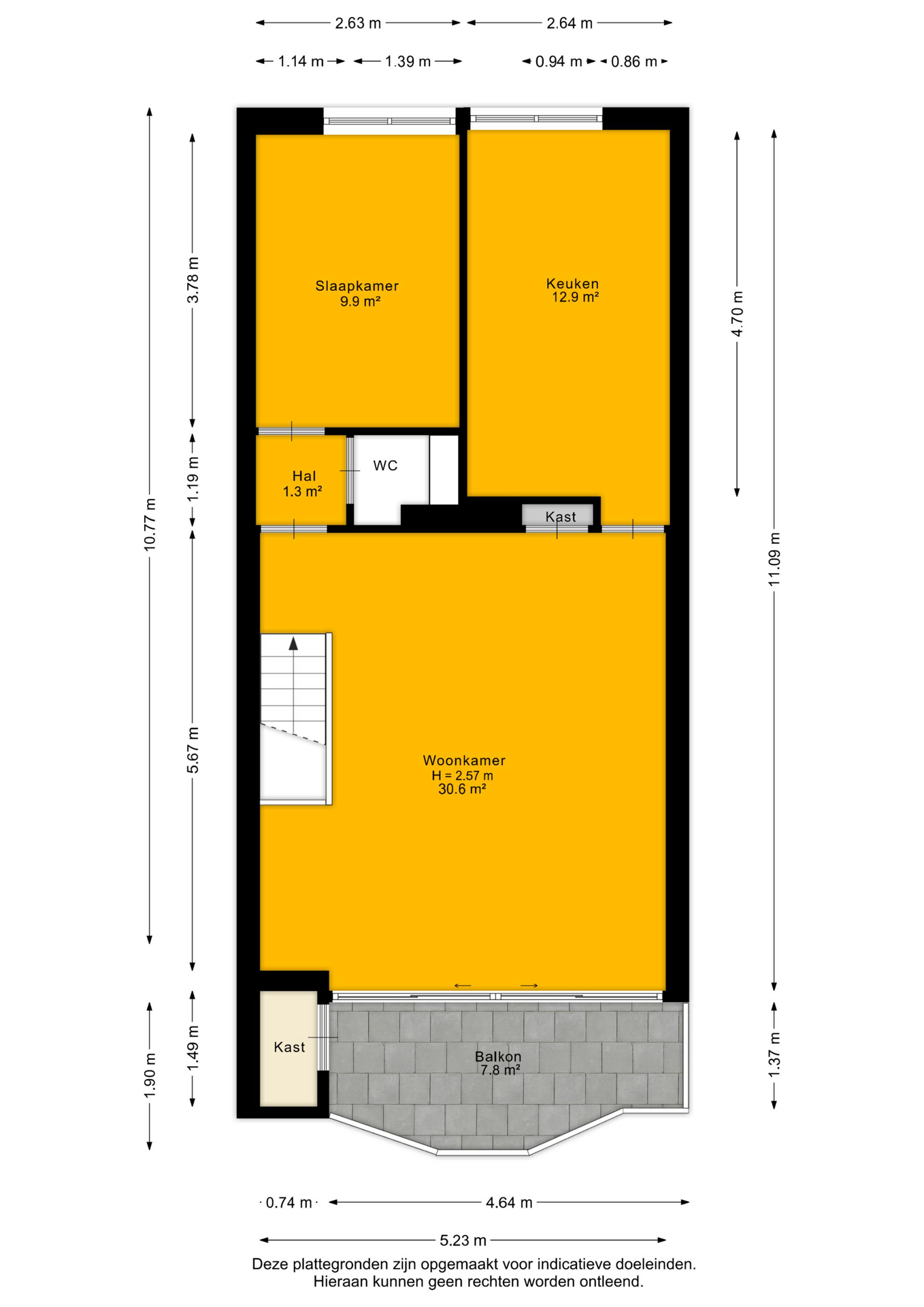
EERSTE VERDIEPING
De ruime woonkamer valt direct op door de heerlijke lichtinval en het vrije uitzicht op het groen. De grote aluminium schuifpui geeft toegang tot het balkon op het zuiden, een fantastische plek om te genieten van zon en rust met zicht op Park Seghwaert.
Aan de achterzijde bevindt zich de keuken, voorzien van inbouwapparatuur en met ruimte om een gezellige eetplek te creëren. Daarnaast bevindt zich hier slaapkamer 2, ideaal als master bedroom, werk- of logeerkamer. Het recent vernieuwd toilet op deze verdieping maakt het plaatje compleet.
Klinkt dit als jouw ideale thuis? Loop alvast in 3D door de woning om alle ruimtes te bekijken en maak snel een afspraak voor een bezichtiging!
PLUSPUNTEN
+ Instapklare hoekmaisonnette
+ Inpandige garage met elektra, water en verwarming
+ Gerenoveerde badkamer met inloopdouche, ligbad en wastafel
+ Woonkamer met veel licht en vrij uitzicht
+ Nieuw toilet, nieuwe vloeren en wanden/plafonds volledig gestuct
+ Mogelijkheid voor slapen op de begane grond
+ Ruim balkon op het zuiden met vrij uitzicht op park Seghwaert
+ Kunststof kozijnen en aluminium schuifpui
+ Per direct beschikbaar
+ Actieve VvE
+ Rustige, groene ligging aan wijkpark
BIJZONDERHEDEN
> Ouderdoms- en asbestclausule zijn van toepassing
> Woonoppervlakte ca. 87 m2 is exclusief overige inpandige ruimte (garage) van ca. 21 m2
OMGEVING
Benieuwd naar de omgeving? Bekijk alle voorzieningen onder het kopje ‘In de buurt’!
INTERESSE? Dan nodigen we je uit om contact met ons op te nemen. We vertellen je graag meer over deze woning en zorgen ervoor dat je overige stukken en algemene voorwaarden verkopend makelaar digitaal via jouw persoonlijke Move account kunt bekijken.
ONZE TIP
Aankopen? Schakel jouw eigen NVM-aankoopmakelaar in! De NVM-aankoopmakelaar komt op voor jouw belang en bespaart je veel tijd, geld en zorgen. Adressen van collega NVM-aankoopmakelaars vind je op Funda.
De gegeven informatie is met zorgvuldigheid opgesteld, aan de juistheid kunnen echter geen rechten worden ontleend. Alle verstrekte informatie moet beschouwd worden als een uitnodiging tot het doen van een aanbod of om in onderhandeling te treden.
Welkom bij Vuurdoornpark 14 in Zoetermeer – een instapklare en karakteristieke hoekmaisonnette, gebouwd onder architectuur van Carel Weber. Deze woning is recent vrijwel volledig opgeknapt: strak gestucte wanden en plafonds, nieuw laminaat, opnieuw beklede trap, een moderne badkamer én een vernieuwd toilet. Met een royale inpandige garage, twee volwaardige slaapkamers en de mogelijkheid om op de begane grond te slapen, is dit een veelzijdige woning die zowel geschikt is voor starters, doorstromers als mensen die comfortabel willen wonen.
De woning ligt aan een rustig en groen stadspark en beschikt over een ruim balkon op het zuiden met een vrij uitzicht op Park Seghwaert. Dankzij de hoekligging en het optimale lichtinval is dit een heerlijke, frisse en instapklare woonomgeving.
HIGHLIGHTS
+ Instapklare hoekmaisonnette
+ Inpandige garage met elektra, water en verwarming
+ Recent volledig opgeknapt (keuken uitgezonderd)
BEGANE GROND
De entree bevindt zich direct aan de achterzijde. De woning heeft een eigen toegang op de begane grond en beschikt over een royale inpandige garage die zowel via buiten als via de woning toegankelijk is. Dit maakt het ideaal voor hobbyruimte, werken aan huis of het stallen van een auto of motor.
Via de hal en trapopgang bereik je direct alle functionele ruimtes. Aan de voorzijde bevindt zich slaapkamer 1, waardoor slapen op de begane grond moeiteloos mogelijk is. In de vaste kast naast de trap bevindt zich de stookruimte met Cv-installatie. Aan de achterzijde vind je de interne doorgang naar de ruime inpandige garage, voorzien van elektra, verwarming en water – een uitzonderlijke plus voor wie extra werkruimte zoekt.
De recent compleet vernieuwde badkamer is een echte eyecatcher: strak afgewerkt en uitgerust met een inloopdouche, ligbad, toilet en wastafelmeubel, uitgevoerd in een neutrale, moderne kleurstelling.
EERSTE VERDIEPING
De ruime woonkamer valt direct op door de heerlijke lichtinval en het vrije uitzicht op het groen. De grote aluminium schuifpui geeft toegang tot het balkon op het zuiden, een fantastische plek om te genieten van zon en rust met zicht op Park Seghwaert.
Aan de achterzijde bevindt zich de keuken, voorzien van inbouwapparatuur en met ruimte om een gezellige eetplek te creëren. Daarnaast bevindt zich hier slaapkamer 2, ideaal als master bedroom, werk- of logeerkamer. Het recent vernieuwd toilet op deze verdieping maakt het plaatje compleet.
Klinkt dit als jouw ideale thuis? Loop alvast in 3D door de woning om alle ruimtes te bekijken en maak snel een afspraak voor een bezichtiging!
PLUSPUNTEN
+ Instapklare hoekmaisonnette
+ Inpandige garage met elektra, water en verwarming
+ Gerenoveerde badkamer met inloopdouche, ligbad en wastafel
+ Woonkamer met veel licht en vrij uitzicht
+ Nieuw toilet, nieuwe vloeren en wanden/plafonds volledig gestuct
+ Mogelijkheid voor slapen op de begane grond
+ Ruim balkon op het zuiden met vrij uitzicht op park Seghwaert
+ Kunststof kozijnen en aluminium schuifpui
+ Per direct beschikbaar
+ Actieve VvE
+ Rustige, groene ligging aan wijkpark
BIJZONDERHEDEN
> Ouderdoms- en asbestclausule zijn van toepassing
> Woonoppervlakte ca. 87 m2 is exclusief overige inpandige ruimte (garage) van ca. 21 m2
OMGEVING
Benieuwd naar de omgeving? Bekijk alle voorzieningen onder het kopje ‘In de buurt’!
INTERESSE? Dan nodigen we je uit om contact met ons op te nemen. We vertellen je graag meer over deze woning en zorgen ervoor dat je overige stukken en algemene voorwaarden verkopend makelaar digitaal via jouw persoonlijke Move account kunt bekijken.
ONZE TIP
Aankopen? Schakel jouw eigen NVM-aankoopmakelaar in! De NVM-aankoopmakelaar komt op voor jouw belang en bespaart je veel tijd, geld en zorgen. Adressen van collega NVM-aankoopmakelaars vind je op Funda.
De gegeven informatie is met zorgvuldigheid opgesteld, aan de juistheid kunnen echter geen rechten worden ontleend. Alle verstrekte informatie moet beschouwd worden als een uitnodiging tot het doen van een aanbod of om in onderhandeling te treden.
Beschrijving
Instapklare hoekmaisonnette met inpandige garage en vernieuwde badkamer
Welkom bij Vuurdoornpark 14 in Zoetermeer – een instapklare en karakteristieke hoekmaisonnette, gebouwd onder architectuur van Carel Weber. Deze woning is recent vrijwel volledig opgeknapt: strak gestucte wanden en plafonds, nieuw laminaat, opnieuw beklede trap, een moderne badkamer én een vernieuwd toilet. Met een royale inpandige garage, twee volwaardige slaapkamers en de mogelijkheid om op de begane grond te slapen, is dit een veelzijdige woning die zowel geschikt is voor starters, doorstromers als mensen die comfortabel willen wonen.
De woning ligt aan een rustig en groen stadspark en beschikt over een ruim balkon op het zuiden met een vrij uitzicht op Park Seghwaert. Dankzij de hoekligging en het optimale lichtinval is dit een heerlijke, frisse en instapklare woonomgeving.
HIGHLIGHTS
+ Instapklare hoekmaisonnette
+ Inpandige garage met elektra, water en verwarming
+ Recent volledig opgeknapt (keuken uitgezonderd)
BEGANE GROND
De entree bevindt zich direct aan de achterzijde. De woning heeft een eigen toegang op de begane grond en beschikt over een royale inpandige garage die zowel via buiten als via de woning toegankelijk is. Dit maakt het ideaal voor hobbyruimte, werken aan huis of het stallen van een auto of motor.
Via de hal en trapopgang bereik je direct alle functionele ruimtes. Aan de voorzijde bevindt zich slaapkamer 1, waardoor slapen op de begane grond moeiteloos mogelijk is. In de vaste kast naast de trap bevindt zich de stookruimte met Cv-installatie. Aan de achterzijde vind je de interne doorgang naar de ruime inpandige garage, voorzien van elektra, verwarming en water – een uitzonderlijke plus voor wie extra werkruimte zoekt.
De recent compleet vernieuwde badkamer is een echte eyecatcher: strak afgewerkt en uitgerust met een inloopdouche, ligbad, toilet en wastafelmeubel, uitgevoerd in een neutrale, moderne kleurstelling.
EERSTE VERDIEPING
De ruime woonkamer valt direct op door de heerlijke lichtinval en het vrije uitzicht op het groen. De grote aluminium schuifpui geeft toegang tot het balkon op het zuiden, een fantastische plek om te genieten van zon en rust met zicht op Park Seghwaert.
Aan de achterzijde bevindt zich de keuken, voorzien van inbouwapparatuur en met ruimte om een gezellige eetplek te creëren. Daarnaast bevindt zich hier slaapkamer 2, ideaal als master bedroom, werk- of logeerkamer. Het recent vernieuwd toilet op deze verdieping maakt het plaatje compleet.
Klinkt dit als jouw ideale thuis? Loop alvast in 3D door de woning om alle ruimtes te bekijken en maak snel een afspraak voor een bezichtiging!
PLUSPUNTEN
+ Instapklare hoekmaisonnette
+ Inpandige garage met elektra, water en verwarming
+ Gerenoveerde badkamer met inloopdouche, ligbad en wastafel
+ Woonkamer met veel licht en vrij uitzicht
+ Nieuw toilet, nieuwe vloeren en wanden/plafonds volledig gestuct
+ Mogelijkheid voor slapen op de begane grond
+ Ruim balkon op het zuiden met vrij uitzicht op park Seghwaert
+ Kunststof kozijnen en aluminium schuifpui
+ Per direct beschikbaar
+ Actieve VvE
+ Rustige, groene ligging aan wijkpark
BIJZONDERHEDEN
> Ouderdoms- en asbestclausule zijn van toepassing
> Woonoppervlakte ca. 87 m2 is exclusief overige inpandige ruimte (garage) van ca. 21 m2
OMGEVING
Benieuwd naar de omgeving? Bekijk alle voorzieningen onder het kopje ‘In de buurt’!
INTERESSE? Dan nodigen we je uit om contact met ons op te nemen. We vertellen je graag meer over deze woning en zorgen ervoor dat je overige stukken en algemene voorwaarden verkopend makelaar digitaal via jouw persoonlijke Move account kunt bekijken.
ONZE TIP
Aankopen? Schakel jouw eigen NVM-aankoopmakelaar in! De NVM-aankoopmakelaar komt op voor jouw belang en bespaart je veel tijd, geld en zorgen. Adressen van collega NVM-aankoopmakelaars vind je op Funda.
De gegeven informatie is met zorgvuldigheid opgesteld, aan de juistheid kunnen echter geen rechten worden ontleend. Alle verstrekte informatie moet beschouwd worden als een uitnodiging tot het doen van een aanbod of om in onderhandeling te treden.
Welkom bij Vuurdoornpark 14 in Zoetermeer – een instapklare en karakteristieke hoekmaisonnette, gebouwd onder architectuur van Carel Weber. Deze woning is recent vrijwel volledig opgeknapt: strak gestucte wanden en plafonds, nieuw laminaat, opnieuw beklede trap, een moderne badkamer én een vernieuwd toilet. Met een royale inpandige garage, twee volwaardige slaapkamers en de mogelijkheid om op de begane grond te slapen, is dit een veelzijdige woning die zowel geschikt is voor starters, doorstromers als mensen die comfortabel willen wonen.
De woning ligt aan een rustig en groen stadspark en beschikt over een ruim balkon op het zuiden met een vrij uitzicht op Park Seghwaert. Dankzij de hoekligging en het optimale lichtinval is dit een heerlijke, frisse en instapklare woonomgeving.
HIGHLIGHTS
+ Instapklare hoekmaisonnette
+ Inpandige garage met elektra, water en verwarming
+ Recent volledig opgeknapt (keuken uitgezonderd)
BEGANE GROND
De entree bevindt zich direct aan de achterzijde. De woning heeft een eigen toegang op de begane grond en beschikt over een royale inpandige garage die zowel via buiten als via de woning toegankelijk is. Dit maakt het ideaal voor hobbyruimte, werken aan huis of het stallen van een auto of motor.
Via de hal en trapopgang bereik je direct alle functionele ruimtes. Aan de voorzijde bevindt zich slaapkamer 1, waardoor slapen op de begane grond moeiteloos mogelijk is. In de vaste kast naast de trap bevindt zich de stookruimte met Cv-installatie. Aan de achterzijde vind je de interne doorgang naar de ruime inpandige garage, voorzien van elektra, verwarming en water – een uitzonderlijke plus voor wie extra werkruimte zoekt.
De recent compleet vernieuwde badkamer is een echte eyecatcher: strak afgewerkt en uitgerust met een inloopdouche, ligbad, toilet en wastafelmeubel, uitgevoerd in een neutrale, moderne kleurstelling.
EERSTE VERDIEPING
De ruime woonkamer valt direct op door de heerlijke lichtinval en het vrije uitzicht op het groen. De grote aluminium schuifpui geeft toegang tot het balkon op het zuiden, een fantastische plek om te genieten van zon en rust met zicht op Park Seghwaert.
Aan de achterzijde bevindt zich de keuken, voorzien van inbouwapparatuur en met ruimte om een gezellige eetplek te creëren. Daarnaast bevindt zich hier slaapkamer 2, ideaal als master bedroom, werk- of logeerkamer. Het recent vernieuwd toilet op deze verdieping maakt het plaatje compleet.
Klinkt dit als jouw ideale thuis? Loop alvast in 3D door de woning om alle ruimtes te bekijken en maak snel een afspraak voor een bezichtiging!
PLUSPUNTEN
+ Instapklare hoekmaisonnette
+ Inpandige garage met elektra, water en verwarming
+ Gerenoveerde badkamer met inloopdouche, ligbad en wastafel
+ Woonkamer met veel licht en vrij uitzicht
+ Nieuw toilet, nieuwe vloeren en wanden/plafonds volledig gestuct
+ Mogelijkheid voor slapen op de begane grond
+ Ruim balkon op het zuiden met vrij uitzicht op park Seghwaert
+ Kunststof kozijnen en aluminium schuifpui
+ Per direct beschikbaar
+ Actieve VvE
+ Rustige, groene ligging aan wijkpark
BIJZONDERHEDEN
> Ouderdoms- en asbestclausule zijn van toepassing
> Woonoppervlakte ca. 87 m2 is exclusief overige inpandige ruimte (garage) van ca. 21 m2
OMGEVING
Benieuwd naar de omgeving? Bekijk alle voorzieningen onder het kopje ‘In de buurt’!
INTERESSE? Dan nodigen we je uit om contact met ons op te nemen. We vertellen je graag meer over deze woning en zorgen ervoor dat je overige stukken en algemene voorwaarden verkopend makelaar digitaal via jouw persoonlijke Move account kunt bekijken.
ONZE TIP
Aankopen? Schakel jouw eigen NVM-aankoopmakelaar in! De NVM-aankoopmakelaar komt op voor jouw belang en bespaart je veel tijd, geld en zorgen. Adressen van collega NVM-aankoopmakelaars vind je op Funda.
De gegeven informatie is met zorgvuldigheid opgesteld, aan de juistheid kunnen echter geen rechten worden ontleend. Alle verstrekte informatie moet beschouwd worden als een uitnodiging tot het doen van een aanbod of om in onderhandeling te treden.
powered by Friva | Lees ons Privacybeleid





















































