ROTTERDAM - Hillesluis
€ 250.000
Groene Hilledijk 192-B 02
3 Kamers
1 Badkamers
2 Slaapkamers
74 m²
C
Onbekend
Bezichtiging plannen
Beschrijving
Ruime bovenwoning met balkon en energielabel C
Deze verrassend ruime bovenwoning is verdeeld over twee woonlagen en beschikt over twee slaapkamers en een fijn balkon aan de achterzijde. De lichte woonkamer met open keuken vormt het hart van de woning.
De woning is netjes onderhouden, voorzien van een nieuwe combiketel uit 2024 en beschikt over energielabel C. Daarbij zijn de kozijnen recent geschilderd en is het buitenschilderwerk volledig hersteld.
Een praktische en prettige woning op eigen grond, ideaal voor wie centraal wil wonen met alle voorzieningen binnen handbereik.
HIGHLIGHTS
+ Verrassend ruime bovenwoning verdeeld over twee woonlagen
+ Balkon aan de achterzijde
+ Combiketel uit 2024
GEZAMENLIJKE RUIMTE
Middels de gedeelde entree met trapopgang toegang tot de twee bovenwoningen.
INDELING
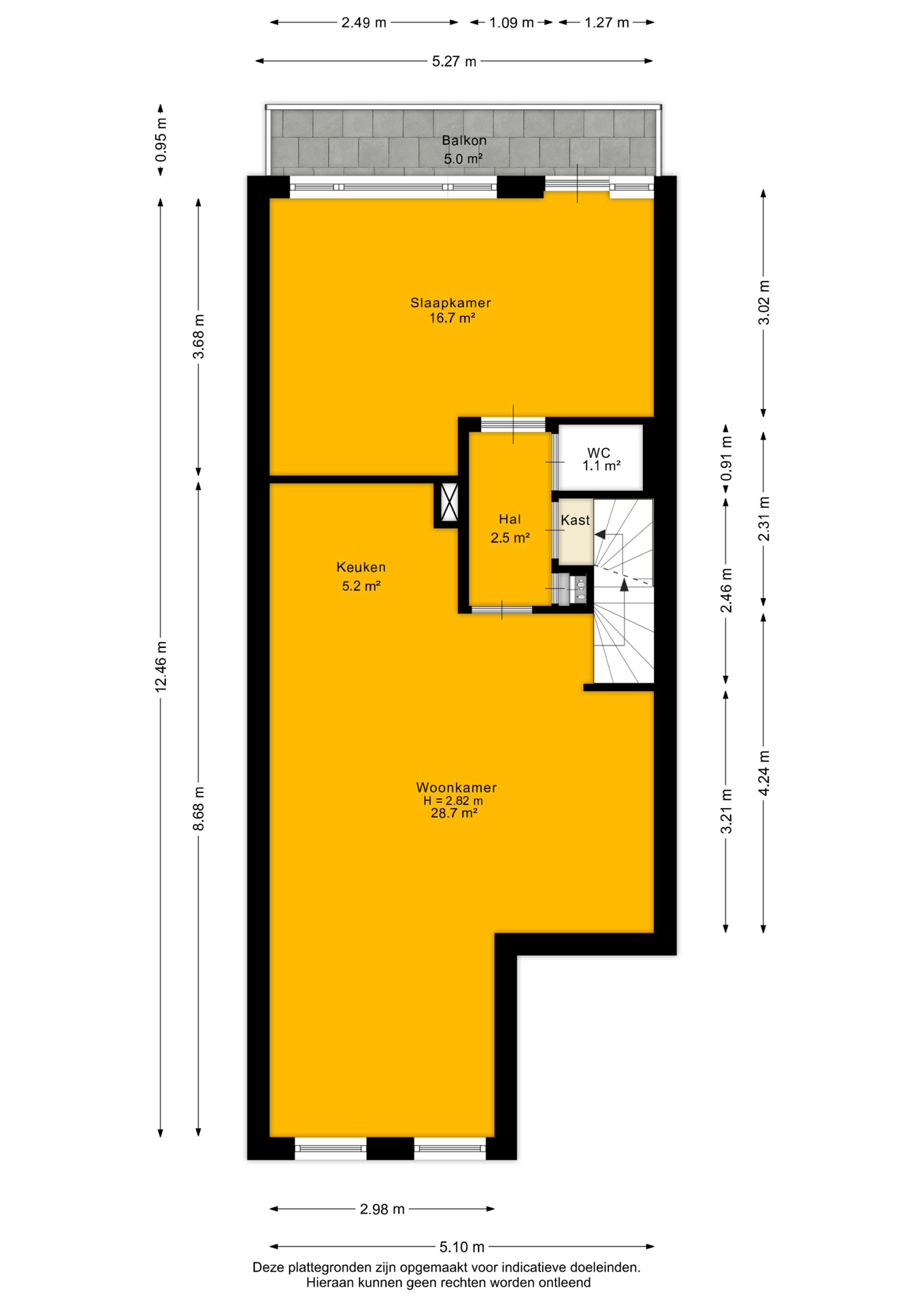
Via de gedeelde entree bereik je de woning op de tweede verdieping. De hal vormt hier het centrale punt en biedt toegang tot alle vertrekken. Aan de voorzijde bevindt zich de lichte woonkamer met open keuken, waar het daglicht royaal binnenvalt en je een prettig uitzicht hebt over de levendige Boulevard-Zuid.
De open keuken sluit naadloos aan op de woonkamer en is verzorgd uitgevoerd, ideaal voor dagelijks gebruik.
Aan de rustige achterzijde ligt de eerste slaapkamer, met directe toegang tot het balkon. Dit balkon is gelegen op het zuidoosten en vormt een fijne plek om in alle rust van de ochtendzon te genieten. Op deze verdieping bevindt zich tevens het separate toilet.
Via de vaste trap in de hal kom je op de derde verdieping. Hier bevindt zich de tweede slaapkamer, eveneens aan de achterzijde van de woning, wat zorgt voor extra rust en privacy. Dankzij de dakkapel is deze verdieping aangenaam licht en verrassend ruim.
De royale badkamer is praktisch ingericht en voorzien van een ligbad met douchevoorziening, een wastafel en een extra toilet. Op de overloop is bovendien een vaste kast aanwezig met de opstelling van de recent vernieuwde combiketel.
OMGEVING
Je woont hier in een levendig en steeds populairder deel van Rotterdam-Zuid, met winkels, horeca en openbaar vervoer op loopafstand. Hotspots zoals de Kop van Zuid, Katendrecht en de Afrikaanderwijk liggen dichtbij.
Metro- en tramhaltes zijn om de hoek, waardoor je binnen enkele minuten in het centrum staat. Extra bijzonder is de watertaxi om de hoek, waarbij fietsen eenvoudig mee kunnen.
Zo ben je binnen circa 20 minuten aan de overkant bij de Esch. Ook de uitvalswegen richting de A15 en A16 zijn goed bereikbaar.
Klinkt dit als jouw ideale thuis? Loop alvast in 3D door de woning om alle ruimtes te bekijken en maak snel een afspraak voor een bezichtiging!
PLUSPUNTEN
+ Verzorgde en instapklare bovenwoning
+ Recent buitenschilderwerk, kozijnen geschilderd en onderhouden
+ Openbaar vervoer (tram en bus) om de hoek
+ Prettig lichtinval in woonkamer en slaapkamers
+ Verdeling over twee woonlagen met speelse indeling
+ Open keuken met gasfornuis en afzuigkap
+ Snelle verbinding naar Rotterdam Centrum
+ Badkamer ruim opgezet en volledig betegeld
+ Verwarming en warm water via nieuwe combiketel (2024)
+ Keuken in lichte kleurstelling met nette afwerking
+ Energielabel C
+ Watertaxi om de hoek, fietsen kunnen mee
+ Snelle verbinding naar Rotterdam Centrum en De Esch
BIJZONDERHEDEN
> VvE bijdrage €120,- per maand
ouderdoms-, asbest en loodclausule zijn van toepassing
OMGEVING
Benieuwd naar de omgeving? Bekijk alle voorzieningen onder het kopje ‘In de buurt’!
INTERESSE?
Dan nodigen we je uit om contact met ons op te nemen. We vertellen je graag meer over deze woning en zorgen ervoor dat je overige stukken en algemene voorwaarden verkopend makelaar digitaal via jouw persoonlijke Move account kunt bekijken.
ONZE TIP
Aankopen? Schakel jouw eigen NVM-aankoopmakelaar in! De NVM-aankoopmakelaar komt op voor jouw belang en bespaart je veel tijd, geld en zorgen. Adressen van collega NVM-aankoopmakelaars vind je op Funda.
De gegeven informatie is met zorgvuldigheid opgesteld, aan de juistheid kunnen echter geen rechten worden ontleend. Alle verstrekte informatie moet beschouwd worden als een uitnodiging tot het doen van een aanbod of om in onderhandeling te treden.
Deze verrassend ruime bovenwoning is verdeeld over twee woonlagen en beschikt over twee slaapkamers en een fijn balkon aan de achterzijde. De lichte woonkamer met open keuken vormt het hart van de woning.
De woning is netjes onderhouden, voorzien van een nieuwe combiketel uit 2024 en beschikt over energielabel C. Daarbij zijn de kozijnen recent geschilderd en is het buitenschilderwerk volledig hersteld.
Een praktische en prettige woning op eigen grond, ideaal voor wie centraal wil wonen met alle voorzieningen binnen handbereik.
HIGHLIGHTS
+ Verrassend ruime bovenwoning verdeeld over twee woonlagen
+ Balkon aan de achterzijde
+ Combiketel uit 2024
GEZAMENLIJKE RUIMTE
Middels de gedeelde entree met trapopgang toegang tot de twee bovenwoningen.
INDELING
Via de gedeelde entree bereik je de woning op de tweede verdieping. De hal vormt hier het centrale punt en biedt toegang tot alle vertrekken. Aan de voorzijde bevindt zich de lichte woonkamer met open keuken, waar het daglicht royaal binnenvalt en je een prettig uitzicht hebt over de levendige Boulevard-Zuid.
De open keuken sluit naadloos aan op de woonkamer en is verzorgd uitgevoerd, ideaal voor dagelijks gebruik.
Aan de rustige achterzijde ligt de eerste slaapkamer, met directe toegang tot het balkon. Dit balkon is gelegen op het zuidoosten en vormt een fijne plek om in alle rust van de ochtendzon te genieten. Op deze verdieping bevindt zich tevens het separate toilet.
Via de vaste trap in de hal kom je op de derde verdieping. Hier bevindt zich de tweede slaapkamer, eveneens aan de achterzijde van de woning, wat zorgt voor extra rust en privacy. Dankzij de dakkapel is deze verdieping aangenaam licht en verrassend ruim.
De royale badkamer is praktisch ingericht en voorzien van een ligbad met douchevoorziening, een wastafel en een extra toilet. Op de overloop is bovendien een vaste kast aanwezig met de opstelling van de recent vernieuwde combiketel.
OMGEVING
Je woont hier in een levendig en steeds populairder deel van Rotterdam-Zuid, met winkels, horeca en openbaar vervoer op loopafstand. Hotspots zoals de Kop van Zuid, Katendrecht en de Afrikaanderwijk liggen dichtbij.
Metro- en tramhaltes zijn om de hoek, waardoor je binnen enkele minuten in het centrum staat. Extra bijzonder is de watertaxi om de hoek, waarbij fietsen eenvoudig mee kunnen.
Zo ben je binnen circa 20 minuten aan de overkant bij de Esch. Ook de uitvalswegen richting de A15 en A16 zijn goed bereikbaar.
Klinkt dit als jouw ideale thuis? Loop alvast in 3D door de woning om alle ruimtes te bekijken en maak snel een afspraak voor een bezichtiging!
PLUSPUNTEN
+ Verzorgde en instapklare bovenwoning
+ Recent buitenschilderwerk, kozijnen geschilderd en onderhouden
+ Openbaar vervoer (tram en bus) om de hoek
+ Prettig lichtinval in woonkamer en slaapkamers
+ Verdeling over twee woonlagen met speelse indeling
+ Open keuken met gasfornuis en afzuigkap
+ Snelle verbinding naar Rotterdam Centrum
+ Badkamer ruim opgezet en volledig betegeld
+ Verwarming en warm water via nieuwe combiketel (2024)
+ Keuken in lichte kleurstelling met nette afwerking
+ Energielabel C
+ Watertaxi om de hoek, fietsen kunnen mee
+ Snelle verbinding naar Rotterdam Centrum en De Esch
BIJZONDERHEDEN
> VvE bijdrage €120,- per maand
ouderdoms-, asbest en loodclausule zijn van toepassing
OMGEVING
Benieuwd naar de omgeving? Bekijk alle voorzieningen onder het kopje ‘In de buurt’!
INTERESSE?
Dan nodigen we je uit om contact met ons op te nemen. We vertellen je graag meer over deze woning en zorgen ervoor dat je overige stukken en algemene voorwaarden verkopend makelaar digitaal via jouw persoonlijke Move account kunt bekijken.
ONZE TIP
Aankopen? Schakel jouw eigen NVM-aankoopmakelaar in! De NVM-aankoopmakelaar komt op voor jouw belang en bespaart je veel tijd, geld en zorgen. Adressen van collega NVM-aankoopmakelaars vind je op Funda.
De gegeven informatie is met zorgvuldigheid opgesteld, aan de juistheid kunnen echter geen rechten worden ontleend. Alle verstrekte informatie moet beschouwd worden als een uitnodiging tot het doen van een aanbod of om in onderhandeling te treden.
Beschrijving
Ruime bovenwoning met balkon en energielabel C
Deze verrassend ruime bovenwoning is verdeeld over twee woonlagen en beschikt over twee slaapkamers en een fijn balkon aan de achterzijde. De lichte woonkamer met open keuken vormt het hart van de woning.
De woning is netjes onderhouden, voorzien van een nieuwe combiketel uit 2024 en beschikt over energielabel C. Daarbij zijn de kozijnen recent geschilderd en is het buitenschilderwerk volledig hersteld.
Een praktische en prettige woning op eigen grond, ideaal voor wie centraal wil wonen met alle voorzieningen binnen handbereik.
HIGHLIGHTS
+ Verrassend ruime bovenwoning verdeeld over twee woonlagen
+ Balkon aan de achterzijde
+ Combiketel uit 2024
GEZAMENLIJKE RUIMTE
Middels de gedeelde entree met trapopgang toegang tot de twee bovenwoningen.
INDELING
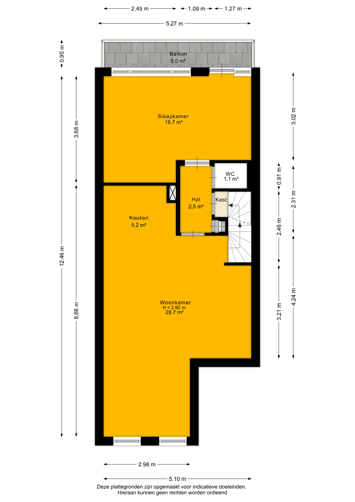
Via de gedeelde entree bereik je de woning op de tweede verdieping. De hal vormt hier het centrale punt en biedt toegang tot alle vertrekken. Aan de voorzijde bevindt zich de lichte woonkamer met open keuken, waar het daglicht royaal binnenvalt en je een prettig uitzicht hebt over de levendige Boulevard-Zuid.
De open keuken sluit naadloos aan op de woonkamer en is verzorgd uitgevoerd, ideaal voor dagelijks gebruik.
Aan de rustige achterzijde ligt de eerste slaapkamer, met directe toegang tot het balkon. Dit balkon is gelegen op het zuidoosten en vormt een fijne plek om in alle rust van de ochtendzon te genieten. Op deze verdieping bevindt zich tevens het separate toilet.
Via de vaste trap in de hal kom je op de derde verdieping. Hier bevindt zich de tweede slaapkamer, eveneens aan de achterzijde van de woning, wat zorgt voor extra rust en privacy. Dankzij de dakkapel is deze verdieping aangenaam licht en verrassend ruim.
De royale badkamer is praktisch ingericht en voorzien van een ligbad met douchevoorziening, een wastafel en een extra toilet. Op de overloop is bovendien een vaste kast aanwezig met de opstelling van de recent vernieuwde combiketel.
OMGEVING
Je woont hier in een levendig en steeds populairder deel van Rotterdam-Zuid, met winkels, horeca en openbaar vervoer op loopafstand. Hotspots zoals de Kop van Zuid, Katendrecht en de Afrikaanderwijk liggen dichtbij.
Metro- en tramhaltes zijn om de hoek, waardoor je binnen enkele minuten in het centrum staat. Extra bijzonder is de watertaxi om de hoek, waarbij fietsen eenvoudig mee kunnen.
Zo ben je binnen circa 20 minuten aan de overkant bij de Esch. Ook de uitvalswegen richting de A15 en A16 zijn goed bereikbaar.
Klinkt dit als jouw ideale thuis? Loop alvast in 3D door de woning om alle ruimtes te bekijken en maak snel een afspraak voor een bezichtiging!
PLUSPUNTEN
+ Verzorgde en instapklare bovenwoning
+ Recent buitenschilderwerk, kozijnen geschilderd en onderhouden
+ Openbaar vervoer (tram en bus) om de hoek
+ Prettig lichtinval in woonkamer en slaapkamers
+ Verdeling over twee woonlagen met speelse indeling
+ Open keuken met gasfornuis en afzuigkap
+ Snelle verbinding naar Rotterdam Centrum
+ Badkamer ruim opgezet en volledig betegeld
+ Verwarming en warm water via nieuwe combiketel (2024)
+ Keuken in lichte kleurstelling met nette afwerking
+ Energielabel C
+ Watertaxi om de hoek, fietsen kunnen mee
+ Snelle verbinding naar Rotterdam Centrum en De Esch
BIJZONDERHEDEN
> VvE bijdrage €120,- per maand
ouderdoms-, asbest en loodclausule zijn van toepassing
OMGEVING
Benieuwd naar de omgeving? Bekijk alle voorzieningen onder het kopje ‘In de buurt’!
INTERESSE?
Dan nodigen we je uit om contact met ons op te nemen. We vertellen je graag meer over deze woning en zorgen ervoor dat je overige stukken en algemene voorwaarden verkopend makelaar digitaal via jouw persoonlijke Move account kunt bekijken.
ONZE TIP
Aankopen? Schakel jouw eigen NVM-aankoopmakelaar in! De NVM-aankoopmakelaar komt op voor jouw belang en bespaart je veel tijd, geld en zorgen. Adressen van collega NVM-aankoopmakelaars vind je op Funda.
De gegeven informatie is met zorgvuldigheid opgesteld, aan de juistheid kunnen echter geen rechten worden ontleend. Alle verstrekte informatie moet beschouwd worden als een uitnodiging tot het doen van een aanbod of om in onderhandeling te treden.
Deze verrassend ruime bovenwoning is verdeeld over twee woonlagen en beschikt over twee slaapkamers en een fijn balkon aan de achterzijde. De lichte woonkamer met open keuken vormt het hart van de woning.
De woning is netjes onderhouden, voorzien van een nieuwe combiketel uit 2024 en beschikt over energielabel C. Daarbij zijn de kozijnen recent geschilderd en is het buitenschilderwerk volledig hersteld.
Een praktische en prettige woning op eigen grond, ideaal voor wie centraal wil wonen met alle voorzieningen binnen handbereik.
HIGHLIGHTS
+ Verrassend ruime bovenwoning verdeeld over twee woonlagen
+ Balkon aan de achterzijde
+ Combiketel uit 2024
GEZAMENLIJKE RUIMTE
Middels de gedeelde entree met trapopgang toegang tot de twee bovenwoningen.
INDELING
Via de gedeelde entree bereik je de woning op de tweede verdieping. De hal vormt hier het centrale punt en biedt toegang tot alle vertrekken. Aan de voorzijde bevindt zich de lichte woonkamer met open keuken, waar het daglicht royaal binnenvalt en je een prettig uitzicht hebt over de levendige Boulevard-Zuid.
De open keuken sluit naadloos aan op de woonkamer en is verzorgd uitgevoerd, ideaal voor dagelijks gebruik.
Aan de rustige achterzijde ligt de eerste slaapkamer, met directe toegang tot het balkon. Dit balkon is gelegen op het zuidoosten en vormt een fijne plek om in alle rust van de ochtendzon te genieten. Op deze verdieping bevindt zich tevens het separate toilet.
Via de vaste trap in de hal kom je op de derde verdieping. Hier bevindt zich de tweede slaapkamer, eveneens aan de achterzijde van de woning, wat zorgt voor extra rust en privacy. Dankzij de dakkapel is deze verdieping aangenaam licht en verrassend ruim.
De royale badkamer is praktisch ingericht en voorzien van een ligbad met douchevoorziening, een wastafel en een extra toilet. Op de overloop is bovendien een vaste kast aanwezig met de opstelling van de recent vernieuwde combiketel.
OMGEVING
Je woont hier in een levendig en steeds populairder deel van Rotterdam-Zuid, met winkels, horeca en openbaar vervoer op loopafstand. Hotspots zoals de Kop van Zuid, Katendrecht en de Afrikaanderwijk liggen dichtbij.
Metro- en tramhaltes zijn om de hoek, waardoor je binnen enkele minuten in het centrum staat. Extra bijzonder is de watertaxi om de hoek, waarbij fietsen eenvoudig mee kunnen.
Zo ben je binnen circa 20 minuten aan de overkant bij de Esch. Ook de uitvalswegen richting de A15 en A16 zijn goed bereikbaar.
Klinkt dit als jouw ideale thuis? Loop alvast in 3D door de woning om alle ruimtes te bekijken en maak snel een afspraak voor een bezichtiging!
PLUSPUNTEN
+ Verzorgde en instapklare bovenwoning
+ Recent buitenschilderwerk, kozijnen geschilderd en onderhouden
+ Openbaar vervoer (tram en bus) om de hoek
+ Prettig lichtinval in woonkamer en slaapkamers
+ Verdeling over twee woonlagen met speelse indeling
+ Open keuken met gasfornuis en afzuigkap
+ Snelle verbinding naar Rotterdam Centrum
+ Badkamer ruim opgezet en volledig betegeld
+ Verwarming en warm water via nieuwe combiketel (2024)
+ Keuken in lichte kleurstelling met nette afwerking
+ Energielabel C
+ Watertaxi om de hoek, fietsen kunnen mee
+ Snelle verbinding naar Rotterdam Centrum en De Esch
BIJZONDERHEDEN
> VvE bijdrage €120,- per maand
ouderdoms-, asbest en loodclausule zijn van toepassing
OMGEVING
Benieuwd naar de omgeving? Bekijk alle voorzieningen onder het kopje ‘In de buurt’!
INTERESSE?
Dan nodigen we je uit om contact met ons op te nemen. We vertellen je graag meer over deze woning en zorgen ervoor dat je overige stukken en algemene voorwaarden verkopend makelaar digitaal via jouw persoonlijke Move account kunt bekijken.
ONZE TIP
Aankopen? Schakel jouw eigen NVM-aankoopmakelaar in! De NVM-aankoopmakelaar komt op voor jouw belang en bespaart je veel tijd, geld en zorgen. Adressen van collega NVM-aankoopmakelaars vind je op Funda.
De gegeven informatie is met zorgvuldigheid opgesteld, aan de juistheid kunnen echter geen rechten worden ontleend. Alle verstrekte informatie moet beschouwd worden als een uitnodiging tot het doen van een aanbod of om in onderhandeling te treden.
powered by Friva | Lees ons Privacybeleid




























