DORDRECHT
€ 275.000
Houweningestraat 64
4 Kamers
1 Badkamers
3 Slaapkamers
96 m²
D
Onbekend
Bezichtiging aanvragen
Beschrijving
Ruime bovenwoning, naar eigen wens af te werken!
In de geliefde wijk Land van Valk in Dordrecht ligt deze ruime bovenwoning, die je geheel naar eigen wens kunt afwerken. De woning heeft al een solide basis: funderingsherstel is uitgevoerd, er is een cv-systeem met eigen ketel aanwezig en de woning is voor een groot deel voorzien van kunststof kozijnen met dubbel glas. Dankzij de royale ruimtes, hoge plafonds en originele details biedt dit huis alle ingrediënten om te transformeren tot een sfeervol, comfortabel thuis.
HIGHLIGHTS
+ Ruime bovenwoning
+ Gedeeltelijk kunststof kozijnen, geheel dubbelglas
+ Kluswoning, maar goede basis
INDELING
Eigen entree op de begane grond met trapopgang naar de woonverdieping en meterkast.
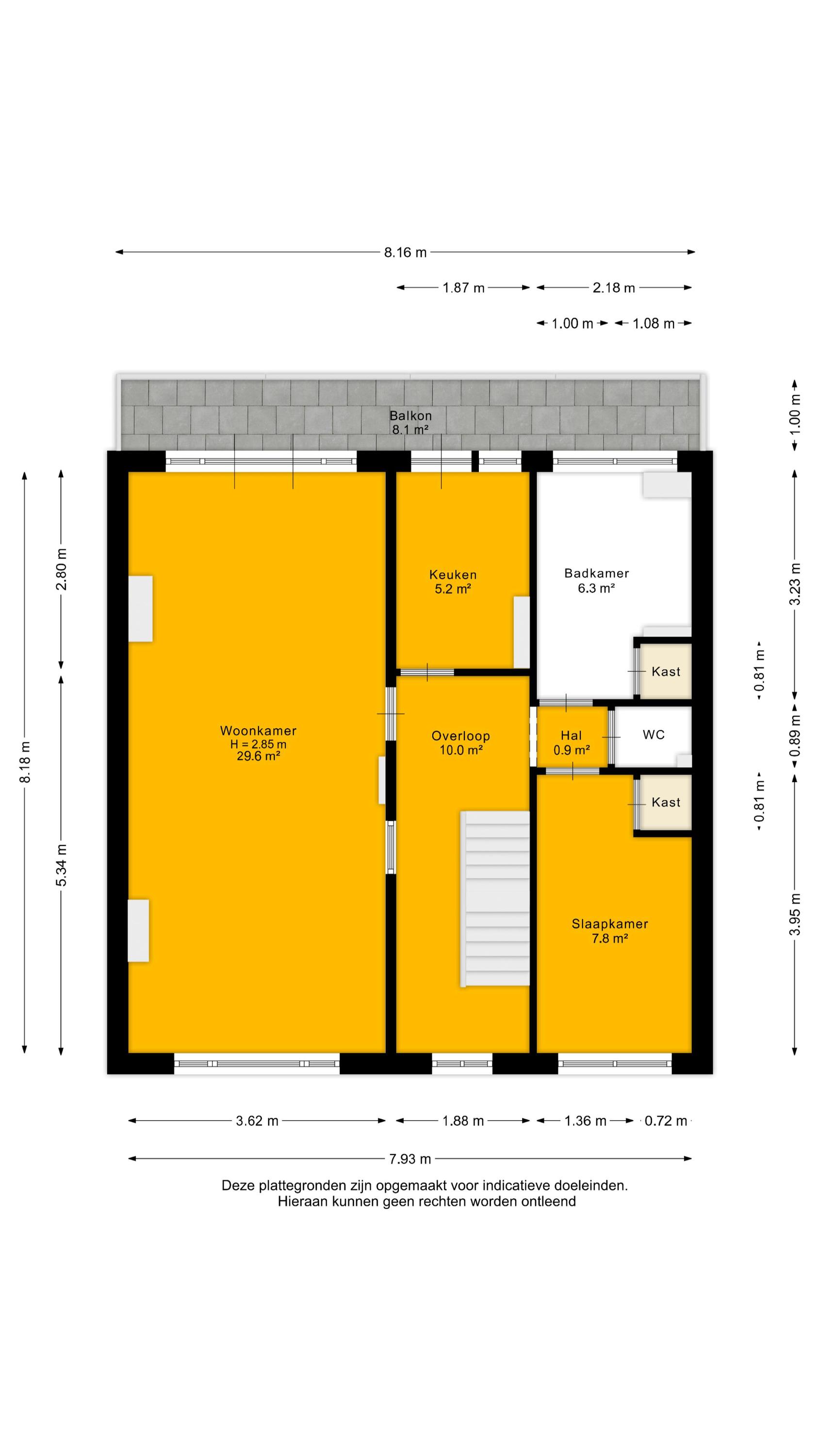
EERSTE VERDIEPING
Ruime overloop met glas-in-loodramen, toegang tot de verschillende vertrekken en trap naar de zolderverdieping. Apart toilet. De doorzon woonkamer is heerlijk licht en beschikt over een klassiek ornamentenplafond en kunststof kozijnen met openslaande deuren naar het balkon aan de achterzijde. Dit balkon is netjes afgewerkt en ligt op het oosten.
De afgesloten keukenruimte is eenvoudig uitgevoerd en biedt eveneens toegang tot het balkon. De basic badkamer is voorzien van een ligbad met douche, wastafel en een kast met wasmachineaansluiting. Aan de voorzijde bevindt zich een slaapkamer met prettig lichtinval.
ZOLDERVERDIEPING
Grote open ruimte onder het geïsoleerde dak met dakraam en bergruimte. Hier is eenvoudig een extra slaapkamer of werkkamer te creëren. In de kastruimte bevindt zich de cv-combiketel (vermoedelijk uit 2022). Aan de achterzijde ligt een slaapkamer met dakkapel en extra opbergruimte.
GOED OM TE WETEN
De woning maakte onderdeel uit van verhuurd blokje met woningen. Het blokje gaat gesplitst worden zodat er losse appartementsrechten ontstaan. De verplichte vereniging van eigenaren zal NA transport splitsingsakte c.q. verkoop van deze woning opgericht gaan worden en geactiveerd worden.
OMGEVING
De woning ligt in een rustige straat in de gewilde wijk Krispijn, op korte afstand van het historische centrum van Dordrecht. Binnen enkele minuten wandel je naar buurtwinkels, supermarkten en gezellige horecazaken. Ook het centraal station ligt op loopafstand, evenals meerdere parken en scholen. De ligging is bovendien ideaal voor forenzen: met de auto rijd je binnen enkele minuten de N3 of A16 op richting Rotterdam of Breda.
Klinkt dit als jouw ideale thuis? Loop alvast in 3D door de woning om alle ruimtes te bekijken en maak snel een afspraak voor een bezichtiging!
PLUSPUNTEN
+ Energielabel D
+ Eigen grond
+ Recent gesplitst in appartementsrecht
+ Gedeeltelijk kunststof kozijnen
+ Geheel dubbelglas
+ Cv-systeem met eigen cv-ketel (2022)
+ Geïsoleerd dak
+ Funderingsherstel heeft plaats gevonden
+ Gunstige ligging tov onder andere station en centrum
+ Vrij uitzicht voorzijde
++ concept splitsingsakte is aanwezig. Binnenkort zal er een MJOP opgesteld gaan worden vanuit de vve. Vandaar uit zal er een bijdrage vve bepaalt gaan worden.
Ouderdoms-, asbest en loodclausule zijn van toepassing.
Niet bewonersclausule is van toepassing.
Verkoop geschied zonder vragenlijst en/of roerende zakenlijst.
OMGEVING
Benieuwd naar de omgeving? Bekijk alle voorzieningen onder het kopje ‘In de buurt’!
INTERESSE?
Dan nodigen we je uit om contact met ons op te nemen. We vertellen je graag meer over deze woning en zorgen ervoor dat je overige stukken en algemene voorwaarden verkopend makelaar digitaal via jouw persoonlijke Move account kunt bekijken.
ONZE TIP
Aankopen? Schakel jouw eigen NVM-aankoopmakelaar in! De NVM-aankoopmakelaar komt op voor jouw belang en bespaart je veel tijd, geld en zorgen. Adressen van collega NVM-aankoopmakelaars vind je op Funda.
De gegeven informatie is met zorgvuldigheid opgesteld, aan de juistheid kunnen echter geen rechten worden ontleend. Alle verstrekte informatie moet beschouwd worden als een uitnodiging tot het doen van een aanbod of om in onderhandeling te treden.
In de geliefde wijk Land van Valk in Dordrecht ligt deze ruime bovenwoning, die je geheel naar eigen wens kunt afwerken. De woning heeft al een solide basis: funderingsherstel is uitgevoerd, er is een cv-systeem met eigen ketel aanwezig en de woning is voor een groot deel voorzien van kunststof kozijnen met dubbel glas. Dankzij de royale ruimtes, hoge plafonds en originele details biedt dit huis alle ingrediënten om te transformeren tot een sfeervol, comfortabel thuis.
HIGHLIGHTS
+ Ruime bovenwoning
+ Gedeeltelijk kunststof kozijnen, geheel dubbelglas
+ Kluswoning, maar goede basis
INDELING
Eigen entree op de begane grond met trapopgang naar de woonverdieping en meterkast.
EERSTE VERDIEPING
Ruime overloop met glas-in-loodramen, toegang tot de verschillende vertrekken en trap naar de zolderverdieping. Apart toilet. De doorzon woonkamer is heerlijk licht en beschikt over een klassiek ornamentenplafond en kunststof kozijnen met openslaande deuren naar het balkon aan de achterzijde. Dit balkon is netjes afgewerkt en ligt op het oosten.
De afgesloten keukenruimte is eenvoudig uitgevoerd en biedt eveneens toegang tot het balkon. De basic badkamer is voorzien van een ligbad met douche, wastafel en een kast met wasmachineaansluiting. Aan de voorzijde bevindt zich een slaapkamer met prettig lichtinval.
ZOLDERVERDIEPING
Grote open ruimte onder het geïsoleerde dak met dakraam en bergruimte. Hier is eenvoudig een extra slaapkamer of werkkamer te creëren. In de kastruimte bevindt zich de cv-combiketel (vermoedelijk uit 2022). Aan de achterzijde ligt een slaapkamer met dakkapel en extra opbergruimte.
GOED OM TE WETEN
De woning maakte onderdeel uit van verhuurd blokje met woningen. Het blokje gaat gesplitst worden zodat er losse appartementsrechten ontstaan. De verplichte vereniging van eigenaren zal NA transport splitsingsakte c.q. verkoop van deze woning opgericht gaan worden en geactiveerd worden.
OMGEVING
De woning ligt in een rustige straat in de gewilde wijk Krispijn, op korte afstand van het historische centrum van Dordrecht. Binnen enkele minuten wandel je naar buurtwinkels, supermarkten en gezellige horecazaken. Ook het centraal station ligt op loopafstand, evenals meerdere parken en scholen. De ligging is bovendien ideaal voor forenzen: met de auto rijd je binnen enkele minuten de N3 of A16 op richting Rotterdam of Breda.
Klinkt dit als jouw ideale thuis? Loop alvast in 3D door de woning om alle ruimtes te bekijken en maak snel een afspraak voor een bezichtiging!
PLUSPUNTEN
+ Energielabel D
+ Eigen grond
+ Recent gesplitst in appartementsrecht
+ Gedeeltelijk kunststof kozijnen
+ Geheel dubbelglas
+ Cv-systeem met eigen cv-ketel (2022)
+ Geïsoleerd dak
+ Funderingsherstel heeft plaats gevonden
+ Gunstige ligging tov onder andere station en centrum
+ Vrij uitzicht voorzijde
++ concept splitsingsakte is aanwezig. Binnenkort zal er een MJOP opgesteld gaan worden vanuit de vve. Vandaar uit zal er een bijdrage vve bepaalt gaan worden.
Ouderdoms-, asbest en loodclausule zijn van toepassing.
Niet bewonersclausule is van toepassing.
Verkoop geschied zonder vragenlijst en/of roerende zakenlijst.
OMGEVING
Benieuwd naar de omgeving? Bekijk alle voorzieningen onder het kopje ‘In de buurt’!
INTERESSE?
Dan nodigen we je uit om contact met ons op te nemen. We vertellen je graag meer over deze woning en zorgen ervoor dat je overige stukken en algemene voorwaarden verkopend makelaar digitaal via jouw persoonlijke Move account kunt bekijken.
ONZE TIP
Aankopen? Schakel jouw eigen NVM-aankoopmakelaar in! De NVM-aankoopmakelaar komt op voor jouw belang en bespaart je veel tijd, geld en zorgen. Adressen van collega NVM-aankoopmakelaars vind je op Funda.
De gegeven informatie is met zorgvuldigheid opgesteld, aan de juistheid kunnen echter geen rechten worden ontleend. Alle verstrekte informatie moet beschouwd worden als een uitnodiging tot het doen van een aanbod of om in onderhandeling te treden.
Beschrijving
Ruime bovenwoning, naar eigen wens af te werken!
In de geliefde wijk Land van Valk in Dordrecht ligt deze ruime bovenwoning, die je geheel naar eigen wens kunt afwerken. De woning heeft al een solide basis: funderingsherstel is uitgevoerd, er is een cv-systeem met eigen ketel aanwezig en de woning is voor een groot deel voorzien van kunststof kozijnen met dubbel glas. Dankzij de royale ruimtes, hoge plafonds en originele details biedt dit huis alle ingrediënten om te transformeren tot een sfeervol, comfortabel thuis.
HIGHLIGHTS
+ Ruime bovenwoning
+ Gedeeltelijk kunststof kozijnen, geheel dubbelglas
+ Kluswoning, maar goede basis
INDELING
Eigen entree op de begane grond met trapopgang naar de woonverdieping en meterkast.
EERSTE VERDIEPING
Ruime overloop met glas-in-loodramen, toegang tot de verschillende vertrekken en trap naar de zolderverdieping. Apart toilet. De doorzon woonkamer is heerlijk licht en beschikt over een klassiek ornamentenplafond en kunststof kozijnen met openslaande deuren naar het balkon aan de achterzijde. Dit balkon is netjes afgewerkt en ligt op het oosten.
De afgesloten keukenruimte is eenvoudig uitgevoerd en biedt eveneens toegang tot het balkon. De basic badkamer is voorzien van een ligbad met douche, wastafel en een kast met wasmachineaansluiting. Aan de voorzijde bevindt zich een slaapkamer met prettig lichtinval.
ZOLDERVERDIEPING
Grote open ruimte onder het geïsoleerde dak met dakraam en bergruimte. Hier is eenvoudig een extra slaapkamer of werkkamer te creëren. In de kastruimte bevindt zich de cv-combiketel (vermoedelijk uit 2022). Aan de achterzijde ligt een slaapkamer met dakkapel en extra opbergruimte.
GOED OM TE WETEN
De woning maakte onderdeel uit van verhuurd blokje met woningen. Het blokje gaat gesplitst worden zodat er losse appartementsrechten ontstaan. De verplichte vereniging van eigenaren zal NA transport splitsingsakte c.q. verkoop van deze woning opgericht gaan worden en geactiveerd worden.
OMGEVING
De woning ligt in een rustige straat in de gewilde wijk Krispijn, op korte afstand van het historische centrum van Dordrecht. Binnen enkele minuten wandel je naar buurtwinkels, supermarkten en gezellige horecazaken. Ook het centraal station ligt op loopafstand, evenals meerdere parken en scholen. De ligging is bovendien ideaal voor forenzen: met de auto rijd je binnen enkele minuten de N3 of A16 op richting Rotterdam of Breda.
Klinkt dit als jouw ideale thuis? Loop alvast in 3D door de woning om alle ruimtes te bekijken en maak snel een afspraak voor een bezichtiging!
PLUSPUNTEN
+ Energielabel D
+ Eigen grond
+ Recent gesplitst in appartementsrecht
+ Gedeeltelijk kunststof kozijnen
+ Geheel dubbelglas
+ Cv-systeem met eigen cv-ketel (2022)
+ Geïsoleerd dak
+ Funderingsherstel heeft plaats gevonden
+ Gunstige ligging tov onder andere station en centrum
+ Vrij uitzicht voorzijde
++ concept splitsingsakte is aanwezig. Binnenkort zal er een MJOP opgesteld gaan worden vanuit de vve. Vandaar uit zal er een bijdrage vve bepaalt gaan worden.
Ouderdoms-, asbest en loodclausule zijn van toepassing.
Niet bewonersclausule is van toepassing.
Verkoop geschied zonder vragenlijst en/of roerende zakenlijst.
OMGEVING
Benieuwd naar de omgeving? Bekijk alle voorzieningen onder het kopje ‘In de buurt’!
INTERESSE?
Dan nodigen we je uit om contact met ons op te nemen. We vertellen je graag meer over deze woning en zorgen ervoor dat je overige stukken en algemene voorwaarden verkopend makelaar digitaal via jouw persoonlijke Move account kunt bekijken.
ONZE TIP
Aankopen? Schakel jouw eigen NVM-aankoopmakelaar in! De NVM-aankoopmakelaar komt op voor jouw belang en bespaart je veel tijd, geld en zorgen. Adressen van collega NVM-aankoopmakelaars vind je op Funda.
De gegeven informatie is met zorgvuldigheid opgesteld, aan de juistheid kunnen echter geen rechten worden ontleend. Alle verstrekte informatie moet beschouwd worden als een uitnodiging tot het doen van een aanbod of om in onderhandeling te treden.
In de geliefde wijk Land van Valk in Dordrecht ligt deze ruime bovenwoning, die je geheel naar eigen wens kunt afwerken. De woning heeft al een solide basis: funderingsherstel is uitgevoerd, er is een cv-systeem met eigen ketel aanwezig en de woning is voor een groot deel voorzien van kunststof kozijnen met dubbel glas. Dankzij de royale ruimtes, hoge plafonds en originele details biedt dit huis alle ingrediënten om te transformeren tot een sfeervol, comfortabel thuis.
HIGHLIGHTS
+ Ruime bovenwoning
+ Gedeeltelijk kunststof kozijnen, geheel dubbelglas
+ Kluswoning, maar goede basis
INDELING
Eigen entree op de begane grond met trapopgang naar de woonverdieping en meterkast.
EERSTE VERDIEPING
Ruime overloop met glas-in-loodramen, toegang tot de verschillende vertrekken en trap naar de zolderverdieping. Apart toilet. De doorzon woonkamer is heerlijk licht en beschikt over een klassiek ornamentenplafond en kunststof kozijnen met openslaande deuren naar het balkon aan de achterzijde. Dit balkon is netjes afgewerkt en ligt op het oosten.
De afgesloten keukenruimte is eenvoudig uitgevoerd en biedt eveneens toegang tot het balkon. De basic badkamer is voorzien van een ligbad met douche, wastafel en een kast met wasmachineaansluiting. Aan de voorzijde bevindt zich een slaapkamer met prettig lichtinval.
ZOLDERVERDIEPING
Grote open ruimte onder het geïsoleerde dak met dakraam en bergruimte. Hier is eenvoudig een extra slaapkamer of werkkamer te creëren. In de kastruimte bevindt zich de cv-combiketel (vermoedelijk uit 2022). Aan de achterzijde ligt een slaapkamer met dakkapel en extra opbergruimte.
GOED OM TE WETEN
De woning maakte onderdeel uit van verhuurd blokje met woningen. Het blokje gaat gesplitst worden zodat er losse appartementsrechten ontstaan. De verplichte vereniging van eigenaren zal NA transport splitsingsakte c.q. verkoop van deze woning opgericht gaan worden en geactiveerd worden.
OMGEVING
De woning ligt in een rustige straat in de gewilde wijk Krispijn, op korte afstand van het historische centrum van Dordrecht. Binnen enkele minuten wandel je naar buurtwinkels, supermarkten en gezellige horecazaken. Ook het centraal station ligt op loopafstand, evenals meerdere parken en scholen. De ligging is bovendien ideaal voor forenzen: met de auto rijd je binnen enkele minuten de N3 of A16 op richting Rotterdam of Breda.
Klinkt dit als jouw ideale thuis? Loop alvast in 3D door de woning om alle ruimtes te bekijken en maak snel een afspraak voor een bezichtiging!
PLUSPUNTEN
+ Energielabel D
+ Eigen grond
+ Recent gesplitst in appartementsrecht
+ Gedeeltelijk kunststof kozijnen
+ Geheel dubbelglas
+ Cv-systeem met eigen cv-ketel (2022)
+ Geïsoleerd dak
+ Funderingsherstel heeft plaats gevonden
+ Gunstige ligging tov onder andere station en centrum
+ Vrij uitzicht voorzijde
++ concept splitsingsakte is aanwezig. Binnenkort zal er een MJOP opgesteld gaan worden vanuit de vve. Vandaar uit zal er een bijdrage vve bepaalt gaan worden.
Ouderdoms-, asbest en loodclausule zijn van toepassing.
Niet bewonersclausule is van toepassing.
Verkoop geschied zonder vragenlijst en/of roerende zakenlijst.
OMGEVING
Benieuwd naar de omgeving? Bekijk alle voorzieningen onder het kopje ‘In de buurt’!
INTERESSE?
Dan nodigen we je uit om contact met ons op te nemen. We vertellen je graag meer over deze woning en zorgen ervoor dat je overige stukken en algemene voorwaarden verkopend makelaar digitaal via jouw persoonlijke Move account kunt bekijken.
ONZE TIP
Aankopen? Schakel jouw eigen NVM-aankoopmakelaar in! De NVM-aankoopmakelaar komt op voor jouw belang en bespaart je veel tijd, geld en zorgen. Adressen van collega NVM-aankoopmakelaars vind je op Funda.
De gegeven informatie is met zorgvuldigheid opgesteld, aan de juistheid kunnen echter geen rechten worden ontleend. Alle verstrekte informatie moet beschouwd worden als een uitnodiging tot het doen van een aanbod of om in onderhandeling te treden.
powered by Friva | Lees ons Privacybeleid





































